|
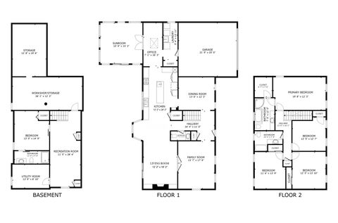
Lake Minear Location, Lots of Living Area, and Lovely Updates! Get yourself in gear to come see this expanded "Sandhurst-styled" home that features a sunroom addition and a finished basement with a 5th bedroom and a full bath. Extra space and a great location are not all this house has to offer, because it has had very tasteful updates to the kitchen and baths as well. You can just move in and start enjoying yourself! Entertaining is great here, and the kitchen plays a central part. It is long on cabinet and counter space, featuring a big island with a second sink, loads of storage and pot drawers, stainless steel appliances, and very cool leathered granite countertops. In addition, the extra spaces adjacent to the kitchen really set this house apart. On one end, there's a large bay with an eating area and a built-in buffet that's open to the family room. The layout bonus is that the family room wall also opens to the living room and has a door out to the patio, which gives that end of the house a great flow and lots of natural light. On the other end, the 1st floor den of the original layout has been opened up as another flex room (with bar cabinets) that leads to a vaulted sunroom.. Here you've got room for a bar, sitting room, home office, etc - you decide! There's also a separate dining room. Plan your party! The second floor has four bedrooms and two full baths. The primary suite has been modernized to contain a lovely spa bath with an extra-large shower, and a soaking tub, plus a walk-in closet. Three more bedrooms and an attractively updated hall bath complete the layout. The finished basement enlarges on the theme with a rec room, 5th bedroom, full (lovely) bath, and a spacious storage room. The final bonus is the big backyard with a lovely patio that backs up to an open space. The home is located close to Lake Minear, a private 70-acre lake with limited access and a members-only club for swimming and fishing. It's one of the cleanest bodies of water in a county named for its many lakes. Libertyville schools - Adler Elem, Highland Middle (D70), and Libertyville High (D128).
| DAYS ON MARKET | -1 | LAST UPDATED | 3/26/2026 |
|---|---|---|---|
| TRACT | Lake Minear | YEAR BUILT | 1979 |
| COMMUNITY | Green Oaks / Libertyville | GARAGE SPACES | 2.0 |
| COUNTY | Lake | STATUS | Active |
| PROPERTY TYPE(S) | Single Family |
| School District | Libertyville High School |
|---|---|
| Elementary School | Adler Park School |
| Jr. High School | Highland Middle School |
| High School | Libertyville High School |
| ADDITIONAL DETAILS | |
| AIR | Ceiling Fan(s), Central Air |
|---|---|
| AIR CONDITIONING | Yes |
| APPLIANCES | Cooktop, Dishwasher, Disposal, Dryer, Humidifier, Microwave, Range, Range Hood, Refrigerator, Stainless Steel Appliance(s), Washer |
| AREA | Green Oaks / Libertyville |
| BASEMENT | Crawl Space, Finished, Full, Storage Space, Sump Pump, Yes |
| CONSTRUCTION | Vinyl Siding |
| FIREPLACE | Yes |
| GARAGE | Attached Garage, Yes |
| HEAT | Forced Air, Natural Gas |
| INTERIOR | Built-in Features, Walk-In Closet(s) |
| LOT | 0.363 acre(s) |
| LOT DIMENSIONS | 152X100X155X99 |
| PARKING | Asphalt, Garage Door Opener, Attached, Garage |
| SEWER | Public Sewer |
| STYLE | Traditional |
| SUBDIVISION | Lake Minear |
| TAXES | 17127.88 |
MORTGAGE CALCULATOR
TOTAL MONTHLY PAYMENT
0
P
I
*Estimate only
| SATELLITE VIEW |
| / | |
We respect your online privacy and will never spam you. By submitting this form with your telephone number
you are consenting for Humderto
Garcia to contact you even if your name is on a Federal or State
"Do not call List".
Listed with Baird & Warner
The data relating to real estate for sale on this web site comes in part from the Broker ReciprocitySM Program of MRED. All real estate listings are marked with the Broker ReciprocitySM logo or the MRED Broker ReciprocitySM thumbnail logo (a little black house) and detailed information about them includes the name of the listing brokers.
The broker providing these data believes them to be correct, but advises interested parties to confirm them before relying on them in a purchase decision.
Copyright 2026 MRED. All rights reserved.

The broker providing these data believes them to be correct, but advises interested parties to confirm them before relying on them in a purchase decision.
Copyright 2026 MRED. All rights reserved.
This IDX solution is (c) Diverse Solutions 2026.