|
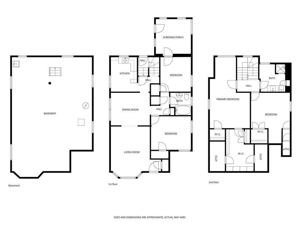
MULTIPLE OFFERS RECEIVED! HIGHEST & BEST DUE BY THURSDAY 3/19/26 BY MIDNIGHT W THE SELLER DECIDING ON FRIDAY 3/20/26. Classic brick Stoltzner-built English bungalow in highly desirable Edgebrook! This solid home offers timeless character with hardwood floors, 4 bedrooms, and 2 full bathrooms, along with a 2-car detached garage. The property features great bones and incredible potential for buyers looking to update and customize a home in a neighborhood known for strong resale values. Unfinished basement is great for additional storage or to create extra living space you desire. The traditional floor plan provides flexibility with multiple bedroom options and space to create your vision. Situated in a sought-after location close to parks, shopping, transportation, and everything Edgebrook has to offer. This property needs updates and improvements and is priced accordingly, making it a great opportunity for buyers looking to build equity in a desirable area. Seller is a company and the property is being sold as-is. No survey will be provided. Taxes will be prorated at 100%.
| DAYS ON MARKET | 6 | LAST UPDATED | 3/20/2026 |
|---|---|---|---|
| YEAR BUILT | 1953 | COMMUNITY | CHI - Forest Glen |
| COUNTY | Cook | STATUS | Conditional |
| PROPERTY TYPE(S) | Single Family |
| ADDITIONAL DETAILS | |
| AIR | Ceiling Fan(s), Central Air |
|---|---|
| AIR CONDITIONING | Yes |
| APPLIANCES | Humidifier |
| AREA | CHI - Forest Glen |
| BASEMENT | Full, Unfinished, Yes |
| CONSTRUCTION | Brick |
| HEAT | Forced Air, Natural Gas |
| INTERIOR | Walk-In Closet(s) |
| LOT | 0 |
| LOT DIMENSIONS | 42X114X119X42 |
| SEWER | Public Sewer |
| TAXES | 9339 |
MORTGAGE CALCULATOR
TOTAL MONTHLY PAYMENT
0
P
I
*Estimate only
| SATELLITE VIEW |
| / | |
We respect your online privacy and will never spam you. By submitting this form with your telephone number
you are consenting for Humderto
Garcia to contact you even if your name is on a Federal or State
"Do not call List".
Listed with Torg Realty Inc
The data relating to real estate for sale on this web site comes in part from the Broker ReciprocitySM Program of MRED. All real estate listings are marked with the Broker ReciprocitySM logo or the MRED Broker ReciprocitySM thumbnail logo (a little black house) and detailed information about them includes the name of the listing brokers.
The broker providing these data believes them to be correct, but advises interested parties to confirm them before relying on them in a purchase decision.
Copyright 2026 MRED. All rights reserved.

The broker providing these data believes them to be correct, but advises interested parties to confirm them before relying on them in a purchase decision.
Copyright 2026 MRED. All rights reserved.
This IDX solution is (c) Diverse Solutions 2026.