|
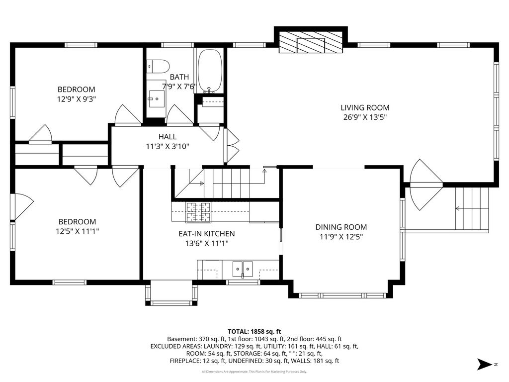
Perfectly situated in a prime East Winnetka location, this charming home offers an exceptional opportunity to enjoy one of the North Shore's most sought-after neighborhoods at an approachable price point. Just blocks from the lake, town, Metra, Greeley Elementary, and New Trier High School, the lifestyle and convenience are unmatched. Thoughtfully updated over time, the home features bright, sun-filled living spaces enhanced by skylights, creating a warm and inviting atmosphere throughout. The main level offers a comfortable living room, an updated eat-in kitchen, and a separate dining room, along with two well-proportioned bedrooms and a full bath. The second floor is dedicated to the primary suite with an adjoining office space-ideal for today's work-from-home needs. Hardwood floors run throughout, and the home has been carefully maintained with numerous improvements already in place. The finished basement provides valuable additional living space with a rec room, powder room and laundry room. The backyard is a true highlight, featuring a lovely patio and generous green space-perfect for relaxing or entertaining. A newer two-car garage, conveniently accessed off Walnut by an easement, preserves the yard while adding everyday ease and functionality. Set on a beautiful block, this is a rare opportunity for buyers seeking the charm, location, and community of East Winnetka!
| DAYS ON MARKET | 3 | LAST UPDATED | 4/14/2026 |
|---|---|---|---|
| YEAR BUILT | 1922 | COMMUNITY | Winnetka |
| GARAGE SPACES | 2.0 | COUNTY | Cook |
| STATUS | Conditional | PROPERTY TYPE(S) | Single Family |
| Elementary School | Greeley Elementary School |
|---|---|
| Jr. High School | Carleton W Washburne School |
| ADDITIONAL DETAILS | |
| AIR | Wall Unit(s) |
|---|---|
| AIR CONDITIONING | Yes |
| APPLIANCES | Dishwasher, Disposal, Dryer, Microwave, Range, Refrigerator, Stainless Steel Appliance(s), Washer |
| AREA | Winnetka |
| BASEMENT | Full, Partially Finished, Sump Pump, Yes |
| CONSTRUCTION | Aluminum Siding |
| FIREPLACE | Yes |
| GARAGE | Yes |
| HEAT | Baseboard, Hot Water, Natural Gas, Steam |
| LOT | 6599 sq ft |
| LOT DESCRIPTION | Landscaped |
| LOT DIMENSIONS | 40 X 165 |
| PARKING | Asphalt, Garage Door Opener, Detached, Garage |
| SEWER | Public Sewer |
| STYLE | Bungalow |
| TAXES | 11985.47 |
MORTGAGE CALCULATOR
TOTAL MONTHLY PAYMENT
0
P
I
*Estimate only
| SATELLITE VIEW |
| / | |
We respect your online privacy and will never spam you. By submitting this form with your telephone number
you are consenting for Humderto
Garcia to contact you even if your name is on a Federal or State
"Do not call List".
Listed with Baird & Warner
The data relating to real estate for sale on this web site comes in part from the Broker ReciprocitySM Program of MRED. All real estate listings are marked with the Broker ReciprocitySM logo or the MRED Broker ReciprocitySM thumbnail logo (a little black house) and detailed information about them includes the name of the listing brokers.
The broker providing these data believes them to be correct, but advises interested parties to confirm them before relying on them in a purchase decision.
Copyright 2026 MRED. All rights reserved.

The broker providing these data believes them to be correct, but advises interested parties to confirm them before relying on them in a purchase decision.
Copyright 2026 MRED. All rights reserved.
This IDX solution is (c) Diverse Solutions 2026.