|
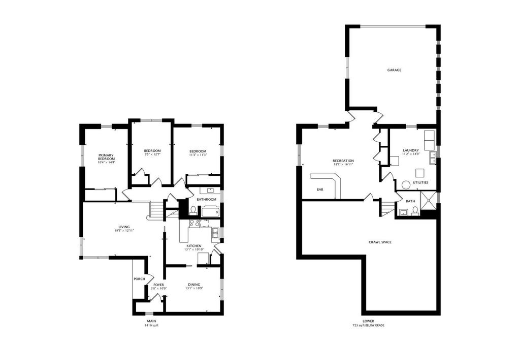
"It's been a great family home for us". Same owner since 1971! Always cared for. New in the last 5 years: roof, furnace, A/C, hot water heater, ejector pump...do not worry about water here! This is a custom hillside multi-level home. The family room is ground level and so is the first floor! Great and private patio, a reception area entering the family room from the attached garage AND the back as well. Everything is super close; the train, the schools, the parks, the shopping. Corner lot and positioned for lots of light, with skylights too. Do some updating, appreciate the mighty construction, the particular style, and the excellent location. NOTE this has a huge walk down crawl space that can be finished for even better storage.
| DAYS ON MARKET | 56 | LAST UPDATED | 3/23/2026 |
|---|---|---|---|
| YEAR BUILT | 1958 | COMMUNITY | Skokie |
| GARAGE SPACES | 2.5 | COUNTY | Cook |
| STATUS | Conditional | PROPERTY TYPE(S) | Single Family |
| School District | Niles West High School |
|---|---|
| Elementary School | Madison Elementary School |
| Jr. High School | Lincoln Junior High School |
| High School | Niles West High School |
| ADDITIONAL DETAILS | |
| AIR | Central Air |
|---|---|
| AIR CONDITIONING | Yes |
| AREA | Skokie |
| BASEMENT | Crawl Space, Finished, Partial, Yes |
| CONSTRUCTION | Brick |
| GARAGE | Attached Garage, Yes |
| HEAT | Forced Air, Natural Gas |
| INTERIOR | Entrance Foyer |
| LOT | 0 |
| LOT DESCRIPTION | Corner Lot, Wooded |
| LOT DIMENSIONS | 3850 |
| PARKING | Garage Door Opener, Attached, Garage |
| SEWER | Public Sewer |
| TAXES | 2547.28 |
| WATER | Public |
MORTGAGE CALCULATOR
TOTAL MONTHLY PAYMENT
0
P
I
*Estimate only
| SATELLITE VIEW |
| / | |
We respect your online privacy and will never spam you. By submitting this form with your telephone number
you are consenting for Humderto
Garcia to contact you even if your name is on a Federal or State
"Do not call List".
Listed with Baird & Warner
The data relating to real estate for sale on this web site comes in part from the Broker ReciprocitySM Program of MRED. All real estate listings are marked with the Broker ReciprocitySM logo or the MRED Broker ReciprocitySM thumbnail logo (a little black house) and detailed information about them includes the name of the listing brokers.
The broker providing these data believes them to be correct, but advises interested parties to confirm them before relying on them in a purchase decision.
Copyright 2026 MRED. All rights reserved.

The broker providing these data believes them to be correct, but advises interested parties to confirm them before relying on them in a purchase decision.
Copyright 2026 MRED. All rights reserved.
This IDX solution is (c) Diverse Solutions 2026.