|
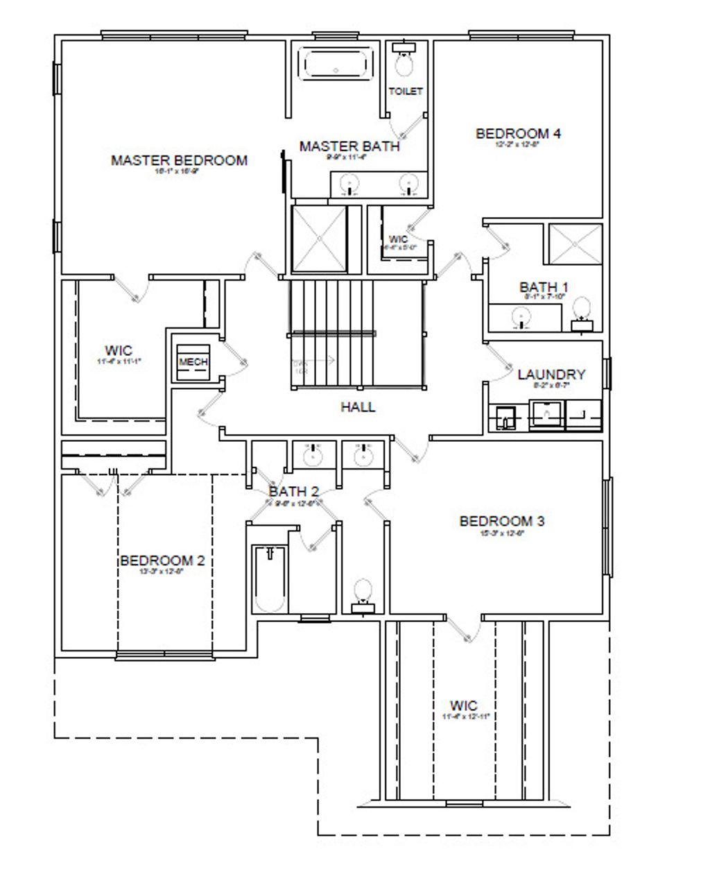
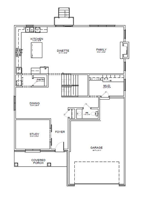
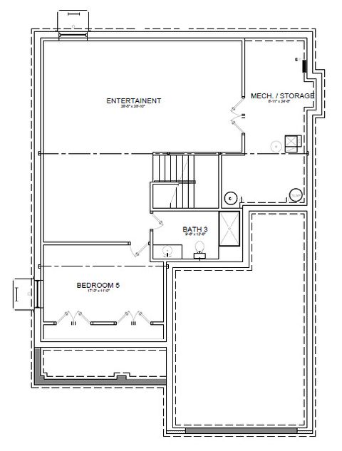
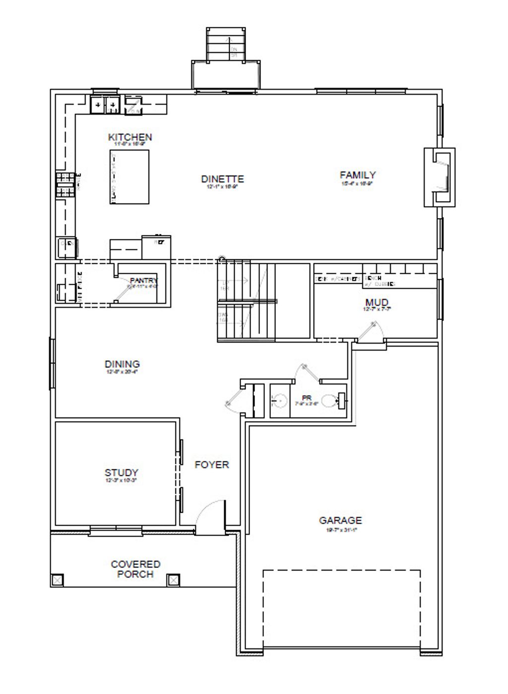
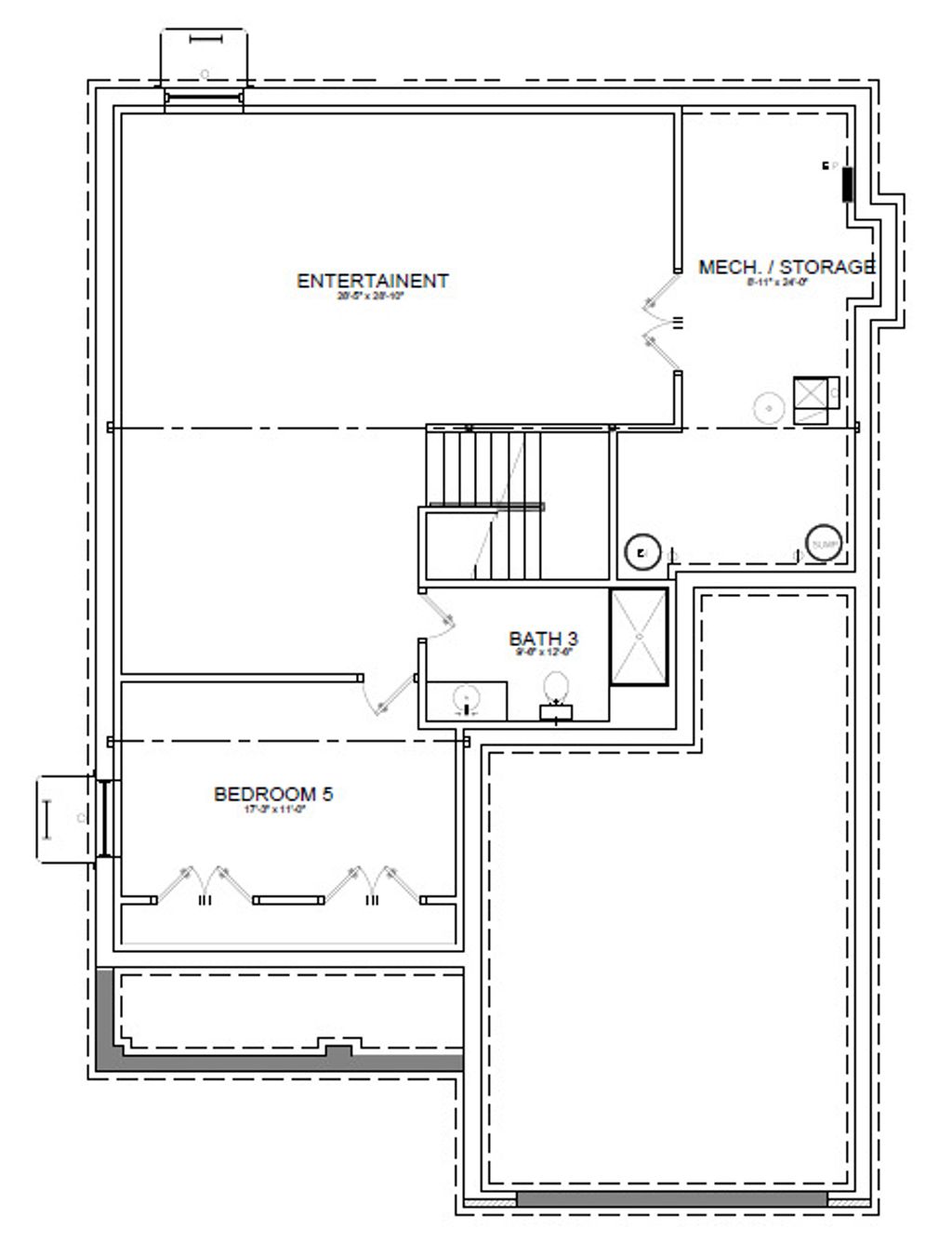
Step into modern luxury with this impeccably designed new construction, just minutes from downtown Clarendon Hills. Perfectly positioned on an extraordinary 60' x 229' lot, this property offers an unparalleled sense of space and privacy rarely found in the area. With approximately 4,300 SF of thoughtfully crafted living space, the home features 5 spacious bedrooms, 4.1 baths, and an array of upscale details. The main level boasts a formal dining room, a private office, and a stunning open-concept kitchen and family room. The gourmet kitchen showcases custom-built white shaker maple cabinets with soft-close drawers, quartz countertops, a large center island, and a premium Thermador appliance package. A walk-in pantry and adjacent mudroom with built-in bench and cubbies add convenience to everyday living. Cozy up in the family room, featuring a remote-controlled fireplace with a natural stone facade and custom wood mantel. Upstairs, the primary suite is a serene retreat with a generous walk-in closet and spa-like ensuite bath, complete with a freestanding soaking tub, frameless glass shower, dual vanities, heated floors, and quartz countertops. Three additional bedrooms, all with oak hardwood floors, include a Jack-and-Jill bath and a private ensuite. The second-floor laundry room, with quartz countertops and premium finishes, adds practicality to luxury. The finished lower level extends your living space with a large entertainment area, guest bedroom, and full bath, plus ample storage. Additional highlights include extensive millwork throughout, custom oak staircases, a two-car attached garage with EV-ready wiring, and a private interior lot featuring a composite deck that overlooks the expansive grounds. Set in a sought-after neighborhood close to top-rated schools, parks, shopping, and dining, this home seamlessly blends sophistication, function, and the luxury of rarely available oversized outdoor living. Anticipated completion is early June-your dream home awaits!
| DAYS ON MARKET | 45 | LAST UPDATED | 4/14/2026 |
|---|---|---|---|
| YEAR BUILT | 2026 | COMMUNITY | Clarendon Hills |
| GARAGE SPACES | 2.0 | COUNTY | DuPage |
| STATUS | Conditional | PROPERTY TYPE(S) | Single Family |
| School District | Hinsdale Central High School |
|---|---|
| Elementary School | Prospect Elementary School |
| Jr. High School | Clarendon Hills Middle School |
| High School | Hinsdale Central High School |
| ADDITIONAL DETAILS | |
| AIR | Central Air |
|---|---|
| AIR CONDITIONING | Yes |
| APPLIANCES | Stainless Steel Appliance(s) |
| AREA | Clarendon Hills |
| BASEMENT | Finished, Full, Yes |
| CONSTRUCTION | Other |
| FIREPLACE | Yes |
| GARAGE | Attached Garage, Yes |
| HEAT | Forced Air, Natural Gas |
| INTERIOR | Walk-In Closet(s) |
| LOT | 0.31 acre(s) |
| LOT DIMENSIONS | 60 x 229 |
| PARKING | Concrete, Garage Door Opener, Attached, Garage |
| SEWER | Public Sewer |
MORTGAGE CALCULATOR
TOTAL MONTHLY PAYMENT
0
P
I
*Estimate only
| SATELLITE VIEW |
| / | |
We respect your online privacy and will never spam you. By submitting this form with your telephone number
you are consenting for Humderto
Garcia to contact you even if your name is on a Federal or State
"Do not call List".
Listed with Compass
The data relating to real estate for sale on this web site comes in part from the Broker ReciprocitySM Program of MRED. All real estate listings are marked with the Broker ReciprocitySM logo or the MRED Broker ReciprocitySM thumbnail logo (a little black house) and detailed information about them includes the name of the listing brokers.
The broker providing these data believes them to be correct, but advises interested parties to confirm them before relying on them in a purchase decision.
Copyright 2026 MRED. All rights reserved.

The broker providing these data believes them to be correct, but advises interested parties to confirm them before relying on them in a purchase decision.
Copyright 2026 MRED. All rights reserved.
This IDX solution is (c) Diverse Solutions 2026.