|
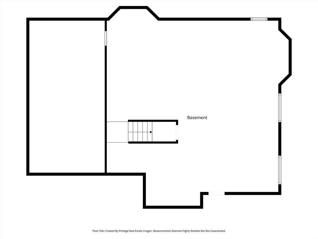
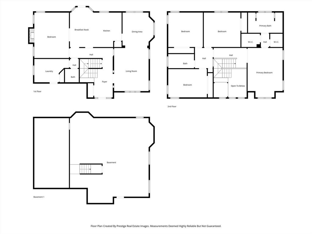
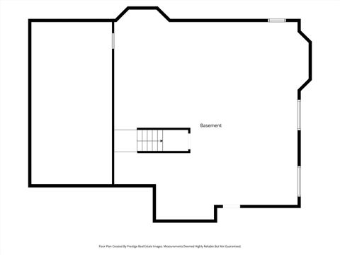
Amazing deal! Welcome to 258 Silverado Street in Bolingbrook - a beautifully maintained home built less than 30 years ago offering exceptional curb appeal in a prime Bolingbrook location with a NO assessment and proximity to golf courses, parks, shopping, dining, and more. This spacious 4-bedroom, 2.1-bath home features an open and inviting layout perfect for everyday living and entertaining, complete with an eat-in kitchen, oversized bedrooms, first-floor laundry, and a gorgeous wood-burning fireplace that adds warmth and character to the main living space. Major updates provide peace of mind, including windows (2014), HVAC (2015), water softener (2017), siding and roof (2019), fence (2020), master bathroom flooring (2021), a tankless water heater, and a radon mitigation system. The enormous unfinished basement with soaring ceiling height offers endless potential for additional living space and awaits your finishing touches. Located within highly acclaimed Naperville District 204 schools, ranked #9 in Illinois and #36 nationally, this home truly has it all - location, space, updates, and top-tier schools - making it an incredible opportunity you won't want to miss. All offer will be considered !
| DAYS ON MARKET | 4 | LAST UPDATED | 3/12/2026 |
|---|---|---|---|
| YEAR BUILT | 1996 | COMMUNITY | Bolingbrook |
| GARAGE SPACES | 2.0 | COUNTY | Will |
| STATUS | Active | PROPERTY TYPE(S) | Single Family |
| School District | Neuqua Valley High School |
|---|---|
| Elementary School | Builta Elementary School |
| Jr. High School | Gregory Middle School |
| High School | Neuqua Valley High School |
| ADDITIONAL DETAILS | |
| AIR | Central Air |
|---|---|
| AIR CONDITIONING | Yes |
| AREA | Bolingbrook |
| BASEMENT | Partial, Unfinished, Yes |
| CONSTRUCTION | Vinyl Siding |
| FIREPLACE | Yes |
| GARAGE | Attached Garage, Yes |
| HEAT | Natural Gas |
| INTERIOR | Open Floorplan |
| LOT | 10019 sq ft |
| LOT DIMENSIONS | 9918 |
| PARKING | Asphalt, Attached, Garage |
| SEWER | Public Sewer |
| TAXES | 11484 |
MORTGAGE CALCULATOR
TOTAL MONTHLY PAYMENT
0
P
I
*Estimate only
| SATELLITE VIEW |
| / | |
We respect your online privacy and will never spam you. By submitting this form with your telephone number
you are consenting for Humderto
Garcia to contact you even if your name is on a Federal or State
"Do not call List".
Listed with PAK Home Realty
The data relating to real estate for sale on this web site comes in part from the Broker ReciprocitySM Program of MRED. All real estate listings are marked with the Broker ReciprocitySM logo or the MRED Broker ReciprocitySM thumbnail logo (a little black house) and detailed information about them includes the name of the listing brokers.
The broker providing these data believes them to be correct, but advises interested parties to confirm them before relying on them in a purchase decision.
Copyright 2026 MRED. All rights reserved.

The broker providing these data believes them to be correct, but advises interested parties to confirm them before relying on them in a purchase decision.
Copyright 2026 MRED. All rights reserved.
This IDX solution is (c) Diverse Solutions 2026.