|
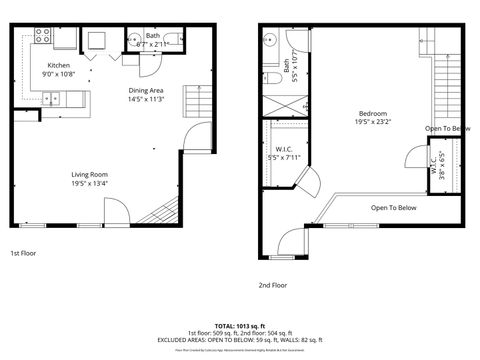
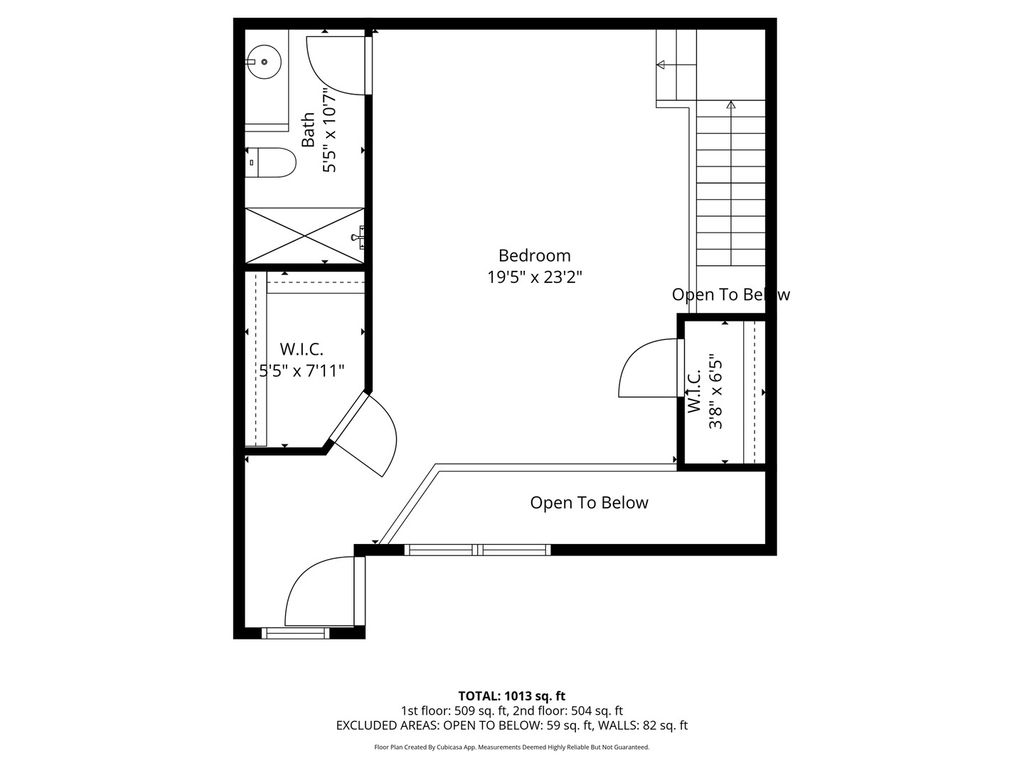
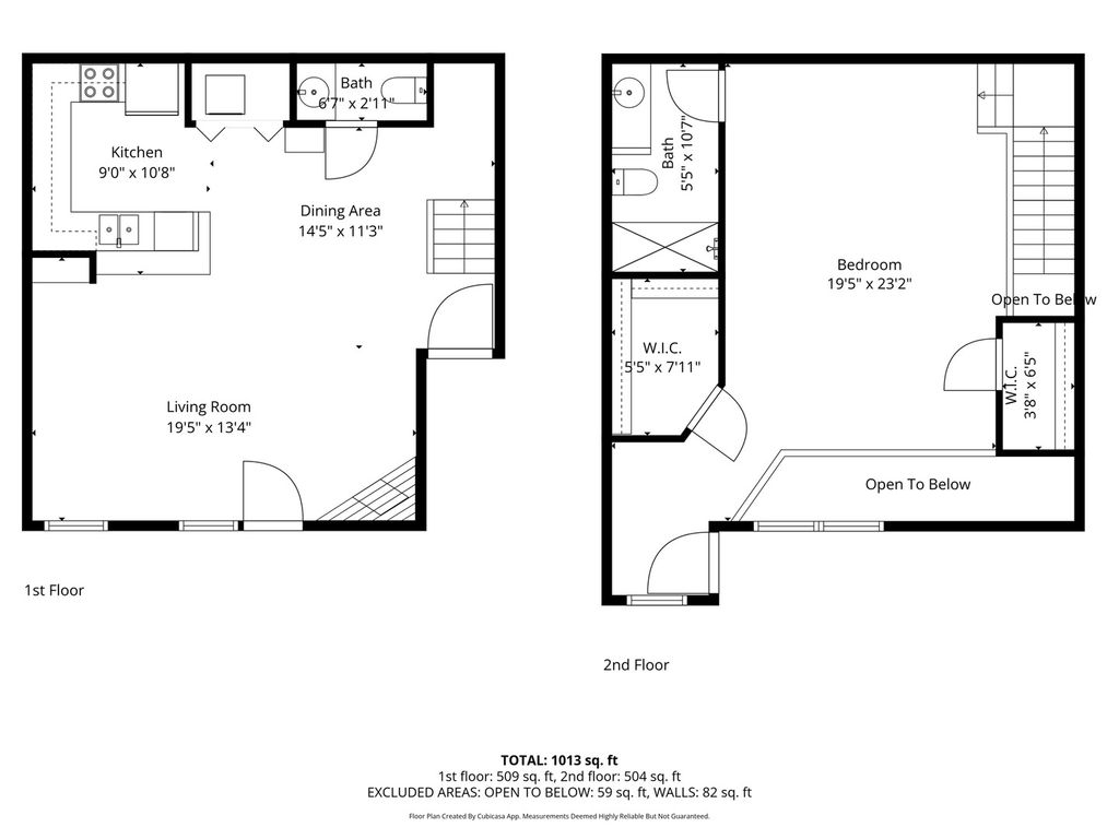
Welcome to easy, low-maintenance living in the highly sought-after Pleasant Valley School District! This incredibly charming 1-bedroom, 1.5-bathroom condo offers 892 square feet of comfortable living space in an unbeatable Bettendorf location. Step inside to an open and inviting floor plan, perfect for entertaining or cozying up next to the wood-burning fireplace. The spacious primary bedroom serves as a true retreat, featuring an impressive walk-in closet, a full private bath, and its own private walk-out porch, the perfect spot to sneak away for a quiet moment. Additional features include a convenient main-floor half bath, in-unit laundry space, and a detached 1-car garage. Let the HOA handle the yard work and snow removal while you spend your summers lounging by the private community swimming pool. This Bettendorf home is a gem that balances comfort, convenience, and community.
| DAYS ON MARKET | 16 | LAST UPDATED | 3/23/2026 |
|---|---|---|---|
| YEAR BUILT | 1983 | COMMUNITY | Bettendorf |
| GARAGE SPACES | 1.0 | COUNTY | Scott |
| STATUS | Pending | PROPERTY TYPE(S) | Condo/Townhouse/Co-Op |
| School District | Pv High School |
|---|---|
| High School | Pv High School |
| ADDITIONAL DETAILS | |
| AIR | Central Air |
|---|---|
| AIR CONDITIONING | Yes |
| APPLIANCES | Dishwasher, Disposal, Dryer, Range, Refrigerator, Washer |
| AREA | Bettendorf |
| BASEMENT | None |
| CONSTRUCTION | Aluminum Siding |
| FIREPLACE | Yes |
| GARAGE | Yes |
| HEAT | Forced Air, Natural Gas |
| LOT | 0 |
| LOT DESCRIPTION | Cul-de-sac |
| LOT DIMENSIONS | common |
| PARKING | Detached, Garage |
| SEWER | Public Sewer |
| STORIES | 2 |
| TAXES | 1512 |
| UTILITIES | Cable Available |
| WATER | Public |
MORTGAGE CALCULATOR
TOTAL MONTHLY PAYMENT
0
P
I
*Estimate only
| SATELLITE VIEW |
| / | |
We respect your online privacy and will never spam you. By submitting this form with your telephone number
you are consenting for Humderto
Garcia to contact you even if your name is on a Federal or State
"Do not call List".
Listed with QC Reserve - Real Broker, LLC
The data relating to real estate for sale on this web site comes in part from the Broker ReciprocitySM Program of MRED. All real estate listings are marked with the Broker ReciprocitySM logo or the MRED Broker ReciprocitySM thumbnail logo (a little black house) and detailed information about them includes the name of the listing brokers.
The broker providing these data believes them to be correct, but advises interested parties to confirm them before relying on them in a purchase decision.
Copyright 2026 MRED. All rights reserved.

The broker providing these data believes them to be correct, but advises interested parties to confirm them before relying on them in a purchase decision.
Copyright 2026 MRED. All rights reserved.
This IDX solution is (c) Diverse Solutions 2026.