|
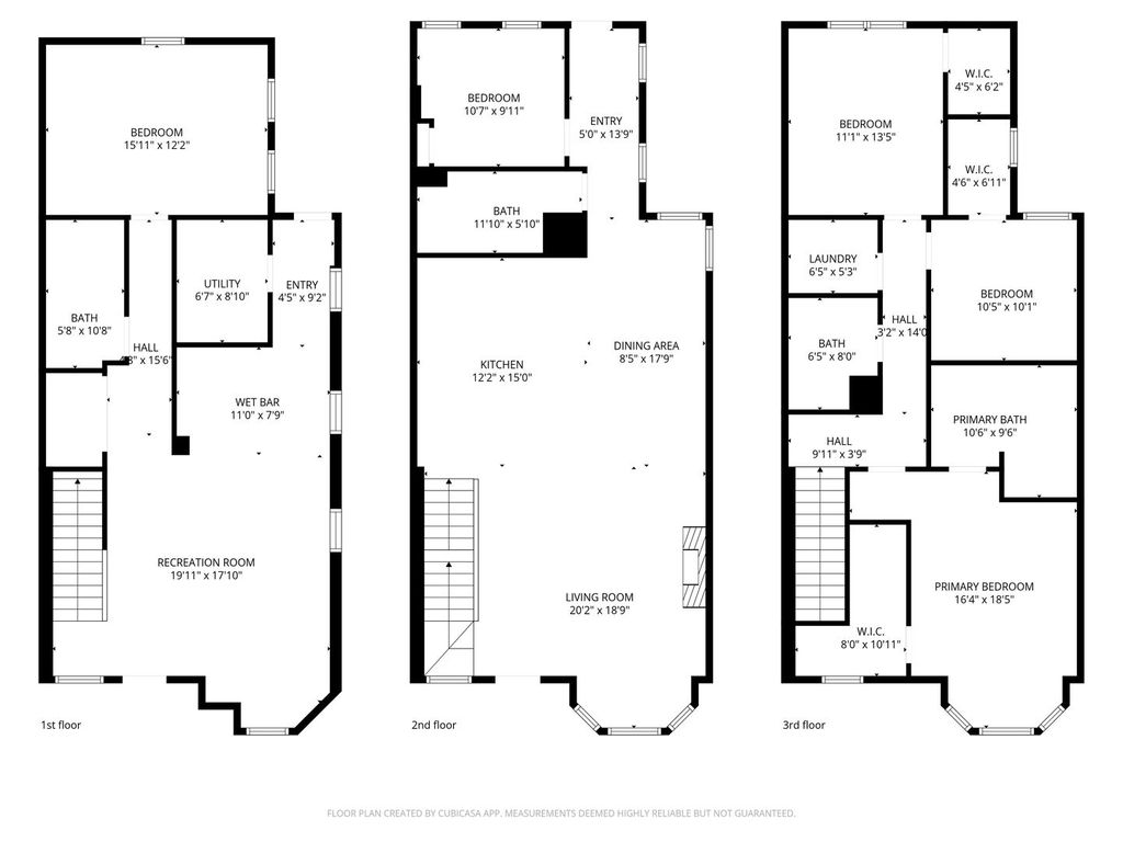
Welcome to The Oakwood Mansion. A Beautiful Historical 1881 Chicago Bronzeville Landmark Greystone. Walking distance to the shoreline of Lake Michigan. Featuring a 5 bedroom 4 bathroom and One of a Kind 6 car heated garage/party room with EV charging . Grand scaled with distinguished opulent finishes and high end amenities. An Absolute Utter Brand New Renovation throughout. This Home exudes quality with exceptional craftmanship. Walk up to this all natural Lime Stone Home with the original built-in mascarons embedded in the stone and iron railings. The Architectural history will awe you as you walk up to absorb the meaning of "GRAND". Exhale in this Urban dream. This home boast High Ceilings Custom 12 foot entry door and 10 ft interior doors. Large ceremonial traditional Black windows with custom blinds, Moldings and trim are handcrafted with unique detail throughout. White Oak hardwood flooring on the first and second level. Oversized designed fireplace decaled with style. Beautiful double stair cases will capture your eye for style. The Kitchen marries royalty with modern Gold vintage finishes with the oversized island crowned with Italian stone thick counter tops and engaging corresponding back splash. Custom white and black onyx colored cabinetry brings a decor of elegance. Top of the Line Black Stainless Steele and Gold Autograph series double oven commercial stove sitting below a grand pot filler accompanied by refrigerator, microwave drawer and dishwasher. The First floor bedroom or office presents convenience with a stylish vintage bathroom ready to receive guest. The second level cradles a gorgeous primary suite with natural lighting, walk in custom closet and an ensuite fit for a queen with double sinks separate shower and soaker tub. All bedrooms are spacious with closets that have been designed for complete organization. The lower level is perfect for entertaining and lounging with a custom wet bar, a full bath and extra bedroom coupled with a front and back entrance and exit. This Mansion would not be complete without it's open breezeway deck and roof top paradise with a custom pergola. Saving the best for NOW! Drive into your 6 car custom heated garage large enough for your fancy cars and party pleasures. 5 minutes from downtown Chicago where there's plenty of shopping and restaurants, close to trains, public transportation, walking trails and bike routes. Lusso Luxury is awaiting to be called your Home. Schedule your Private showing today.
| DAYS ON MARKET | 14 | LAST UPDATED | 3/21/2026 |
|---|---|---|---|
| YEAR BUILT | 1881 | COMMUNITY | CHI - Grand Boulevard |
| GARAGE SPACES | 6.0 | COUNTY | Cook |
| STATUS | Conditional | PROPERTY TYPE(S) | Single Family |
| ADDITIONAL DETAILS | |
| AIR | Central Air |
|---|---|
| AIR CONDITIONING | Yes |
| APPLIANCES | Dishwasher, Double Oven, ENERGY STAR Qualified Appliances, Gas Cooktop, Gas Oven, Microwave, Range, Range Hood, Refrigerator, Stainless Steel Appliance(s), Wine Refrigerator |
| AREA | CHI - Grand Boulevard |
| BASEMENT | Daylight, Exterior Entry, Finished, Full, Walk-Up Access, Yes |
| CONSTRUCTION | Brick, Stone |
| FIREPLACE | Yes |
| GARAGE | Yes |
| HEAT | Natural Gas |
| INTERIOR | Beamed Ceilings, Built-in Features, Cathedral Ceiling(s), Granite Counters, High Ceilings, In-Law Floorplan, Open Floorplan, Walk-In Closet(s), Wet Bar |
| LOT | 0 |
| LOT DESCRIPTION | Landscaped |
| LOT DIMENSIONS | 30X135 |
| PARKING | Garage Door Opener, Heated Garage, Tandem, Garage, Detached |
| SEWER | Public Sewer |
| STYLE | Greystone |
| TAXES | 5080 |
| WATER | Public |
MORTGAGE CALCULATOR
TOTAL MONTHLY PAYMENT
0
P
I
*Estimate only
| SATELLITE VIEW |
| / | |
We respect your online privacy and will never spam you. By submitting this form with your telephone number
you are consenting for Humderto
Garcia to contact you even if your name is on a Federal or State
"Do not call List".
Listed with Coldwell Banker Realty
The data relating to real estate for sale on this web site comes in part from the Broker ReciprocitySM Program of MRED. All real estate listings are marked with the Broker ReciprocitySM logo or the MRED Broker ReciprocitySM thumbnail logo (a little black house) and detailed information about them includes the name of the listing brokers.
The broker providing these data believes them to be correct, but advises interested parties to confirm them before relying on them in a purchase decision.
Copyright 2026 MRED. All rights reserved.

The broker providing these data believes them to be correct, but advises interested parties to confirm them before relying on them in a purchase decision.
Copyright 2026 MRED. All rights reserved.
This IDX solution is (c) Diverse Solutions 2026.