|
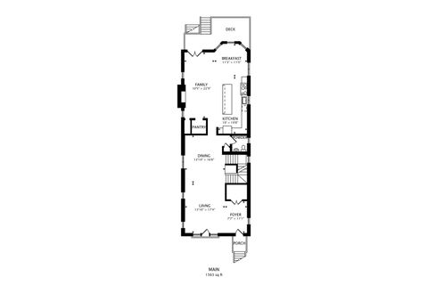
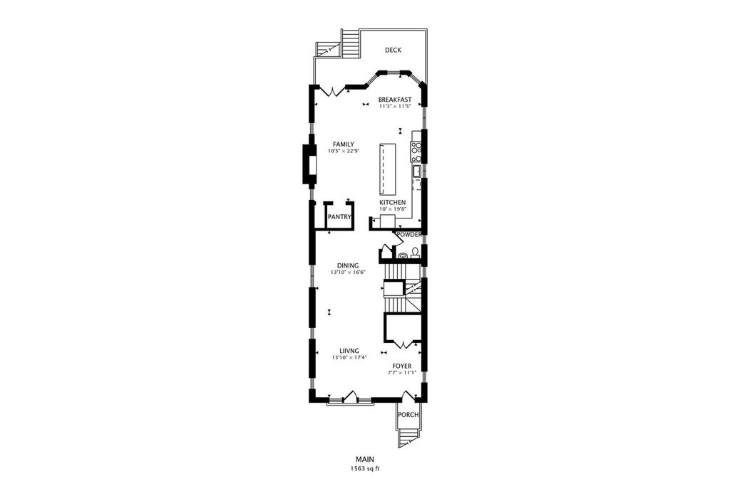
Spanning three spacious levels and situated on an extra-deep 30' x 155' lot, this expansive 5-bedroom, 3 full and 2 half-bathroom home offers over 4,600 square feet of finished living space-each level approximately 1,500 sq ft. Step inside to a wide entry foyer with a large coat closet and dramatic black accent wall, leading into an open-concept formal living room with soaring ceilings and brand new flooring. Continue down the hall to the dream kitchen featuring a massive island, professional-grade range, gorgeous countertops, a walk-in pantry, and an additional storage closet. The adjacent family room and eat-in dining area provide a warm, open flow ideal for both everyday living and entertaining. Upstairs you'll find three generously sized bedrooms with tall ceilings, a second laundry area, and two full bathrooms. The spacious primary suite boasts dual walk-in closets for ample storage. The fully finished lower level offers two additional large bedrooms, a full bath, a powder room, mechanical room, second laundry area, and an expansive living space flooded with natural light-perfect for a home theater, rec room, in-law suite, or short-term rental. There's a private rear entrance and a designated space already roughed in for a wet bar or kitchenette. While the backyard is ready for a refresh, it has incredible potential to become a serene outdoor retreat. There is currently no garage, but the oversized lot offers plenty of space to build one. The current owners have made substantial updates. The sale will not include the security system or the chandeliers; they will be capped before closing.
| DAYS ON MARKET | -5 | LAST UPDATED | 3/17/2026 |
|---|---|---|---|
| YEAR BUILT | 0 | COMMUNITY | CHI - Rogers Park |
| COUNTY | Cook | STATUS | Active |
| PROPERTY TYPE(S) | Single Family |
| ADDITIONAL DETAILS | |
| AIR | Central Air, Zoned |
|---|---|
| AIR CONDITIONING | Yes |
| AREA | CHI - Rogers Park |
| BASEMENT | Exterior Entry, Finished, Full, Yes |
| CONSTRUCTION | Cedar |
| FIREPLACE | Yes |
| HEAT | Forced Air, Natural Gas |
| LOT | 4134 sq ft |
| LOT DIMENSIONS | 30X155 |
| SEWER | Public Sewer |
| TAXES | 15547 |
| WATER | Public |
MORTGAGE CALCULATOR
TOTAL MONTHLY PAYMENT
0
P
I
*Estimate only
| SATELLITE VIEW |
| / | |
We respect your online privacy and will never spam you. By submitting this form with your telephone number
you are consenting for Humderto
Garcia to contact you even if your name is on a Federal or State
"Do not call List".
Listed with @properties Christie's International Real Estate
The data relating to real estate for sale on this web site comes in part from the Broker ReciprocitySM Program of MRED. All real estate listings are marked with the Broker ReciprocitySM logo or the MRED Broker ReciprocitySM thumbnail logo (a little black house) and detailed information about them includes the name of the listing brokers.
The broker providing these data believes them to be correct, but advises interested parties to confirm them before relying on them in a purchase decision.
Copyright 2026 MRED. All rights reserved.

The broker providing these data believes them to be correct, but advises interested parties to confirm them before relying on them in a purchase decision.
Copyright 2026 MRED. All rights reserved.
This IDX solution is (c) Diverse Solutions 2026.