|
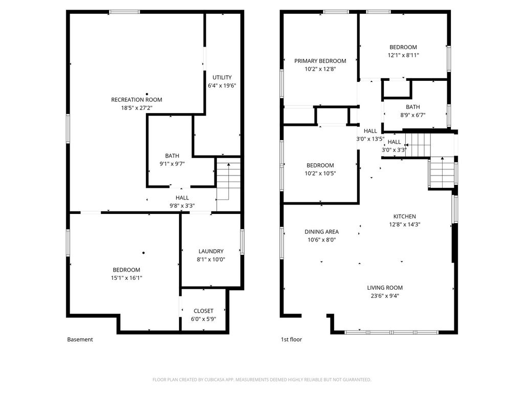
Welcome to the residence at 1314 E 151st. Fully remodeled brick home featuring FOUR BEDS, TWO FULL BATHS, LARGE OPEN FLOOR PLAN FEATURING HARDWOOD FLOOR, FINISHED BASEMENT, 1.5 CAR GARAGE, AND CENTRAL A/C. FHA AND VA WELCOME!
| DAYS ON MARKET | 1 | LAST UPDATED | 3/15/2026 |
|---|---|---|---|
| YEAR BUILT | 1961 | COMMUNITY | Dolton |
| GARAGE SPACES | 1.5 | COUNTY | Cook |
| STATUS | Active | PROPERTY TYPE(S) | Single Family |
| ADDITIONAL DETAILS | |
| AIR | Central Air |
|---|---|
| AIR CONDITIONING | Yes |
| AREA | Dolton |
| BASEMENT | Finished, Full, Yes |
| CONSTRUCTION | Brick |
| GARAGE | Yes |
| HEAT | Forced Air, Natural Gas |
| LOT | 0 |
| LOT DIMENSIONS | 48X100 |
| PARKING | Detached, Garage |
| SEWER | Public Sewer |
| TAXES | 7820 |
MORTGAGE CALCULATOR
TOTAL MONTHLY PAYMENT
0
P
I
*Estimate only
| SATELLITE VIEW |
| / | |
We respect your online privacy and will never spam you. By submitting this form with your telephone number
you are consenting for Humderto
Garcia to contact you even if your name is on a Federal or State
"Do not call List".
Listed with Top Care Realty LLC
The data relating to real estate for sale on this web site comes in part from the Broker ReciprocitySM Program of MRED. All real estate listings are marked with the Broker ReciprocitySM logo or the MRED Broker ReciprocitySM thumbnail logo (a little black house) and detailed information about them includes the name of the listing brokers.
The broker providing these data believes them to be correct, but advises interested parties to confirm them before relying on them in a purchase decision.
Copyright 2026 MRED. All rights reserved.

The broker providing these data believes them to be correct, but advises interested parties to confirm them before relying on them in a purchase decision.
Copyright 2026 MRED. All rights reserved.
This IDX solution is (c) Diverse Solutions 2026.