|
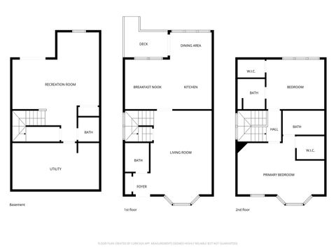
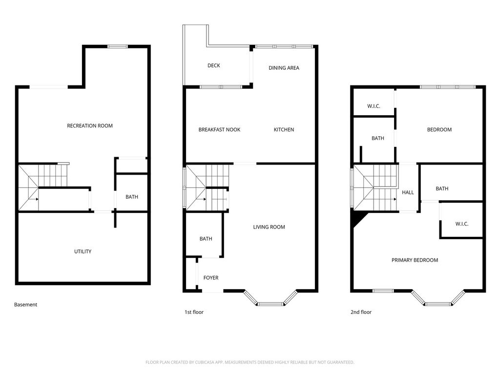
End-unit townhome in desirable Chesapeake Commons offering 2 bedrooms and 2.2 baths in a prime Geneva location. Backing to a scenic path, this home provides added privacy and a peaceful setting. The main and upper levels feature brand new carpeting, creating a fresh and inviting interior. The spacious kitchen includes a full stainless steel appliance package, ample cabinetry, and a bright eat-in area perfect for everyday dining. Sliding doors lead to a newer deck overlooking the path-ideal for relaxing or entertaining. The finished walk-out basement adds valuable living space with an additional bedroom option, perfect for guests, a home office, or recreation area. Additional highlights include a detached 1-car garage, an extra designated parking space, and the benefits of an end-unit layout with added natural light. Residents enjoy access to the community clubhouse and outdoor pool. Conveniently located near shopping, dining, and all that Geneva has to offer.
| DAYS ON MARKET | 3 | LAST UPDATED | 3/23/2026 |
|---|---|---|---|
| TRACT | Chesapeake Commons | YEAR BUILT | 1996 |
| COMMUNITY | Geneva | GARAGE SPACES | 1.0 |
| COUNTY | Kane | STATUS | Conditional |
| PROPERTY TYPE(S) | Condo/Townhouse/Co-Op |
| School District | Geneva Community High School |
|---|---|
| Elementary School | Harrison Street Elementary Schoo |
| Jr. High School | Geneva Middle School |
| High School | Geneva Community High School |
| ADDITIONAL DETAILS | |
| AIR | Central Air |
|---|---|
| AIR CONDITIONING | Yes |
| AMENITIES | Snow Removal |
| AREA | Geneva |
| BASEMENT | Partially Finished, Walk-Out Access, Yes |
| CONSTRUCTION | Aluminum Siding, Vinyl Siding |
| GARAGE | Yes |
| HEAT | Forced Air, Natural Gas |
| HOA DUES | 265 |
| LOT | 0 |
| LOT DIMENSIONS | 38x21x38x21 |
| PARKING | Asphalt, Detached, Garage |
| SEWER | Public Sewer |
| STORIES | 2 |
| SUBDIVISION | Chesapeake Commons |
| TAXES | 5818 |
| WATER | Public |
MORTGAGE CALCULATOR
TOTAL MONTHLY PAYMENT
0
P
I
*Estimate only
| SATELLITE VIEW |
| / | |
We respect your online privacy and will never spam you. By submitting this form with your telephone number
you are consenting for Humderto
Garcia to contact you even if your name is on a Federal or State
"Do not call List".
Listed with Berkshire Hathaway HomeServices Starck Real Estate
The data relating to real estate for sale on this web site comes in part from the Broker ReciprocitySM Program of MRED. All real estate listings are marked with the Broker ReciprocitySM logo or the MRED Broker ReciprocitySM thumbnail logo (a little black house) and detailed information about them includes the name of the listing brokers.
The broker providing these data believes them to be correct, but advises interested parties to confirm them before relying on them in a purchase decision.
Copyright 2026 MRED. All rights reserved.

The broker providing these data believes them to be correct, but advises interested parties to confirm them before relying on them in a purchase decision.
Copyright 2026 MRED. All rights reserved.
This IDX solution is (c) Diverse Solutions 2026.