|
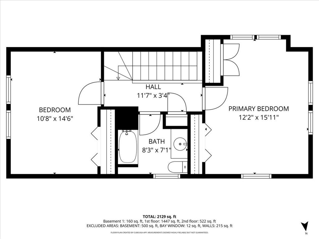
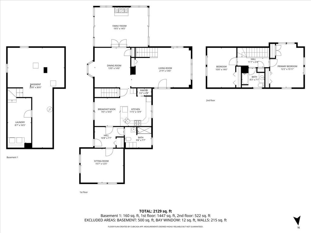
4 Acres of Opportunity - Equestrian Retreat, Private Estate, or Future Investment. Offered for the first time in over 50 years, this beautifully maintained 4-acre property delivers a rare combination of usable land, equestrian amenities, and a solid, updated home in a highly convenient Elgin location with easy access to I-90, Route 20, and Randall Road shopping, dining, and everyday services. The property includes a 2.5-acre homesite plus an additional 1.5-acre adjoining lot, creating flexibility, privacy, and long-term potential that is increasingly hard to find. The 2,200 square foot home offers 3 bedrooms and 2 full baths with hardwood flooring throughout and a thoughtful layout that includes a spacious living room, formal dining room, and an updated eat-in kitchen featuring new stainless steel appliances and Corian countertops. Expansive windows throughout the home fill the space with natural light and showcase views of the surrounding property. A true standout is the vaulted sunroom, complete with heating and air conditioning and anchored by a dramatic floor-to-ceiling fireplace, creating an inviting year-round living space ideal for relaxing or entertaining. Outdoor and land features make this property exceptionally versatile, including a barn with electric and water, 3 horse stalls, and a loft, horse-safe fencing surrounding the acreage, open usable ground suitable for turnout, recreation, equipment storage, or future possibilities, a 2.5-car detached garage, and an additional separate 1-car detached garage. Significant recent improvements provide peace of mind and long-term value, including a new roof, siding, deck, boiler, and well pump, and the basement offers additional storage space. This unique property is ideal for equestrian buyers, hobby farmers, contractors or business owners needing space for equipment, those seeking privacy and room to expand, or buyers exploring future land potential subject to local approvals. Properties offering this blend of acreage, infrastructure, location, and flexibility rarely come to market, making this a truly special opportunity in a prime setting. Truly a must see!
| DAYS ON MARKET | 1 | LAST UPDATED | 3/16/2026 |
|---|---|---|---|
| YEAR BUILT | 1900 | COMMUNITY | Elgin |
| GARAGE SPACES | 3.5 | COUNTY | Cook |
| STATUS | Active | PROPERTY TYPE(S) | Single Family |
| ADDITIONAL DETAILS | |
| AIR | Central Air |
|---|---|
| AIR CONDITIONING | Yes |
| APPLIANCES | Dishwasher, Dryer, Microwave, Range, Stainless Steel Appliance(s), Washer |
| AREA | Elgin |
| BARN/EQUESTRIAN | Yes |
| BASEMENT | Partial, Partially Finished, Yes |
| CONSTRUCTION | Vinyl Siding |
| FIREPLACE | Yes |
| GARAGE | Yes |
| HEAT | Forced Air, Natural Gas |
| HOA DUES | 100 |
| INTERIOR | Beamed Ceilings, Entrance Foyer, Vaulted Ceiling(s) |
| LOT | 4 acre(s) |
| LOT DESCRIPTION | Landscaped, Pasture |
| LOT DIMENSIONS | 304 195 177 177 148 90 66 |
| PARKING | Garage Door Opener, Garage, Detached, Driveway |
| SEWER | Septic Tank |
| STYLE | Farmhouse |
| TAXES | 11314.11 |
| WATER | Well |
MORTGAGE CALCULATOR
TOTAL MONTHLY PAYMENT
0
P
I
*Estimate only
| SATELLITE VIEW |
| / | |
We respect your online privacy and will never spam you. By submitting this form with your telephone number
you are consenting for Humderto
Garcia to contact you even if your name is on a Federal or State
"Do not call List".
Listed with Keller Williams Inspire - Geneva
The data relating to real estate for sale on this web site comes in part from the Broker ReciprocitySM Program of MRED. All real estate listings are marked with the Broker ReciprocitySM logo or the MRED Broker ReciprocitySM thumbnail logo (a little black house) and detailed information about them includes the name of the listing brokers.
The broker providing these data believes them to be correct, but advises interested parties to confirm them before relying on them in a purchase decision.
Copyright 2026 MRED. All rights reserved.

The broker providing these data believes them to be correct, but advises interested parties to confirm them before relying on them in a purchase decision.
Copyright 2026 MRED. All rights reserved.
This IDX solution is (c) Diverse Solutions 2026.