|
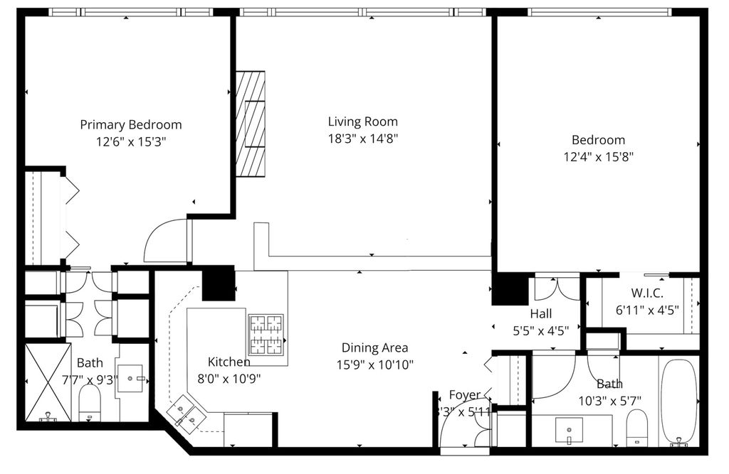
Interior designer-curated 2BR/2BA split floor plan with wall to wall and floor to ceiling windows allow for breathtaking, unobstructed Lake Michigan views at the full- amenity Harbor House building on Lake Shore Drive. This unit masterfully blends clean modern living while keeping the building's mid-century soul. The main living space was transformed by opening up the foyer, dining room and kitchen to the sunken living room giving all spaces a full view of the lake while flooding the home with natural light. Newly installed, wide-plank, gray-washed oak flooring throughout creates a clean and seamless backdrop to the purposefully chosen statement upgrades - a vintage travertine mantle pairs with a sleek bio-ethanol fireplace and solid black granite surround, a classic, airy Mooi chandelier defines the dining room area and the fully redesigned kitchen (2021) showcases Kraftmaid cabinetry in a greige sharkskin finish, burnished brass, knurled hardware, hands-free faucet, paneled dishwasher, GE refrigerator with in-door water and ice, quartz countertop and built-in microwave. The remodeled primary suite bathroom features limestone floor and walls, an extra linen closet, walnut vanity with Kohler vanity lit medicine cabinet mirror above, Kohler Laura Kirar fixtures, Kohler heated toilet seat, soaking air tub, and a thoughtfully re-plumbed layout. The adjoining bedroom features full lake views, a walk-in closet and a neutral micro-suede wallcovering, giving the space a rich, enveloping warmth. The guest bath equally impresses with marble tile walls, Kohler fixtures, steam shower, porcelain tile floor and exceptional built-in storage throughout. Garage parking available and storage locker included. Ideal location in East Lake View close to the lakefront path, restaurants, shops and public transportation. Building amenities: 24- doorperson, on-site management, indoor lap pool, fitness center and community room.
| DAYS ON MARKET | 1 | LAST UPDATED | 3/19/2026 |
|---|---|---|---|
| YEAR BUILT | 1967 | COMMUNITY | CHI - Lake View |
| GARAGE SPACES | 2.0 | COUNTY | Cook |
| STATUS | Active | PROPERTY TYPE(S) | Condo/Townhouse/Co-Op |
| School District | Lake View High School |
|---|---|
| Elementary School | Nettelhorst Elementary School |
| High School | Lake View High School |
| ADDITIONAL DETAILS | |
| AIR | Central Air |
|---|---|
| AIR CONDITIONING | Yes |
| AMENITIES | Insurance, Internet, Snow Removal, Water |
| APPLIANCES | Dishwasher, Dryer, Gas Cooktop, Microwave, Range, Refrigerator, Stainless Steel Appliance(s), Washer |
| AREA | CHI - Lake View |
| BASEMENT | None |
| CONSTRUCTION | Concrete |
| FIREPLACE | Yes |
| GARAGE | Attached Garage, Yes |
| HEAT | Forced Air, Natural Gas |
| HOA DUES | 1376 |
| INTERIOR | Elevator, Entrance Foyer, Storage |
| LOT | 0 |
| LOT DIMENSIONS | COMMON |
| PARKING | Leased, Attached, Garage |
| SEWER | Septic Tank |
| STORIES | 29 |
| TAXES | 5821.07 |
| VIEW | Yes |
| VIEW DESCRIPTION | Water |
| WATERFRONT | Yes |
MORTGAGE CALCULATOR
TOTAL MONTHLY PAYMENT
0
P
I
*Estimate only
| SATELLITE VIEW |
| / | |
We respect your online privacy and will never spam you. By submitting this form with your telephone number
you are consenting for Humderto
Garcia to contact you even if your name is on a Federal or State
"Do not call List".
Listed with Baird & Warner
The data relating to real estate for sale on this web site comes in part from the Broker ReciprocitySM Program of MRED. All real estate listings are marked with the Broker ReciprocitySM logo or the MRED Broker ReciprocitySM thumbnail logo (a little black house) and detailed information about them includes the name of the listing brokers.
The broker providing these data believes them to be correct, but advises interested parties to confirm them before relying on them in a purchase decision.
Copyright 2026 MRED. All rights reserved.

The broker providing these data believes them to be correct, but advises interested parties to confirm them before relying on them in a purchase decision.
Copyright 2026 MRED. All rights reserved.
This IDX solution is (c) Diverse Solutions 2026.