|
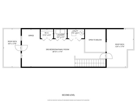
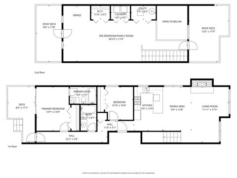
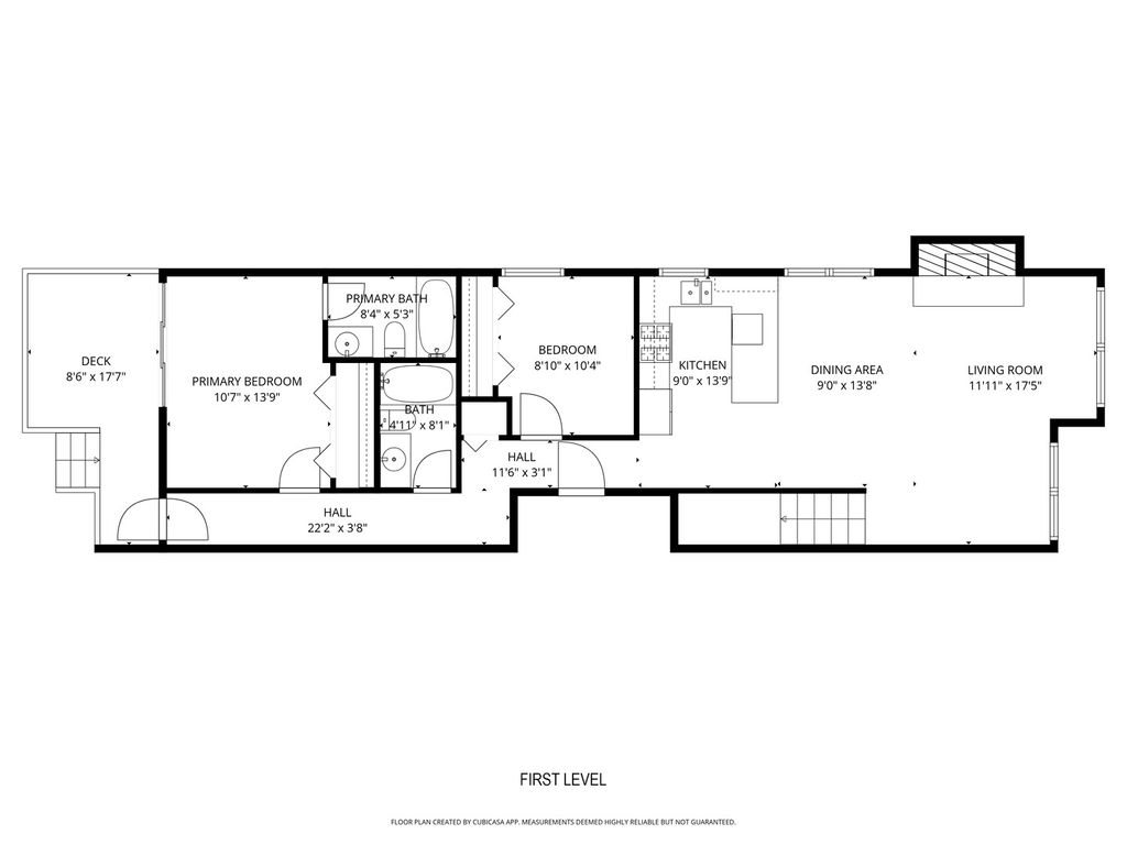
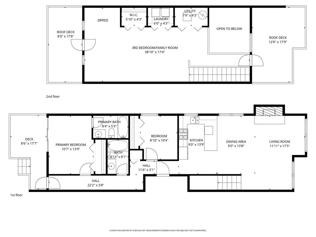
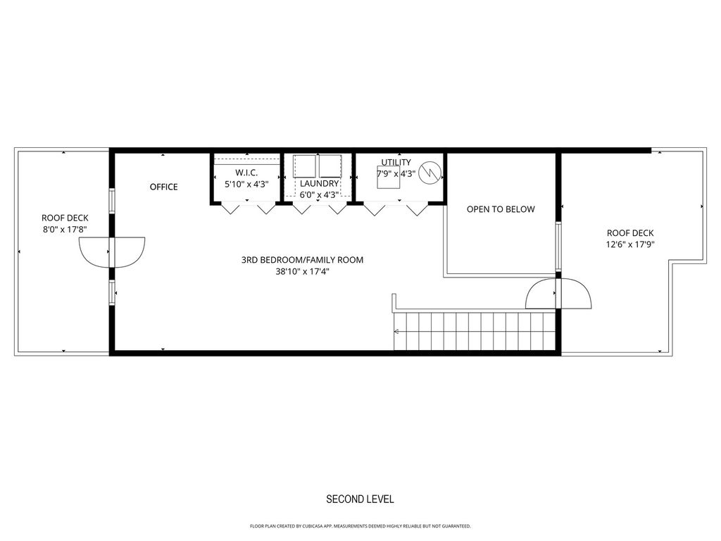
Welcome to this stunning Duplex-Up penthouse nestled on a charming tree-lined street in the heart of Wicker Park/East Village! This home is flooded with natural light and has dramatic vaulted ceilings. There are 2 beds/2 baths on the main level floor, and the second level is a versatile open space, ideal as a 3rd bedroom, office, or family room. Recently updated, the home features refinished hardwood floors, fresh paint throughout, and a refreshed kitchen with newly painted cabinetry, stainless steel appliances, and granite countertops. The open-concept layout includes a spacious living room with a cozy fireplace and a defined dining area, perfect for entertaining. Enjoy the luxury of three outdoor spaces - two private rooftop decks and a large back deck - providing skyline views of downtown as well as ample opportunities for hosting outdoors. Both bathrooms have been thoughtfully updated with painted vanities, upgraded shower heads, and faucets. Additional conveniences include side by side in-unit washer/dryer, an extra storage locker, and garage parking, all INCLUDED in the price. Located just steps from Division Street and Chicago Avenue's vibrant hotspots, with easy access to 90/94 highway and public transit, this home offers the perfect blend of modern comfort and unbeatable location!
| DAYS ON MARKET | 0 | LAST UPDATED | 3/26/2026 |
|---|---|---|---|
| YEAR BUILT | 2002 | COMMUNITY | CHI - West Town |
| GARAGE SPACES | 1.0 | COUNTY | Cook |
| STATUS | Active | PROPERTY TYPE(S) | Condo/Townhouse/Co-Op |
| ADDITIONAL DETAILS | |
| AIR | Central Air |
|---|---|
| AIR CONDITIONING | Yes |
| AMENITIES | Insurance, Water |
| APPLIANCES | Dishwasher, Disposal, Dryer, Freezer, Humidifier, Microwave, Range, Refrigerator, Stainless Steel Appliance(s), Washer |
| AREA | CHI - West Town |
| BASEMENT | None |
| CONSTRUCTION | Block, Brick |
| EXTERIOR | Balcony |
| FIREPLACE | Yes |
| GARAGE | Yes |
| HEAT | Forced Air, Natural Gas |
| HOA DUES | 200 |
| INTERIOR | Storage, Vaulted Ceiling(s) |
| LOT | 0 |
| LOT DIMENSIONS | Common |
| PARKING | Detached, Garage |
| SEWER | Public Sewer |
| STORIES | 3 |
| TAXES | 10379.55 |
MORTGAGE CALCULATOR
TOTAL MONTHLY PAYMENT
0
P
I
*Estimate only
| SATELLITE VIEW |
| / | |
We respect your online privacy and will never spam you. By submitting this form with your telephone number
you are consenting for Humderto
Garcia to contact you even if your name is on a Federal or State
"Do not call List".
Listed with Compass
The data relating to real estate for sale on this web site comes in part from the Broker ReciprocitySM Program of MRED. All real estate listings are marked with the Broker ReciprocitySM logo or the MRED Broker ReciprocitySM thumbnail logo (a little black house) and detailed information about them includes the name of the listing brokers.
The broker providing these data believes them to be correct, but advises interested parties to confirm them before relying on them in a purchase decision.
Copyright 2026 MRED. All rights reserved.

The broker providing these data believes them to be correct, but advises interested parties to confirm them before relying on them in a purchase decision.
Copyright 2026 MRED. All rights reserved.
This IDX solution is (c) Diverse Solutions 2026.