|
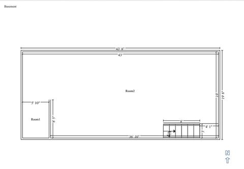
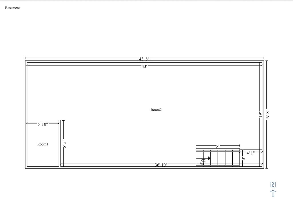
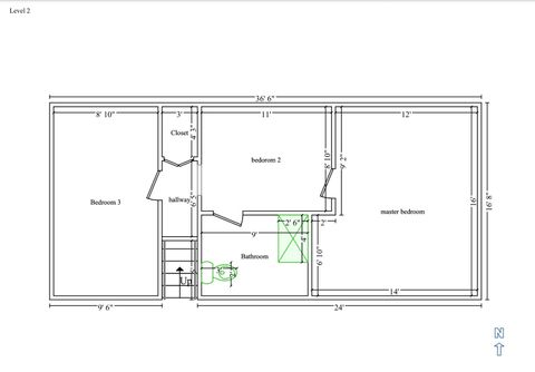
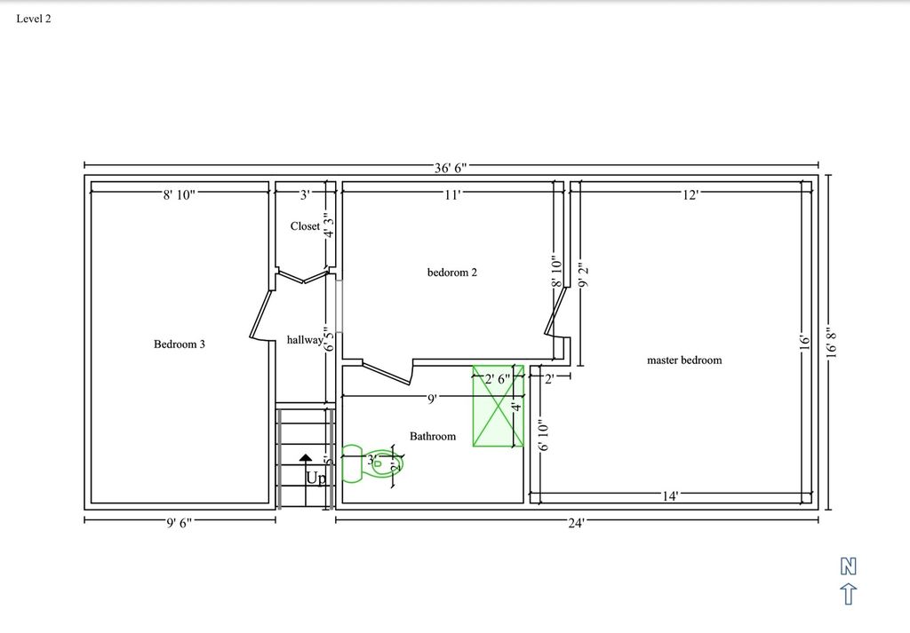
Welcome to 6418 s May st, this newly renovated two-story home in the Englewood neighborhood of Chicago. Offers new electricity, new HVAC, new windows, and new plumbing systems. Built on a double lot, this home offers three bedrooms and two beautifully updated bathrooms to use at your pleasure. Two living rooms allow for a variety of spaces to relax. The spacious living room on the first floor is the perfect place to host guests with its three large windows and an electric fireplace. This generous layout allows flexibility for a formal dining area, if desired. While the living room on the second floor allows for use as a comfortable sitting room, an office, or even a reading nook. The kitchen showcases new cabinetry with gold colored handles, new appliances, and new quartz countertops. Along with this, the kitchen has a bottle rack and an island that doubles as a breakfast bar. The spacious basement holds the laundry room with a brand new washer-dryer set and a small pantry for extra storage. Whether used as an extra room, a home cinema, or just as extra storage, this carpeted basement offers near unlimited configurations for you to use. The porch has been repainted, and the yard includes the adjacent lot, allowing for possible expansion (subject to city approval) and adding to the home's curb appeal. But this is not all this property has to offer, as its convenient location in relation to public transport, major expressways, schools, parks, and neighborhood amenities. Allows you to have the comforts of suburban living while the excitement of downtown Chicago is just a hop away. This home is move-in ready and designed for modern living. Schedule your private showing today!
| DAYS ON MARKET | 1 | LAST UPDATED | 3/18/2026 |
|---|---|---|---|
| YEAR BUILT | 1888 | COMMUNITY | CHI - Englewood |
| COUNTY | Cook | STATUS | Active |
| PROPERTY TYPE(S) | Single Family |
| ADDITIONAL DETAILS | |
| AIR | None |
|---|---|
| APPLIANCES | Dryer, Microwave, Range, Refrigerator, Washer |
| AREA | CHI - Englewood |
| BASEMENT | Full, Unfinished, Yes |
| CONSTRUCTION | Vinyl Siding |
| HEAT | Natural Gas |
| LOT | 0 |
| LOT DIMENSIONS | 25x125 |
| PARKING | Assigned |
| SEWER | Public Sewer |
| TAXES | 1073 |
MORTGAGE CALCULATOR
TOTAL MONTHLY PAYMENT
0
P
I
*Estimate only
| SATELLITE VIEW |
| / | |
We respect your online privacy and will never spam you. By submitting this form with your telephone number
you are consenting for Humderto
Garcia to contact you even if your name is on a Federal or State
"Do not call List".
Listed with PROSALES REALTY
The data relating to real estate for sale on this web site comes in part from the Broker ReciprocitySM Program of MRED. All real estate listings are marked with the Broker ReciprocitySM logo or the MRED Broker ReciprocitySM thumbnail logo (a little black house) and detailed information about them includes the name of the listing brokers.
The broker providing these data believes them to be correct, but advises interested parties to confirm them before relying on them in a purchase decision.
Copyright 2026 MRED. All rights reserved.

The broker providing these data believes them to be correct, but advises interested parties to confirm them before relying on them in a purchase decision.
Copyright 2026 MRED. All rights reserved.
This IDX solution is (c) Diverse Solutions 2026.