|
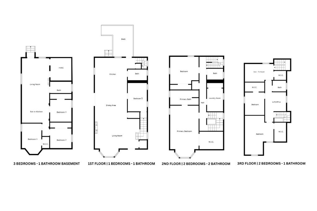
DRAMATIC PRICE CHANGE!! This stunning Five Bedroom / three-bathroom Colonial Style house with a three bedroom / one-bathroom in-law suite, located in the Washington Park neighborhood. Take advantage of the Super low property taxes and Currently Low interest rates to secure this gorgeous home on a 32X150 Oversized lot. Family moments are best spent at HOME and I'm here to tell you that this is the HOME of your dreams. This expansive residence sits in an oversized lot (32X150) and offers eight generously sized bedrooms (5 above grade and 3 in basement) plus a loft currently serving as an office, and a TV Room/Den along with 4.5 impeccably updated bathrooms (one of them in the basement). The main level flows with effortless elegance, from the formal living and dining areas to the elegant kitchen to the cozy corners made for quiet conversation or lively entertaining outdoors. This storybook Colonial gem's exquisite renovation is a great marriage between timeless architecture and modern comfort. Anchored by a grand spiral staircase worthy of Architectural Digest. Filled with light, grace, and purpose, this home is a stunning tribute to design evolution-a thoughtful preservation of its original intent, now elevated for contemporary living. On the second level, the sprawling master suite complete with a walk-in closet and a spa-like bath, features a soaking tub and separate glass-enclosed shower. But what sets this home apart is the in-law suite in the lower level-a fully equipped secondary residence with a full kitchen, three oversized bedrooms, a full bath, and its own private entrance. Whether you're welcoming extended family, housing guests, or exploring rental income, this space offers remarkable flexibility and comfort. It's fascinating how a home can evolve-how each owner leaves a mark. Here, however, the essence has been lovingly preserved, enhanced only to suit the rhythm of today's lifestyle. Moments matter. Family matters. And this is the kind of home that holds them all beautifully. Come see why this hidden Colonial gem isn't just a house-it's the one you've been waiting for.
| DAYS ON MARKET | 1 | LAST UPDATED | 3/18/2026 |
|---|---|---|---|
| YEAR BUILT | 1895 | COMMUNITY | CHI - Washington Park |
| GARAGE SPACES | 2.0 | COUNTY | Cook |
| STATUS | Active | PROPERTY TYPE(S) | Single Family |
| School District | Phillips Academy High School |
|---|---|
| Elementary School | Carter Elementary School |
| Jr. High School | Woodlawn Elementary School Commu |
| High School | Phillips Academy High School |
| ADDITIONAL DETAILS | |
| AIR | Central Air, Gas, Zoned |
|---|---|
| AIR CONDITIONING | Yes |
| APPLIANCES | Dishwasher, Dryer, Microwave, Range, Stainless Steel Appliance(s), Washer |
| AREA | CHI - Washington Park |
| BASEMENT | Finished, Full, Sump Pump, Yes |
| CONSTRUCTION | Frame |
| GARAGE | Yes |
| HEAT | Forced Air, Natural Gas |
| INTERIOR | High Ceilings, In-Law Floorplan, Open Floorplan, Walk-In Closet(s) |
| LOT | 4792 sq ft |
| LOT DIMENSIONS | 32X150 |
| PARKING | Garage Door Opener, Detached, Garage |
| SEWER | Public Sewer |
| STYLE | Colonial, Prairie |
| TAXES | 870.86 |
| WATER | Public |
MORTGAGE CALCULATOR
TOTAL MONTHLY PAYMENT
0
P
I
*Estimate only
| SATELLITE VIEW |
| / | |
We respect your online privacy and will never spam you. By submitting this form with your telephone number
you are consenting for Humderto
Garcia to contact you even if your name is on a Federal or State
"Do not call List".
Listed with MPower Residential Brokerage LLC
The data relating to real estate for sale on this web site comes in part from the Broker ReciprocitySM Program of MRED. All real estate listings are marked with the Broker ReciprocitySM logo or the MRED Broker ReciprocitySM thumbnail logo (a little black house) and detailed information about them includes the name of the listing brokers.
The broker providing these data believes them to be correct, but advises interested parties to confirm them before relying on them in a purchase decision.
Copyright 2026 MRED. All rights reserved.

The broker providing these data believes them to be correct, but advises interested parties to confirm them before relying on them in a purchase decision.
Copyright 2026 MRED. All rights reserved.
This IDX solution is (c) Diverse Solutions 2026.