|
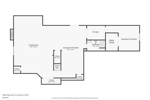
In Fox Creek of Campton Hills, this custom-built home pairs timeless design, thoughtful updates, and the everyday functionality today's buyers have come to expect. From the classic brick and Hardie Board exterior to the professionally landscaped yard, the care invested in this property is apparent from the start. Inside, extensive millwork, rich hardwood flooring, 9-foot ceilings, and generous natural light create a bright, spacious feel throughout. Fresh interior paint, updated light fixtures, and a refreshed staircase in 2025 enhance the home's polished presentation. Formal living and dining rooms offer excellent entertaining space, while the large family room, anchored by a brick fireplace, creates a warm and inviting everyday gathering area. The kitchen features custom cabinetry, granite countertops, and stainless steel appliances. A first-floor den with an adjacent updated full bath offers flexibility for a home office, potential fifth bedroom, or a comfortable multi-generational living arrangement, with the nearby laundry room reinforcing the privacy of that wing of the home. Upstairs, the primary suite includes a tray ceiling, expansive sitting room, updated bath with separate shower and jacuzzi tub, dual vanities, and an impressive 17x8 walk-in closet. The second bedroom enjoys a private bath, while bedrooms three and four share a Jack-and-Jill bath. All bedrooms include walk-in closets. The finished basement adds ~1,600 square feet of additional living space, including a recreation room with a second brick fireplace, game area, updated full bath, flexible office, exercise, or play space, and abundant storage. Previously unfinished basement area was completed in 2025, and a new reverse osmosis system was also installed. Outside, the private patio overlooks a beautifully landscaped backyard with expansive green space and a mature, tree-lined backdrop, creating a peaceful, private setting. Set just across from the neighborhood lake, and with a new roof in 2023, close proximity to the elementary school and park, and convenient access to downtown St. Charles, Geneva, and the La Fox Metra station, this home brings together quality, space, and setting in a way that is increasingly hard to find. Pride of ownership is evident throughout.
| DAYS ON MARKET | 11 | LAST UPDATED | 3/19/2026 |
|---|---|---|---|
| TRACT | Fox Creek | YEAR BUILT | 2006 |
| COMMUNITY | Campton Hills / St. Charles | GARAGE SPACES | 3.0 |
| COUNTY | Kane | STATUS | Active |
| PROPERTY TYPE(S) | Single Family |
| School District | St Charles North High School |
|---|---|
| Elementary School | Wasco Elementary School |
| Jr. High School | Thompson Middle School |
| High School | St Charles North High School |
| ADDITIONAL DETAILS | |
| AIR | Ceiling Fan(s), Central Air |
|---|---|
| AIR CONDITIONING | Yes |
| AMENITIES | Insurance |
| APPLIANCES | Cooktop, Dishwasher, Double Oven, Dryer, Humidifier, Microwave, Range Hood, Refrigerator, Stainless Steel Appliance(s), Washer, Water Purifier, Water Purifier Owned |
| AREA | Campton Hills / St. Charles |
| BASEMENT | Finished, Full, Storage Space, Sump Pump, Yes |
| CONSTRUCTION | Brick, Fiber Cement |
| FIREPLACE | Yes |
| GARAGE | Attached Garage, Yes |
| HEAT | Forced Air, Natural Gas |
| HOA DUES | 760 |
| INTERIOR | Cathedral Ceiling(s), Granite Counters, High Ceilings, Pantry, Walk-In Closet(s) |
| LOT | 0.32 acre(s) |
| LOT DESCRIPTION | Landscaped |
| LOT DIMENSIONS | 85 X 166 |
| PARKING | Asphalt, Garage Door Opener, Attached, Garage |
| SEWER | Public Sewer |
| STYLE | Traditional |
| SUBDIVISION | Fox Creek |
| TAXES | 13272.46 |
| VIEW | Yes |
| VIEW DESCRIPTION | Water |
| WATER | Public |
MORTGAGE CALCULATOR
TOTAL MONTHLY PAYMENT
0
P
I
*Estimate only
| SATELLITE VIEW |
| / | |
We respect your online privacy and will never spam you. By submitting this form with your telephone number
you are consenting for Humderto
Garcia to contact you even if your name is on a Federal or State
"Do not call List".
Listed with Compass
The data relating to real estate for sale on this web site comes in part from the Broker ReciprocitySM Program of MRED. All real estate listings are marked with the Broker ReciprocitySM logo or the MRED Broker ReciprocitySM thumbnail logo (a little black house) and detailed information about them includes the name of the listing brokers.
The broker providing these data believes them to be correct, but advises interested parties to confirm them before relying on them in a purchase decision.
Copyright 2026 MRED. All rights reserved.

The broker providing these data believes them to be correct, but advises interested parties to confirm them before relying on them in a purchase decision.
Copyright 2026 MRED. All rights reserved.
This IDX solution is (c) Diverse Solutions 2026.