|
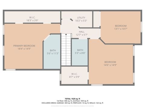
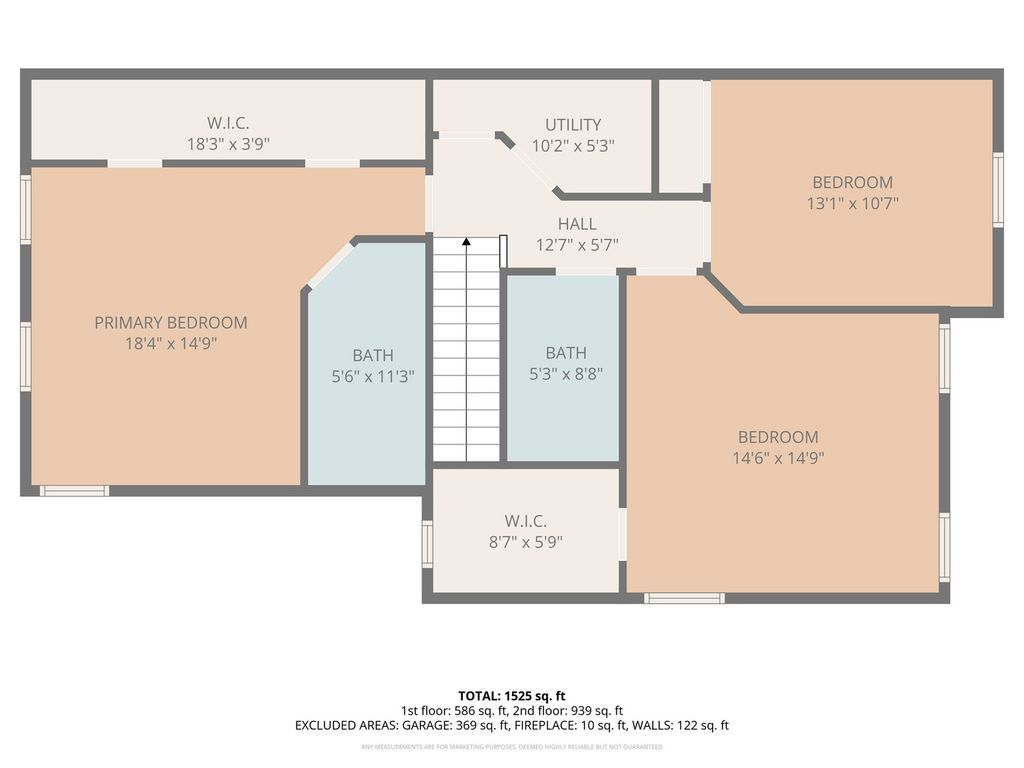
Welcome to a rare corner end-unit townhome that lives larger than the rest-featuring an expansive side yard, extra windows flooding the home with natural light, and open views with no direct backyard neighbors. Backing to a wide green common area that stretches to the community clubhouse and pool, this home delivers both space and serenity that interior units simply can't match. Step inside to a bright, inviting layout anchored by a spacious family room with updated laminate flooring and a cozy gas fireplace. The kitchen offers an abundance of 42" cabinetry and generous counter space, seamlessly connecting to a dedicated dining area with direct access to your private patio and open green space beyond. Upstairs, you'll find three generously sized bedrooms plus the convenience of a second-floor laundry room. The primary suite is a true retreat, complete with two walk-in closets and a private ensuite bath. A spacious secondary bedroom also features a walk-in closet and updated recessed lighting. Enjoy resort-style living with access to a clubhouse, pool, tennis courts, basketball courts, and multiple parks-all within walking distance. Located in the highly desirable Minooka School District and just minutes from Downtown Plainfield, shopping, dining, and everyday conveniences. Additional highlights include newer washer/dryer, and a water heater just 3-4 years old. End units like this-on a corner, with this much outdoor space and privacy-don't come available often. Schedule your showing before it's gone.
| DAYS ON MARKET | 32 | LAST UPDATED | 4/15/2026 |
|---|---|---|---|
| TRACT | Sable Ridge | YEAR BUILT | 2007 |
| COMMUNITY | Joliet | GARAGE SPACES | 2.0 |
| COUNTY | Will | STATUS | Active |
| PROPERTY TYPE(S) | Condo/Townhouse/Co-Op |
| School District | Minooka Community High School |
|---|---|
| Elementary School | Jones Elementary School |
| Jr. High School | Minooka Junior High School |
| High School | Minooka Community High School |
| PRICE HISTORY | |
| Prior to Apr 15, '26 | $275,000 |
|---|---|
| Apr 15, '26 - Today | $269,990 |
| ADDITIONAL DETAILS | |
| AIR | Ceiling Fan(s), Central Air |
|---|---|
| AIR CONDITIONING | Yes |
| AMENITIES | Snow Removal |
| APPLIANCES | Dishwasher, Dryer, Microwave, Range, Refrigerator, Washer |
| AREA | Joliet |
| BASEMENT | None |
| CONSTRUCTION | Brick |
| FIREPLACE | Yes |
| GARAGE | Attached Garage, Yes |
| HEAT | Forced Air, Natural Gas |
| HOA DUES | 350 |
| LOT | 0 |
| LOT DIMENSIONS | 36x72x35 |
| PARKING | Asphalt, Garage Door Opener, Attached, Garage |
| SEWER | Public Sewer |
| STORIES | 2 |
| SUBDIVISION | Sable Ridge |
| TAXES | 5770 |
| WATER | Public |
MORTGAGE CALCULATOR
TOTAL MONTHLY PAYMENT
0
P
I
*Estimate only
| SATELLITE VIEW |
| / | |
We respect your online privacy and will never spam you. By submitting this form with your telephone number
you are consenting for Humderto
Garcia to contact you even if your name is on a Federal or State
"Do not call List".
Listed with RE/MAX Ultimate Professionals
The data relating to real estate for sale on this web site comes in part from the Broker ReciprocitySM Program of MRED. All real estate listings are marked with the Broker ReciprocitySM logo or the MRED Broker ReciprocitySM thumbnail logo (a little black house) and detailed information about them includes the name of the listing brokers.
The broker providing these data believes them to be correct, but advises interested parties to confirm them before relying on them in a purchase decision.
Copyright 2026 MRED. All rights reserved.

The broker providing these data believes them to be correct, but advises interested parties to confirm them before relying on them in a purchase decision.
Copyright 2026 MRED. All rights reserved.
This IDX solution is (c) Diverse Solutions 2026.