|
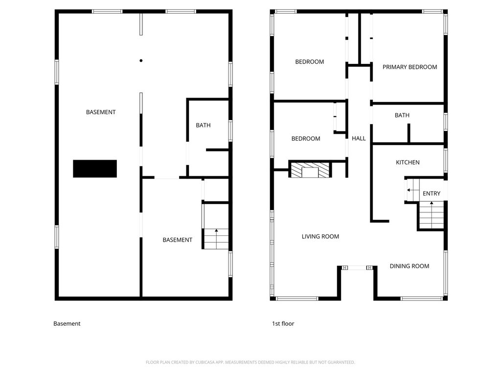
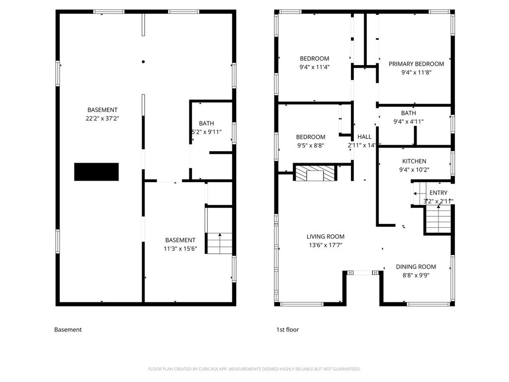
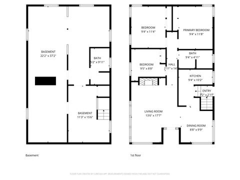
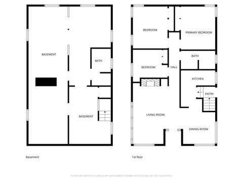
Welcome to 1055 South 4th Avenue in Kankakee-a classic three-bedroom, two-bath ranch home full of opportunity and untapped potential. From the moment you step inside, you'll see the solid layout and character that make this property a perfect canvas for the right buyer. The main level offers a traditional and functional floor plan featuring a spacious living room, dedicated dining area, kitchen, three bedrooms, and a full bathroom-all conveniently laid out for everyday living. Downstairs, the full basement expands your possibilities with four additional rooms, a second bathroom, and a laundry area, providing ample space for storage, recreation, or future finishing touches. This home is being sold as-is as part of an estate, and the seller has never occupied the property. While it does require updates and improvements, the upside is undeniable. Whether you're an investor searching for your next flip or rental, or a buyer looking to build equity and create a home of your own, this property delivers value and versatility. Outside, you'll find a detached two-car garage along with additional parking-ideal for multiple vehicles, guests, or added convenience. Opportunities like this don't come around often at this price point. Bring your vision, your tools, and your ambition-this one is ready for its next chapter. Call today to schedule your private showing-serious buyers only.
| DAYS ON MARKET | 7 | LAST UPDATED | 3/22/2026 |
|---|---|---|---|
| YEAR BUILT | 1940 | COMMUNITY | Kankakee |
| GARAGE SPACES | 2.0 | COUNTY | Kankakee |
| STATUS | Active | PROPERTY TYPE(S) | Single Family |
| ADDITIONAL DETAILS | |
| AIR | Wall Unit(s) |
|---|---|
| AIR CONDITIONING | Yes |
| AREA | Kankakee |
| BASEMENT | Full, Partially Finished, Yes |
| CONSTRUCTION | Stone, Vinyl Siding |
| FIREPLACE | Yes |
| GARAGE | Yes |
| HEAT | Natural Gas |
| LOT | 0 |
| LOT DIMENSIONS | 40X150 |
| PARKING | Detached, Garage |
| SEWER | Public Sewer |
| TAXES | 3170 |
| WATER | Public |
MORTGAGE CALCULATOR
TOTAL MONTHLY PAYMENT
0
P
I
*Estimate only
| SATELLITE VIEW |
| / | |
We respect your online privacy and will never spam you. By submitting this form with your telephone number
you are consenting for Humderto
Garcia to contact you even if your name is on a Federal or State
"Do not call List".
Listed with Village Realty, Inc
The data relating to real estate for sale on this web site comes in part from the Broker ReciprocitySM Program of MRED. All real estate listings are marked with the Broker ReciprocitySM logo or the MRED Broker ReciprocitySM thumbnail logo (a little black house) and detailed information about them includes the name of the listing brokers.
The broker providing these data believes them to be correct, but advises interested parties to confirm them before relying on them in a purchase decision.
Copyright 2026 MRED. All rights reserved.

The broker providing these data believes them to be correct, but advises interested parties to confirm them before relying on them in a purchase decision.
Copyright 2026 MRED. All rights reserved.
This IDX solution is (c) Diverse Solutions 2026.