|
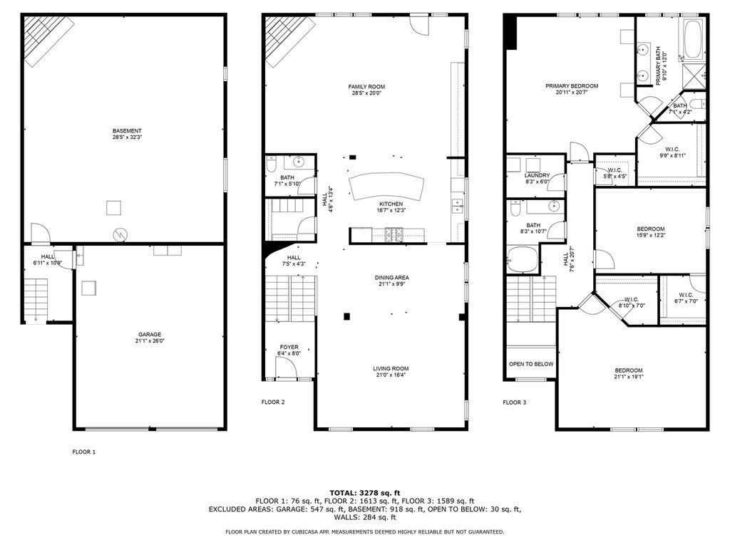
Welcome to 740 Manor Hill Place where luxury meets life style. Step into this beautiful two-story townhome located in the desirable Prestbury community of Sugar Grove. From the moment you walk in you'll feel the difference - the beautful hardwood floors and elegant open stairway to living and entertaining. Feel the solid construction, the flowing open spaces, the spacious windows, the elevated ceilings and the quality woodwork throughout. The formal living and dining rooms will hold all your friends and family. These rooms flow to the open, efficient and beautiful kitchen and the 20 by 28 ft family room that opens to a spacious cedar deck. What a party you can have! A brick, wood-burning fireplace accents the room. The ability to arrange seating areas and work areas are endless. The second floor features 3 spacious bedrooms, each with walk-in closets. The Primary Suite features a luxury bath with walk-in shower, double vanity, private lavatory and more. Second floor laundry is another convenient asset. The full basement has 9 foot ceilings with a grand brick fireplace and the area can be finished to your taste. Furnace and AC replaced about 3 years ago. Radon piping available if you choose to install radon equipment. Extra electrical panels. Security system apparatus is present but not enabled/used. Family room wired for sound but no speakers. The best part is that the HOA takes care of the exterior of your unit - painting the exterior on a rotating basis, replacing roofs, caring for landscaping and snow removal, mulching, seeding,etc. Your membership in the Prestbury community gives you access to a life-guarded pool, tennis/pickle ball courts, walking/bike trails, playgrounds, clubhouse. And the golf course is public with easy access to meals and entertainment.
| DAYS ON MARKET | 42 | LAST UPDATED | 4/12/2026 |
|---|---|---|---|
| TRACT | Windstone Manor | YEAR BUILT | 2005 |
| COMMUNITY | Sugar Grove | GARAGE SPACES | 2.0 |
| COUNTY | Kane | STATUS | Conditional |
| PROPERTY TYPE(S) | Condo/Townhouse/Co-Op |
| School District | West Aurora High School |
|---|---|
| High School | West Aurora High School |
| ADDITIONAL DETAILS | |
| AIR | Central Air |
|---|---|
| AIR CONDITIONING | Yes |
| AMENITIES | Insurance, Snow Removal |
| APPLIANCES | Dishwasher, Disposal, Dryer, Microwave, Range, Refrigerator, Washer |
| AREA | Sugar Grove |
| BASEMENT | Concrete, Full, Sump Pump, Unfinished, Yes |
| CONSTRUCTION | Brick, Cedar |
| FIREPLACE | Yes |
| GARAGE | Attached Garage, Yes |
| HEAT | Natural Gas |
| HOA DUES | 401 |
| INTERIOR | Cathedral Ceiling(s), Entrance Foyer, Open Floorplan, Pantry, Storage, Walk-In Closet(s) |
| LOT | 0 |
| LOT DIMENSIONS | 2614 |
| PARKING | Concrete, Garage Door Opener, Garage, Attached |
| SEWER | Public Sewer |
| STORIES | 2 |
| SUBDIVISION | Windstone Manor |
| TAXES | 11242 |
| WATER | Public |
MORTGAGE CALCULATOR
TOTAL MONTHLY PAYMENT
0
P
I
*Estimate only
| SATELLITE VIEW |
| / | |
We respect your online privacy and will never spam you. By submitting this form with your telephone number
you are consenting for Humderto
Garcia to contact you even if your name is on a Federal or State
"Do not call List".
Listed with Keller Williams Premiere Properties
The data relating to real estate for sale on this web site comes in part from the Broker ReciprocitySM Program of MRED. All real estate listings are marked with the Broker ReciprocitySM logo or the MRED Broker ReciprocitySM thumbnail logo (a little black house) and detailed information about them includes the name of the listing brokers.
The broker providing these data believes them to be correct, but advises interested parties to confirm them before relying on them in a purchase decision.
Copyright 2026 MRED. All rights reserved.

The broker providing these data believes them to be correct, but advises interested parties to confirm them before relying on them in a purchase decision.
Copyright 2026 MRED. All rights reserved.
This IDX solution is (c) Diverse Solutions 2026.