|
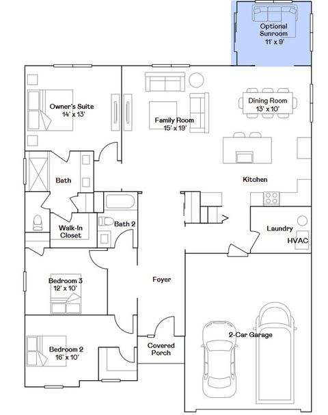
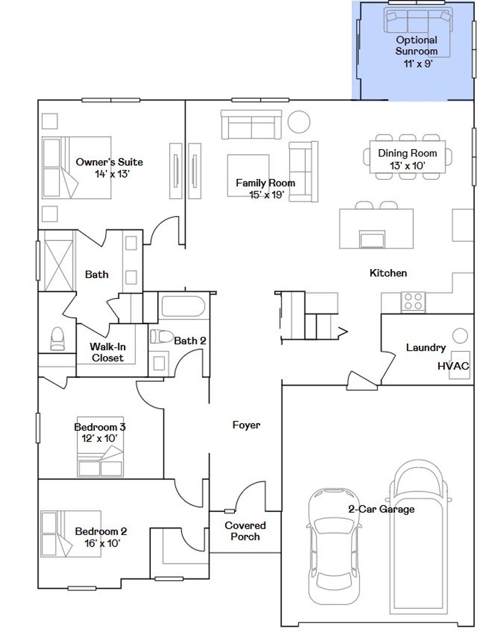
READY FOR MARCH DELIVERY!!!! Homesite# 0041 Step into the Siena, a thoughtfully designed single-story home that blends comfort, efficiency, and modern style. This well-balanced layout features three bedrooms and two bathrooms within an open-concept design that creates a seamless flow between the family room, dining area, and kitchen-perfect for both everyday living and casual entertaining. This home also features a cozy Sunroom and optional expanded basement. At the heart of the home, the kitchen shines with a spacious island, Quartz countertops, stainless steel appliances, and generous cabinetry, offering both function and elegance. The private owner's suite is a peaceful retreat, complete with an expansive walk-in closet and a spa-like en-suite bathroom designed for relaxation. Two additional bedrooms are positioned near a shared hallway bath, offering flexibility for guests, family members, or a home office. The Siena also includes 9-foot ceilings, luxury vinyl plank flooring, plush carpeting, Deluxe shower upgrades, smart-height water-saving commodes, and many other premium features tailored to enrich your lifestyle. Delivering modern living in a streamlined, practical layout, the Siena is a versatile and stylish choice for a wide range of homeowners. Exterior will be Canyon color sidings with Benton Brick (pic for reference ONLY) *Photos are not this actual home* Experience the perfect blend of comfort, convenience, and outdoor living at Prairie Meadows, a charming new community offering low-maintenance ranch-style homes in the vibrant suburbs of Aurora, Illinois. Thoughtfully designed for effortless living and a love of nature, Prairie Meadows delivers a lifestyle centered on relaxation, recreation, and meaningful community connection. This thoughtfully planned neighborhood will feature a scenic park and playground, modern pickleball courts, a welcoming picnic shelter, fire pit, and comfortable seating areas, along with approximately 15 acres of open space to enjoy fresh air and the natural surroundings. Living at Prairie Meadows means you're just minutes from some of Aurora's most popular attractions. Downtown's River Edge Park offers outdoor festivals, an amphitheater, and scenic trails along the Fox River, making it a go-to destination for entertainment and relaxation. For shopping enthusiasts, the Chicago Premium Outlets is a premier open-air retail center featuring more than 170 designer brands, seasonal events, and unbeatable deals. Golfers will love the nearby Orchard Valley Golf Course, a beautifully maintained 18-hole championship course perfect for both casual and competitive play, complete with a welcoming clubhouse for dining and socializing.
| DAYS ON MARKET | 1 | LAST UPDATED | 3/23/2026 |
|---|---|---|---|
| TRACT | Prairie Meadows | YEAR BUILT | 2025 |
| COMMUNITY | Aurora / Eola | GARAGE SPACES | 2.0 |
| COUNTY | Kane | STATUS | Conditional |
| PROPERTY TYPE(S) | Single Family |
| School District | West Aurora High School |
|---|---|
| Elementary School | Freeman Elementary School |
| Jr. High School | Washington Middle School |
| High School | West Aurora High School |
| ADDITIONAL DETAILS | |
| AIR | Central Air |
|---|---|
| AIR CONDITIONING | Yes |
| AMENITIES | Insurance, Snow Removal |
| APPLIANCES | Dishwasher, Disposal, Microwave, Range, Stainless Steel Appliance(s) |
| AREA | Aurora / Eola |
| BASEMENT | Full, Unfinished, Yes |
| CONSTRUCTION | Brick, Vinyl Siding |
| GARAGE | Attached Garage, Yes |
| HEAT | Forced Air, Natural Gas |
| HOA DUES | 250 |
| LOT | 0 |
| LOT DIMENSIONS | 9370 |
| PARKING | Asphalt, Garage Door Opener, Attached, Garage |
| SEWER | Public Sewer |
| SUBDIVISION | Prairie Meadows |
| WATER | Public |
MORTGAGE CALCULATOR
TOTAL MONTHLY PAYMENT
0
P
I
*Estimate only
| SATELLITE VIEW |
| / | |
We respect your online privacy and will never spam you. By submitting this form with your telephone number
you are consenting for Humderto
Garcia to contact you even if your name is on a Federal or State
"Do not call List".
Listed with HomeSmart Connect LLC
The data relating to real estate for sale on this web site comes in part from the Broker ReciprocitySM Program of MRED. All real estate listings are marked with the Broker ReciprocitySM logo or the MRED Broker ReciprocitySM thumbnail logo (a little black house) and detailed information about them includes the name of the listing brokers.
The broker providing these data believes them to be correct, but advises interested parties to confirm them before relying on them in a purchase decision.
Copyright 2026 MRED. All rights reserved.

The broker providing these data believes them to be correct, but advises interested parties to confirm them before relying on them in a purchase decision.
Copyright 2026 MRED. All rights reserved.
This IDX solution is (c) Diverse Solutions 2026.