|
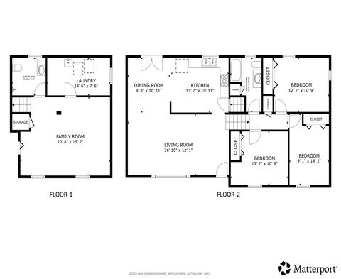
Sun-Drenched Split-Level in Winfield! Fall in love with this 3Bed/2Bath gem featuring maple kitchen cabinetry, quartz countertops, tile backsplash, stainless appliances, custom window treatments, and gleaming hardwood floors in living room with a cozy gas fireplace. Hardwood floors throughout the bedrooms as well. Downstairs, the finished basement offers custom built-ins, a spacious living area, laundry, full bath, and ample storage. Furnace & water heater replaced in 2020, new roof in 2019. Step outside to your private entertainer's oasis: a massive deck, patio, and fire pit in a fully fenced yard. Complete with a 2-car garage and storage shed, all within the top-rated District 200 schools known for strong academics and excellent college preparation as well close to the Illinois Prairie Path.
| DAYS ON MARKET | 37 | LAST UPDATED | 4/1/2026 |
|---|---|---|---|
| YEAR BUILT | 1974 | COMMUNITY | Winfield |
| GARAGE SPACES | 2.0 | COUNTY | DuPage |
| STATUS | Conditional | PROPERTY TYPE(S) | Single Family |
| School District | Wheaton North High School |
|---|---|
| Elementary School | Pleasant Hill Elementary School |
| Jr. High School | Monroe Middle School |
| High School | Wheaton North High School |
| ADDITIONAL DETAILS | |
| AIR | Ceiling Fan(s), Central Air |
|---|---|
| AIR CONDITIONING | Yes |
| APPLIANCES | Dishwasher, Disposal, Dryer, Humidifier, Microwave, Range, Refrigerator, Washer |
| AREA | Winfield |
| BASEMENT | Finished, Full, Sump Pump, Yes |
| CONSTRUCTION | Vinyl Siding |
| EXTERIOR | Fire Pit |
| FIREPLACE | Yes |
| GARAGE | Yes |
| HEAT | Forced Air, Natural Gas |
| LOT | 0 |
| LOT DIMENSIONS | 10454 |
| PARKING | Asphalt, Garage Door Opener, Detached, Garage |
| SEWER | Public Sewer |
| WATER | Public |
MORTGAGE CALCULATOR
TOTAL MONTHLY PAYMENT
0
P
I
*Estimate only
| SATELLITE VIEW |
| / | |
We respect your online privacy and will never spam you. By submitting this form with your telephone number
you are consenting for Humderto
Garcia to contact you even if your name is on a Federal or State
"Do not call List".
Listed with Redfin Corporation
The data relating to real estate for sale on this web site comes in part from the Broker ReciprocitySM Program of MRED. All real estate listings are marked with the Broker ReciprocitySM logo or the MRED Broker ReciprocitySM thumbnail logo (a little black house) and detailed information about them includes the name of the listing brokers.
The broker providing these data believes them to be correct, but advises interested parties to confirm them before relying on them in a purchase decision.
Copyright 2026 MRED. All rights reserved.

The broker providing these data believes them to be correct, but advises interested parties to confirm them before relying on them in a purchase decision.
Copyright 2026 MRED. All rights reserved.
This IDX solution is (c) Diverse Solutions 2026.