|
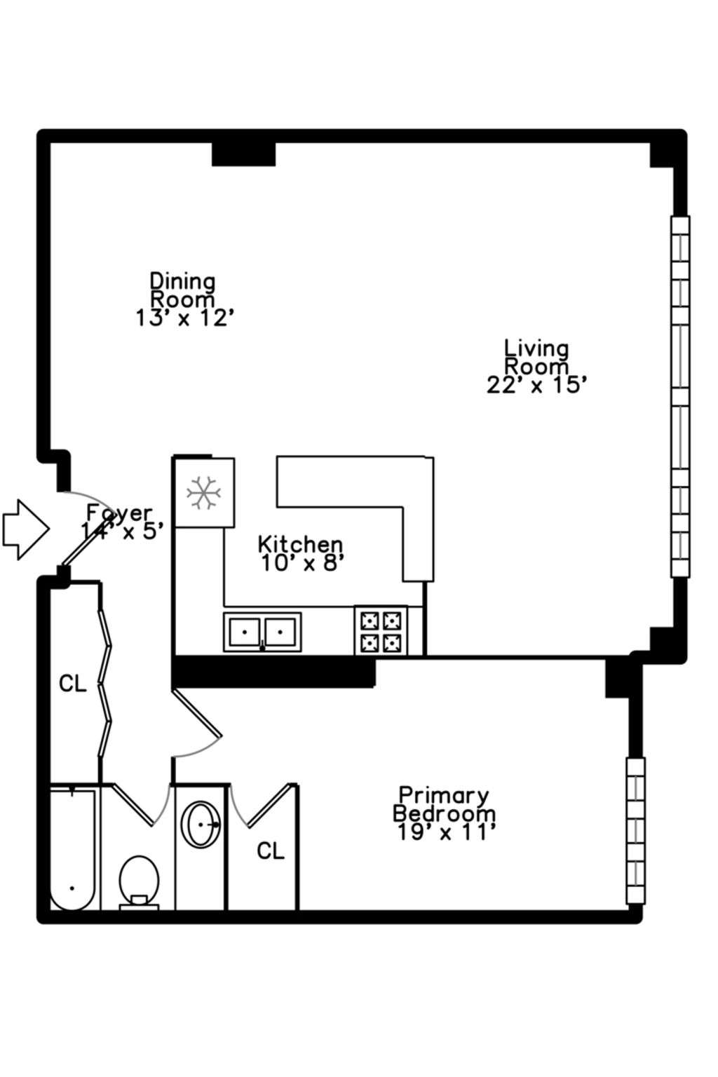
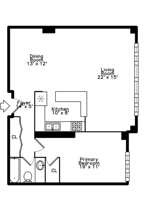
This spacious and bright one bedroom, one bath condo with open concept kitchen/living/dining spaces is ideally located in a vibrant part of town- Printer's Row in the South Loop- a charming, historic neighborhood full of local, independently- owned and long standing shops and restaurants, including Kasey's Tavern and Sandmeyer's bookstore. It has a small-town feel in the heart of a big city! This home features hardwood floors in the main living spaces, a huge walk in closet in the bedroom, and an open kitchen with a breakfast bar and real solid wood cabinets. Enjoy the comfort and convenience of the building amenities including evening doorperson, laundry room, storage, bike room and a hospitality/party room. Easily accessible to every El line, express bus, Trader Joe's, Jewel, coffee shops, the theater district, the Chicago Public Library main branch, museum campus, the lakefront, Grant and Millennium Parks, Roosevelt University and the Art Institute, and so much more! *Added benefit is the option to purchase a heated garage parking space right in the building- a rarity in this area of town! Enjoy the farmers market May through October and the Lit Fest in September. Comfort, convenience and community~If you want to know your neighbors and have a sense of belonging in your community, this is the home for you!
| DAYS ON MARKET | 10 | LAST UPDATED | 4/9/2026 |
|---|---|---|---|
| TRACT | Dearborn Park | YEAR BUILT | 1985 |
| COMMUNITY | CHI - Loop | GARAGE SPACES | 1.0 |
| COUNTY | Cook | STATUS | Active |
| PROPERTY TYPE(S) | Condo/Townhouse/Co-Op |
| School District | Jones College Prep High School |
|---|---|
| Elementary School | South Loop Elementary School |
| Jr. High School | South Loop Elementary School |
| High School | Jones College Prep High School |
| ADDITIONAL DETAILS | |
| AIR | Ceiling Fan(s), Wall Unit(s) |
|---|---|
| AIR CONDITIONING | Yes |
| AMENITIES | Insurance, Internet, Snow Removal, Water |
| APPLIANCES | Dishwasher, Microwave, Range, Refrigerator |
| AREA | CHI - Loop |
| BASEMENT | None |
| CONSTRUCTION | Brick |
| GARAGE | Attached Garage, Yes |
| HEAT | Electric, Zoned |
| HOA DUES | 710 |
| INTERIOR | Elevator, Entrance Foyer, Walk-In Closet(s) |
| LOT | 0 |
| LOT DESCRIPTION | Landscaped |
| LOT DIMENSIONS | COMMON |
| PARKING | Garage Door Opener, Heated Garage, Attached, Garage |
| SEWER | Public Sewer |
| STORIES | 11 |
| SUBDIVISION | Dearborn Park |
| TAXES | 4638.4 |
| UTILITIES | Cable Available |
MORTGAGE CALCULATOR
TOTAL MONTHLY PAYMENT
0
P
I
*Estimate only
| SATELLITE VIEW |
| / | |
We respect your online privacy and will never spam you. By submitting this form with your telephone number
you are consenting for Humderto
Garcia to contact you even if your name is on a Federal or State
"Do not call List".
Listed with Berkshire Hathaway HomeServices Chicago
The data relating to real estate for sale on this web site comes in part from the Broker ReciprocitySM Program of MRED. All real estate listings are marked with the Broker ReciprocitySM logo or the MRED Broker ReciprocitySM thumbnail logo (a little black house) and detailed information about them includes the name of the listing brokers.
The broker providing these data believes them to be correct, but advises interested parties to confirm them before relying on them in a purchase decision.
Copyright 2026 MRED. All rights reserved.

The broker providing these data believes them to be correct, but advises interested parties to confirm them before relying on them in a purchase decision.
Copyright 2026 MRED. All rights reserved.
This IDX solution is (c) Diverse Solutions 2026.