|
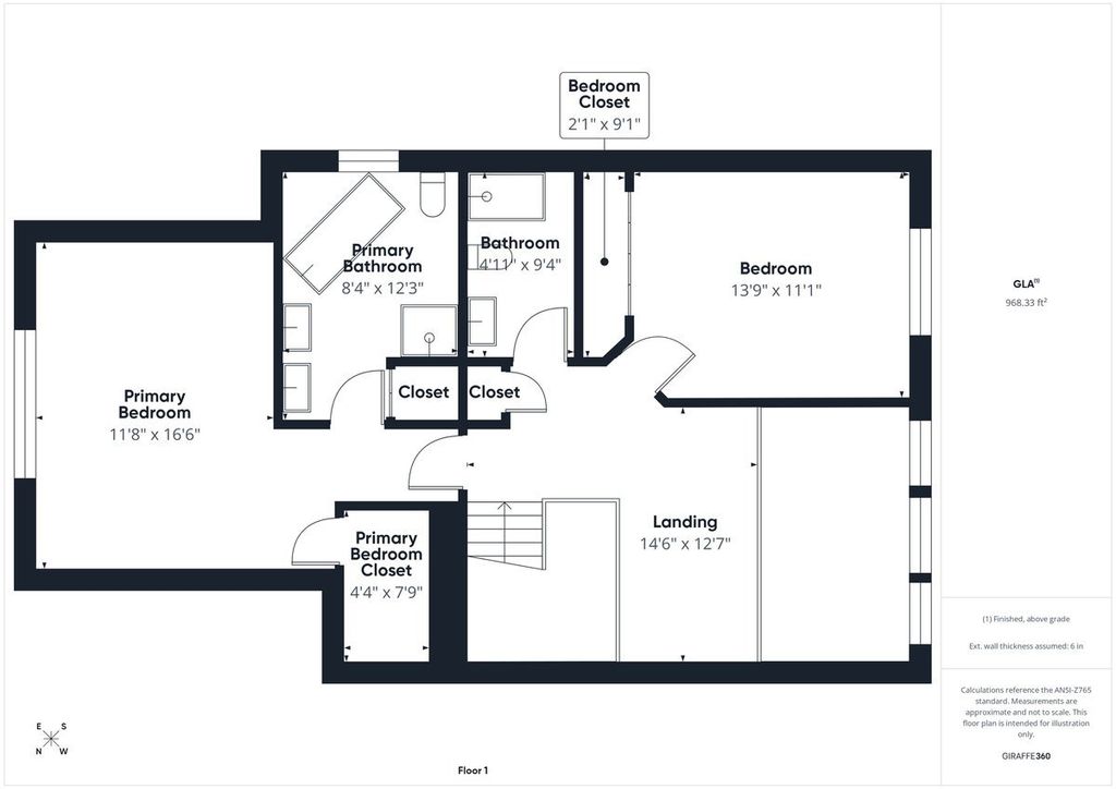
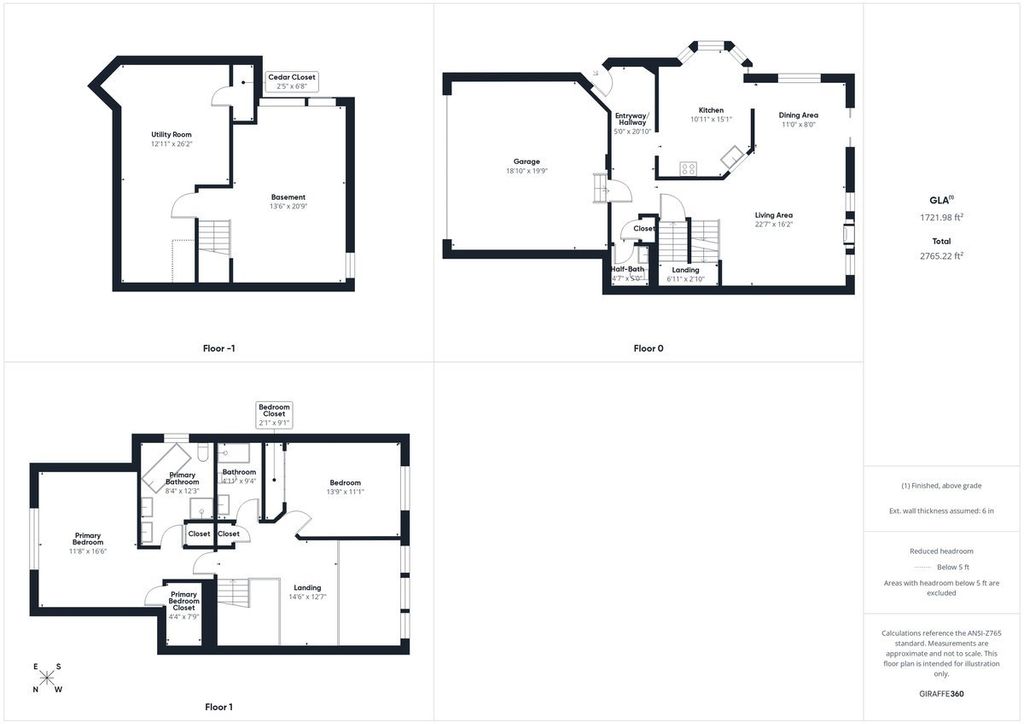
Welcome to 1056 Mattande Lane, a thoughtfully updated 2-bedroom, 2.1-bath home offering approximately 1,633 square feet of comfortable living space in a convenient Naperville location. Built in 1990, the home features a practical layout designed for everyday living and entertaining, with inviting living areas, a fireplace focal point, and a seamless flow between rooms. Numerous major updates provide peace of mind for the next owner. The kitchen has been refreshed with updated appliances, including refrigerator, stove, microwave, and dishwasher, all replaced within the last four years. Additional mechanical improvements include a furnace, air conditioning unit, and hot water heater replaced in 2020. Exterior improvements include a new roof and siding completed in 2024, along with a new deck installed in 2025, creating an ideal space for outdoor enjoyment and entertaining. The home offers a manageable footprint while still providing comfortable living space, including generously sized bedrooms and 2.1 bathrooms to accommodate a variety of living arrangements. There is an upstairs loft area, currently used as an office space, but can easily be altered into another living space or bedroom. Exterior construction and classic design elements contribute to long-term durability and timeless appeal. Located in Naperville, the property benefits from convenient access to shopping, dining, parks, and major transportation routes, while being situated within one of the Chicago area's most established suburban communities known for strong long-term housing demand and local amenities. This property presents an excellent opportunity for buyers seeking an updated home with major improvements already completed, allowing for both comfort and confidence in long-term ownership.
| DAYS ON MARKET | 1 | LAST UPDATED | 4/23/2026 |
|---|---|---|---|
| YEAR BUILT | 1990 | COMMUNITY | Naperville |
| GARAGE SPACES | 2.0 | COUNTY | DuPage |
| STATUS | Active | PROPERTY TYPE(S) | Condo/Townhouse/Co-Op |
| School District | Naperville North High School |
|---|---|
| Elementary School | Highlands Elementary School |
| Jr. High School | Kennedy Junior High School |
| High School | Naperville North High School |
| PRICE HISTORY | |
| Prior to Apr 23, '26 | $475,000 |
|---|---|
| Apr 23, '26 - Today | $470,000 |
| ADDITIONAL DETAILS | |
| AIR | Central Air |
|---|---|
| AIR CONDITIONING | Yes |
| AMENITIES | Insurance, Snow Removal |
| APPLIANCES | Dishwasher, Microwave, Range, Refrigerator |
| AREA | Naperville |
| BASEMENT | Full, Partially Finished, Yes |
| CONSTRUCTION | Other |
| FIREPLACE | Yes |
| GARAGE | Attached Garage, Yes |
| HEAT | Natural Gas |
| HOA DUES | 450 |
| LOT | 0 |
| LOT DIMENSIONS | 29X88X23X88 |
| PARKING | Asphalt, Attached, Garage |
| SEWER | Public Sewer |
| STORIES | 2 |
| TAXES | 6642 |
| WATER | Public |
MORTGAGE CALCULATOR
TOTAL MONTHLY PAYMENT
0
P
I
*Estimate only
| SATELLITE VIEW |
| / | |
We respect your online privacy and will never spam you. By submitting this form with your telephone number
you are consenting for Humderto
Garcia to contact you even if your name is on a Federal or State
"Do not call List".
Listed with Baird & Warner
The data relating to real estate for sale on this web site comes in part from the Broker ReciprocitySM Program of MRED. All real estate listings are marked with the Broker ReciprocitySM logo or the MRED Broker ReciprocitySM thumbnail logo (a little black house) and detailed information about them includes the name of the listing brokers.
The broker providing these data believes them to be correct, but advises interested parties to confirm them before relying on them in a purchase decision.
Copyright 2026 MRED. All rights reserved.

The broker providing these data believes them to be correct, but advises interested parties to confirm them before relying on them in a purchase decision.
Copyright 2026 MRED. All rights reserved.
This IDX solution is (c) Diverse Solutions 2026.