|
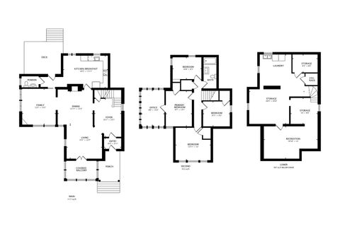
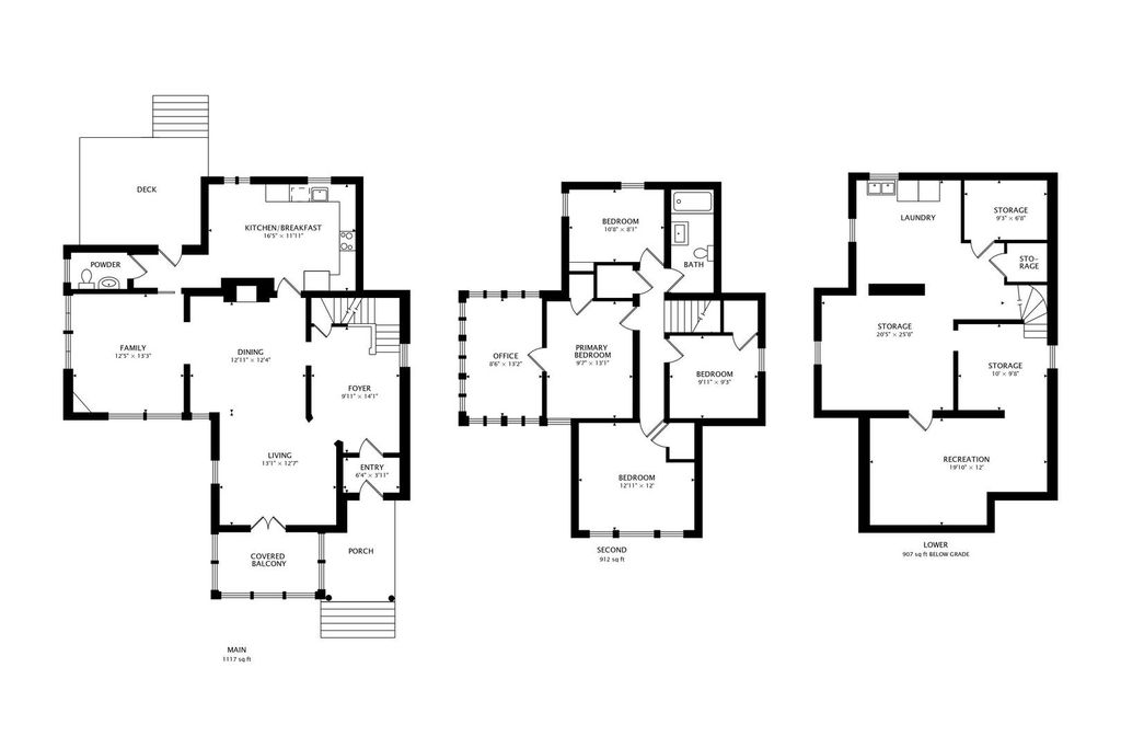
Charming farmhouse with original architectural details and tasteful updates. Original decorative fireplace anchors the living spaces. Flexible main floor layout with a huge entryway/mudroom, living room, dining room, and family room with amazing natural light. Plus a lovely screened in porch off the living space. Generously sized eat-in kitchen with double oven, gas cooktop with a vent hood, and a farmhouse sink. The main floor also includes an adorable powder room. The second floor features 4 bedrooms plus a sunroom. The shared bath has two large skylights bringing in a ton of natural light. The basement provides a large recreation space, a ton of storage space, and a laundry room. Fantastic outdoor space; back deck, patio, and a huge yard. The shared driveway leads to a newly built 2 car garage (2020). Updated electrical (2021). Tankless hot water heater installed in 2020. New shed (2021). New fence (2022). Steps to Washington Elementary School, Robert Crown Community Center, the shops along Main Street, the train, and downtown.
| DAYS ON MARKET | 1 | LAST UPDATED | 3/25/2026 |
|---|---|---|---|
| YEAR BUILT | 1869 | COMMUNITY | Evanston |
| GARAGE SPACES | 2.0 | COUNTY | Cook |
| STATUS | Active | PROPERTY TYPE(S) | Single Family |
| School District | Evanston Twp High School |
|---|---|
| Elementary School | Washington Elementary School |
| Jr. High School | Nichols Middle School |
| High School | Evanston Twp High School |
| ADDITIONAL DETAILS | |
| APPLIANCES | Dishwasher, Disposal, Dryer, Microwave, Range, Refrigerator, Stainless Steel Appliance(s), Washer |
|---|---|
| AREA | Evanston |
| BASEMENT | Full, Unfinished, Yes |
| CONSTRUCTION | Frame |
| FIREPLACE | Yes |
| GARAGE | Yes |
| HEAT | Hot Water |
| INTERIOR | Entrance Foyer |
| LOT | 0 |
| LOT DIMENSIONS | 50 X 156 |
| PARKING | Asphalt, Shared Driveway, Detached, Garage |
| SEWER | Public Sewer |
| STYLE | Farmhouse, Victorian |
| TAXES | 16140.14 |
| UTILITIES | Cable Available |
MORTGAGE CALCULATOR
TOTAL MONTHLY PAYMENT
0
P
I
*Estimate only
| SATELLITE VIEW |
| / | |
We respect your online privacy and will never spam you. By submitting this form with your telephone number
you are consenting for Humderto
Garcia to contact you even if your name is on a Federal or State
"Do not call List".
Listed with Baird & Warner
The data relating to real estate for sale on this web site comes in part from the Broker ReciprocitySM Program of MRED. All real estate listings are marked with the Broker ReciprocitySM logo or the MRED Broker ReciprocitySM thumbnail logo (a little black house) and detailed information about them includes the name of the listing brokers.
The broker providing these data believes them to be correct, but advises interested parties to confirm them before relying on them in a purchase decision.
Copyright 2026 MRED. All rights reserved.

The broker providing these data believes them to be correct, but advises interested parties to confirm them before relying on them in a purchase decision.
Copyright 2026 MRED. All rights reserved.
This IDX solution is (c) Diverse Solutions 2026.