|
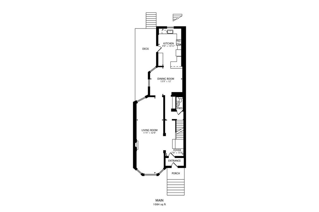
Timeless charm meets modern living in this beautifully maintained 1899 rowhouse, in the heart of Evanston. From the moment you step through the double-door entry, you're welcomed by soaring 9.5-foot ceilings, original hardwood floors, and stunning vintage details, including intricate trim and classic doorknobs. A mudroom area, at the entry, provides a space to hang coats and leave shoes. Large, updated Anderson windows throughout provide incredible natural light throughout the day. The oversized living room is perfect for relaxing or entertaining, anchored by a cozy gas fireplace. The thoughtfully updated kitchen, with quartz counter tops, white cabinets, tons of pantry space, a breakfast bar and stainless-steel appliances opens seamlessly to the dining area, creating an ideal space for everyday living and gatherings. A butler pantry off the dining room adds both character and functionality. Great flow from the kitchen to the deck and backyard makes indoor-outdoor entertaining easy. The backyard has a large paver patio, space for a garden, is fully fenced and has access to a private alley behind the home. An updated 1/2 bath conveniently finishes off the first floor. Beautiful hardwood stairs bring you upstairs where you'll find three bedrooms, plus one additional tandem bedroom. The spacious primary suite offers an additional flex area-ideal for a private in-home office or sitting area. The hall bath features a large soaking tub, skylight, heated floors, and classic black-and-white tile. Generous closet space throughout. The basement has been dug out, is already plumbed for a full bathroom, and has direct access to the backyard, providing incredible potential to expand your living space. Use this space for your storage needs and transform the rest into a family room, guest space, in-law suite or any unique space you can dream of. All of this and an unbeatable location-just steps from the Metra and El trains, the Main and Chicago Avenue shops and restaurants, parks, schools, and an easy walk to Lake Michigan. With easy access to Northwestern and downtown Chicago, this home truly offers the best of Evanston living.
| DAYS ON MARKET | 8 | LAST UPDATED | 4/20/2026 |
|---|---|---|---|
| YEAR BUILT | 1899 | COMMUNITY | Evanston |
| COUNTY | Cook | STATUS | Conditional |
| PROPERTY TYPE(S) | Single Family |
| School District | Evanston Twp High School |
|---|---|
| Elementary School | Lincoln Elementary School |
| Jr. High School | Nichols Middle School |
| High School | Evanston Twp High School |
| ADDITIONAL DETAILS | |
| AIR | Other |
|---|---|
| AIR CONDITIONING | Yes |
| AREA | Evanston |
| BASEMENT | Bath/Stubbed, Exterior Entry, Full, Unfinished, Yes |
| CONSTRUCTION | Brick |
| FIREPLACE | Yes |
| HEAT | Hot Water |
| LOT | 0 |
| LOT DIMENSIONS | 22 X 120 |
| SEWER | Public Sewer |
| STYLE | Row House |
| TAXES | 14125.14 |
MORTGAGE CALCULATOR
TOTAL MONTHLY PAYMENT
0
P
I
*Estimate only
| SATELLITE VIEW |
| / | |
We respect your online privacy and will never spam you. By submitting this form with your telephone number
you are consenting for Humderto
Garcia to contact you even if your name is on a Federal or State
"Do not call List".
Listed with @properties Christie's International Real Estate
The data relating to real estate for sale on this web site comes in part from the Broker ReciprocitySM Program of MRED. All real estate listings are marked with the Broker ReciprocitySM logo or the MRED Broker ReciprocitySM thumbnail logo (a little black house) and detailed information about them includes the name of the listing brokers.
The broker providing these data believes them to be correct, but advises interested parties to confirm them before relying on them in a purchase decision.
Copyright 2026 MRED. All rights reserved.

The broker providing these data believes them to be correct, but advises interested parties to confirm them before relying on them in a purchase decision.
Copyright 2026 MRED. All rights reserved.
This IDX solution is (c) Diverse Solutions 2026.