|
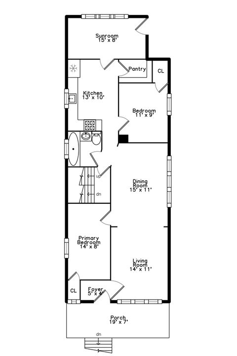
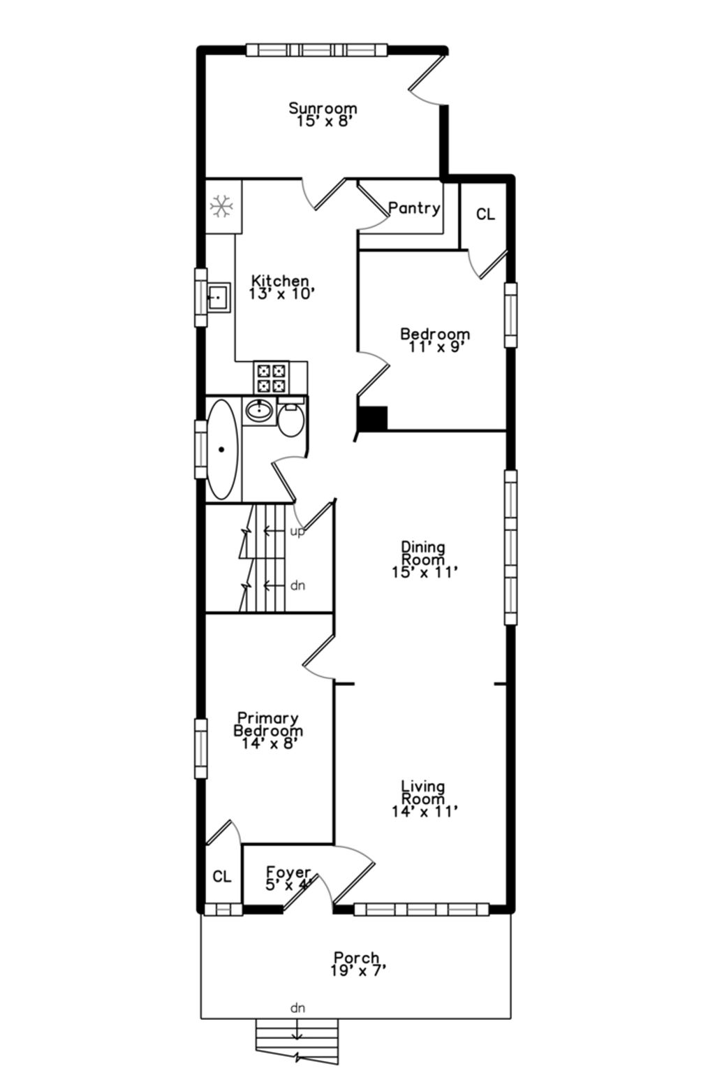
Welcome to this beautifully recently rehabbed home that blends modern upgrades with comfortable living in the heart of Chicago. This residence features 4 bedrooms and 2 full bathrooms, thoughtfully designed for today's lifestyle. The interior has been refreshed from top to bottom, showcasing brand-new appliances, updated finishes, and a clean, contemporary look throughout. Natural light fills the living spaces, creating a warm and inviting atmosphere perfect for both everyday living and entertaining. The updated kitchen offers modern functionality with sleek appliances and ample cabinet space, while the renovated bathrooms feature stylish, modern touches. Other updates include brand new roof, new fenced in gate, yard and new front deck flooring. Whether you're a growing family or an investor seeking a move-in-ready property, this home delivers comfort, convenience, and value. Located near schools, transportation, and neighborhood amenities.
| DAYS ON MARKET | 0 | LAST UPDATED | 3/26/2026 |
|---|---|---|---|
| YEAR BUILT | 1917 | COMMUNITY | CHI - Greater Grand Crossing |
| COUNTY | Cook | STATUS | Active |
| PROPERTY TYPE(S) | Single Family |
| ADDITIONAL DETAILS | |
| AIR | None |
|---|---|
| AREA | CHI - Greater Grand Crossing |
| BASEMENT | Partial, Partially Finished, Yes |
| CONSTRUCTION | Brick |
| HEAT | Hot Water |
| INTERIOR | Entrance Foyer |
| LOT | 3101 sq ft |
| LOT DIMENSIONS | 25X125 |
| SEWER | Public Sewer |
| TAXES | 1567.06 |
MORTGAGE CALCULATOR
TOTAL MONTHLY PAYMENT
0
P
I
*Estimate only
| SATELLITE VIEW |
| / | |
We respect your online privacy and will never spam you. By submitting this form with your telephone number
you are consenting for Humderto
Garcia to contact you even if your name is on a Federal or State
"Do not call List".
Listed with Baird & Warner
The data relating to real estate for sale on this web site comes in part from the Broker ReciprocitySM Program of MRED. All real estate listings are marked with the Broker ReciprocitySM logo or the MRED Broker ReciprocitySM thumbnail logo (a little black house) and detailed information about them includes the name of the listing brokers.
The broker providing these data believes them to be correct, but advises interested parties to confirm them before relying on them in a purchase decision.
Copyright 2026 MRED. All rights reserved.

The broker providing these data believes them to be correct, but advises interested parties to confirm them before relying on them in a purchase decision.
Copyright 2026 MRED. All rights reserved.
This IDX solution is (c) Diverse Solutions 2026.