|
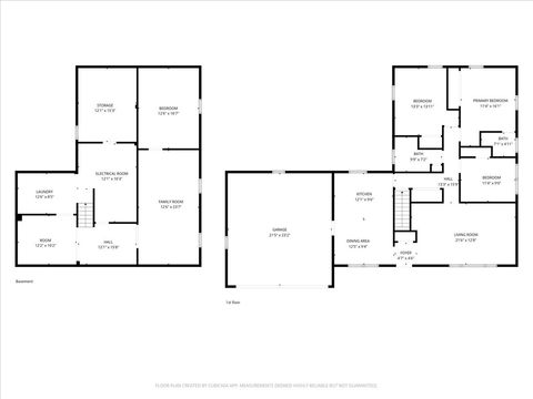
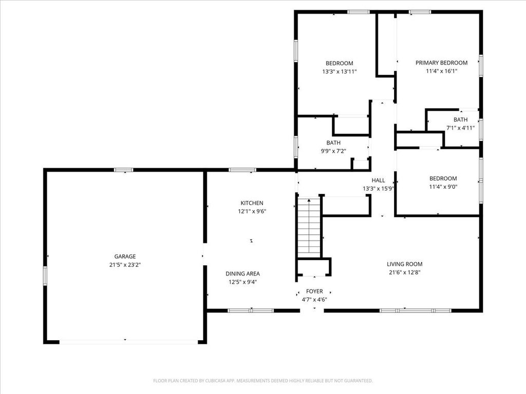
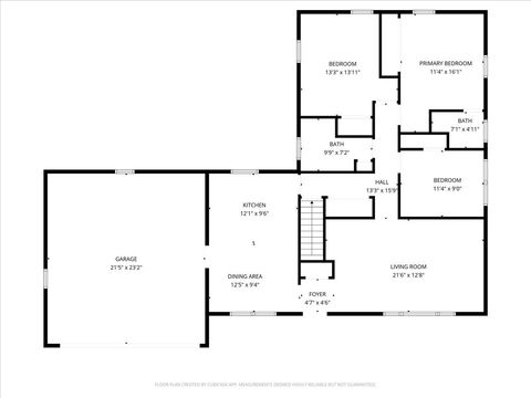
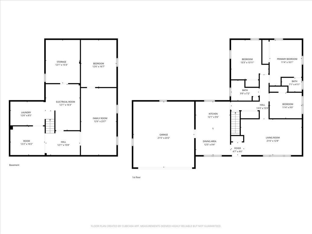
4-bedroom, 2-bath home in Moline offering a functional layout & a convenient location. The main level features a spacious living room, dining area, & a kitchen with stainless steel appliances & ample counter space. The primary bedroom includes its own dedicated full bath, along with 2 additional bedrooms & another full bathroom on the main floor. The finished basement expands the living space with a rec room, a large non-conforming 4th bedroom, an additional flexible room, laundry area, & storage room. The backyard is accessible from the kitchen & includes a level lot with a newer shed & concrete pad. Additional features include a 2-car garage, new sump pump & disposal (2025), & numerous updates over the years (per previous owners): primary bathroom improvements (2023), partial soffit replacement & paint (2023), LVP flooring & trim in one bedroom (2022), backyard electrical & lighting (2021), kitchen backsplash (2021), replacement windows (2019 & 2021), garage door (2020), shed & concrete pad (2020), & furnace, A/C, & humidifier (2018), along with appliances (2017).
| DAYS ON MARKET | 1 | LAST UPDATED | 3/31/2026 |
|---|---|---|---|
| YEAR BUILT | 1972 | COMMUNITY | Moline |
| GARAGE SPACES | 2.0 | COUNTY | Rock Island |
| STATUS | Active | PROPERTY TYPE(S) | Single Family |
| ADDITIONAL DETAILS | |
| AIR | Ceiling Fan(s), Central Air |
|---|---|
| AIR CONDITIONING | Yes |
| APPLIANCES | Dishwasher, Disposal, Dryer, Electric Cooktop, Electric Oven, Microwave, Range, Refrigerator, Washer |
| AREA | Moline |
| BASEMENT | Finished, Full, Sump Pump, Yes |
| CONSTRUCTION | Vinyl Siding |
| GARAGE | Attached Garage, Yes |
| HEAT | Forced Air, Natural Gas |
| LOT | 0.26 acre(s) |
| LOT DESCRIPTION | Cul-de-sac, Level |
| LOT DIMENSIONS | 4x33x42x154x74x136 |
| PARKING | Concrete, Garage Door Opener, Attached, Garage |
| SEWER | Public Sewer |
| STYLE | Ranch |
| TAXES | 4963.96 |
| WATER | Public |
MORTGAGE CALCULATOR
TOTAL MONTHLY PAYMENT
0
P
I
*Estimate only
| SATELLITE VIEW |
| / | |
We respect your online privacy and will never spam you. By submitting this form with your telephone number
you are consenting for Humderto
Garcia to contact you even if your name is on a Federal or State
"Do not call List".
Listed with RE/MAX Concepts Bettendorf
The data relating to real estate for sale on this web site comes in part from the Broker ReciprocitySM Program of MRED. All real estate listings are marked with the Broker ReciprocitySM logo or the MRED Broker ReciprocitySM thumbnail logo (a little black house) and detailed information about them includes the name of the listing brokers.
The broker providing these data believes them to be correct, but advises interested parties to confirm them before relying on them in a purchase decision.
Copyright 2026 MRED. All rights reserved.

The broker providing these data believes them to be correct, but advises interested parties to confirm them before relying on them in a purchase decision.
Copyright 2026 MRED. All rights reserved.
This IDX solution is (c) Diverse Solutions 2026.