|
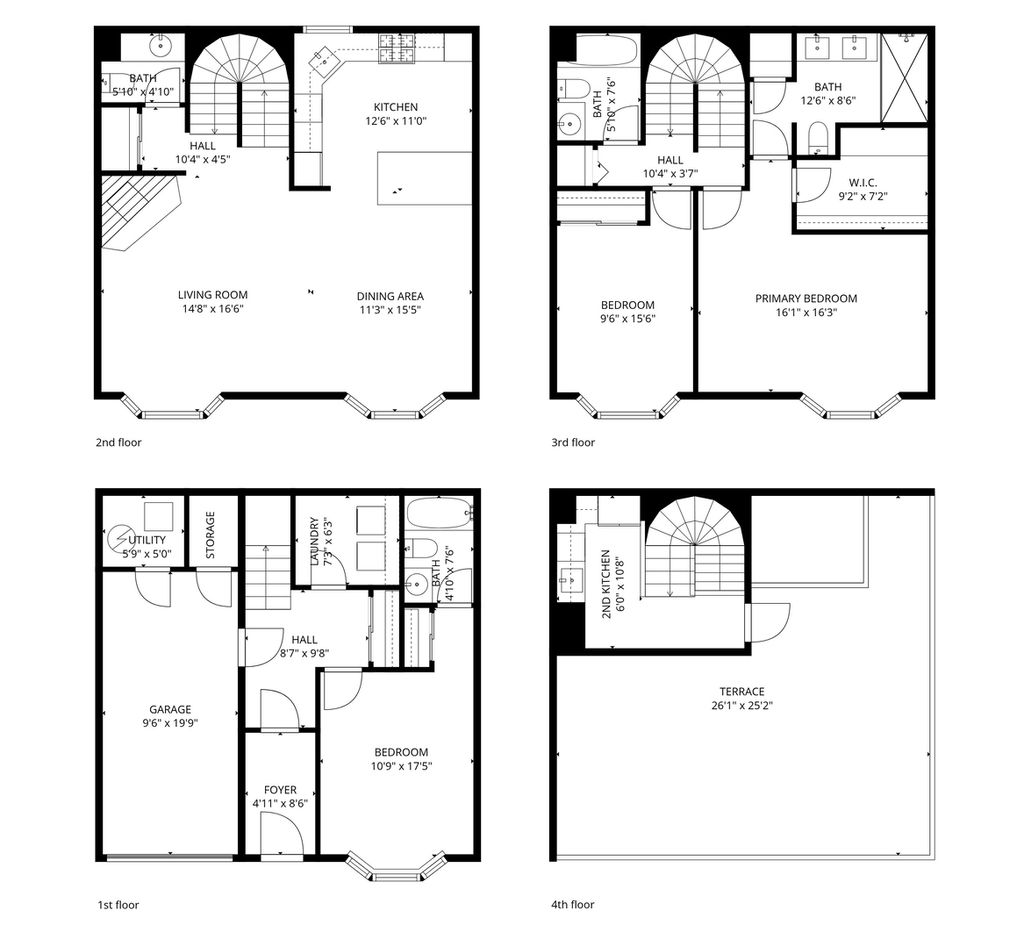
Stunning, sun-drenched townhome in a premier East Lincoln Park / Old Town location, offering an exceptional renovation (see Upgrades & Specifications under additional information for a list of all updates) and a spectacular private roof terrace with skyline views. Thoughtfully redesigned with high-end finishes throughout, this sophisticated home showcases sleek hardwood flooring and a beautifully appointed chef's kitchen featuring a counter-depth Sub-Zero refrigerator, 36" Wolf dual fuel range, professional hood, workstation sink, sleek quartz countertops, marble backsplash, and custom soft-close cabinetry with abundant storage. An expansive peninsula with an integrated microwave drawer provides generous seating and seamless functionality. The top level offers a second kitchen that opens directly to the showstopping roof terrace, complete with synthetic turf, lush seasonal planters, and gas, water, and electric, creating the ultimate indoor-outdoor entertaining experience. The spacious, light-filled primary suite features a south-facing bay window, easily accommodates a king-sized bed with additional seating, and includes a large walk-in closet and a spa-inspired bath with dual vanity, walk-in shower with bench, and excellent storage. A well-proportioned second bedroom also enjoys southern exposure and a custom-outfitted closet. The main level offers a gracious entry, guest bedroom, full bath, and a large laundry room with side-by-side washer/dryer and ample storage, along with direct access to the attached heated garage with a storage closet. Set within an impeccably maintained gated community with a pool and sundeck, and located just steps from Lincoln Park and the lakefront, and directly across from the Lincoln Park Green City Farmers Market, this home is also moments from Old Town's vibrant dining, shopping, and cafe scene. A truly turnkey residence in an unbeatable A+ location. The monthly HOA breakdown - Total - $1,295.67 includes $680.32 for operating assessment, $513.08 for reserve contribution, and $101.87 for TV/internet. Currently $488,066.05 in the reserve account. The HOA maintains aa 30 year reserve study, employs 2 full-time engineers, and there has never been a special assessment in the life of the association.
| DAYS ON MARKET | 0 | LAST UPDATED | 3/27/2026 |
|---|---|---|---|
| YEAR BUILT | 1990 | COMMUNITY | CHI - Lincoln Park |
| GARAGE SPACES | 1.0 | COUNTY | Cook |
| STATUS | Active | PROPERTY TYPE(S) | Condo/Townhouse/Co-Op |
| School District | Lincoln Park High School |
|---|---|
| Elementary School | Lincoln Elementary School |
| Jr. High School | Lincoln Elementary School |
| High School | Lincoln Park High School |
| ADDITIONAL DETAILS | |
| AIR | Central Air |
|---|---|
| AIR CONDITIONING | Yes |
| AMENITIES | Insurance, Internet, Snow Removal, Water |
| APPLIANCES | Dishwasher, Disposal, Dryer, Freezer, Microwave, Range, Range Hood, Refrigerator, Stainless Steel Appliance(s), Washer |
| AREA | CHI - Lincoln Park |
| BASEMENT | None |
| CONSTRUCTION | Brick |
| FIREPLACE | Yes |
| GARAGE | Attached Garage, Yes |
| HEAT | Forced Air, Natural Gas |
| HOA DUES | 1295 |
| INTERIOR | Built-in Features, Entrance Foyer, Storage, Walk-In Closet(s) |
| LOT | 0 |
| LOT DIMENSIONS | COMMON |
| PARKING | Garage Door Opener, Heated Garage, Attached, Garage |
| SEWER | Public Sewer |
| STORIES | 4 |
| TAXES | 14894.46 |
MORTGAGE CALCULATOR
TOTAL MONTHLY PAYMENT
0
P
I
*Estimate only
| SATELLITE VIEW |
| / | |
We respect your online privacy and will never spam you. By submitting this form with your telephone number
you are consenting for Humderto
Garcia to contact you even if your name is on a Federal or State
"Do not call List".
Listed with Compass
The data relating to real estate for sale on this web site comes in part from the Broker ReciprocitySM Program of MRED. All real estate listings are marked with the Broker ReciprocitySM logo or the MRED Broker ReciprocitySM thumbnail logo (a little black house) and detailed information about them includes the name of the listing brokers.
The broker providing these data believes them to be correct, but advises interested parties to confirm them before relying on them in a purchase decision.
Copyright 2026 MRED. All rights reserved.

The broker providing these data believes them to be correct, but advises interested parties to confirm them before relying on them in a purchase decision.
Copyright 2026 MRED. All rights reserved.
This IDX solution is (c) Diverse Solutions 2026.