|
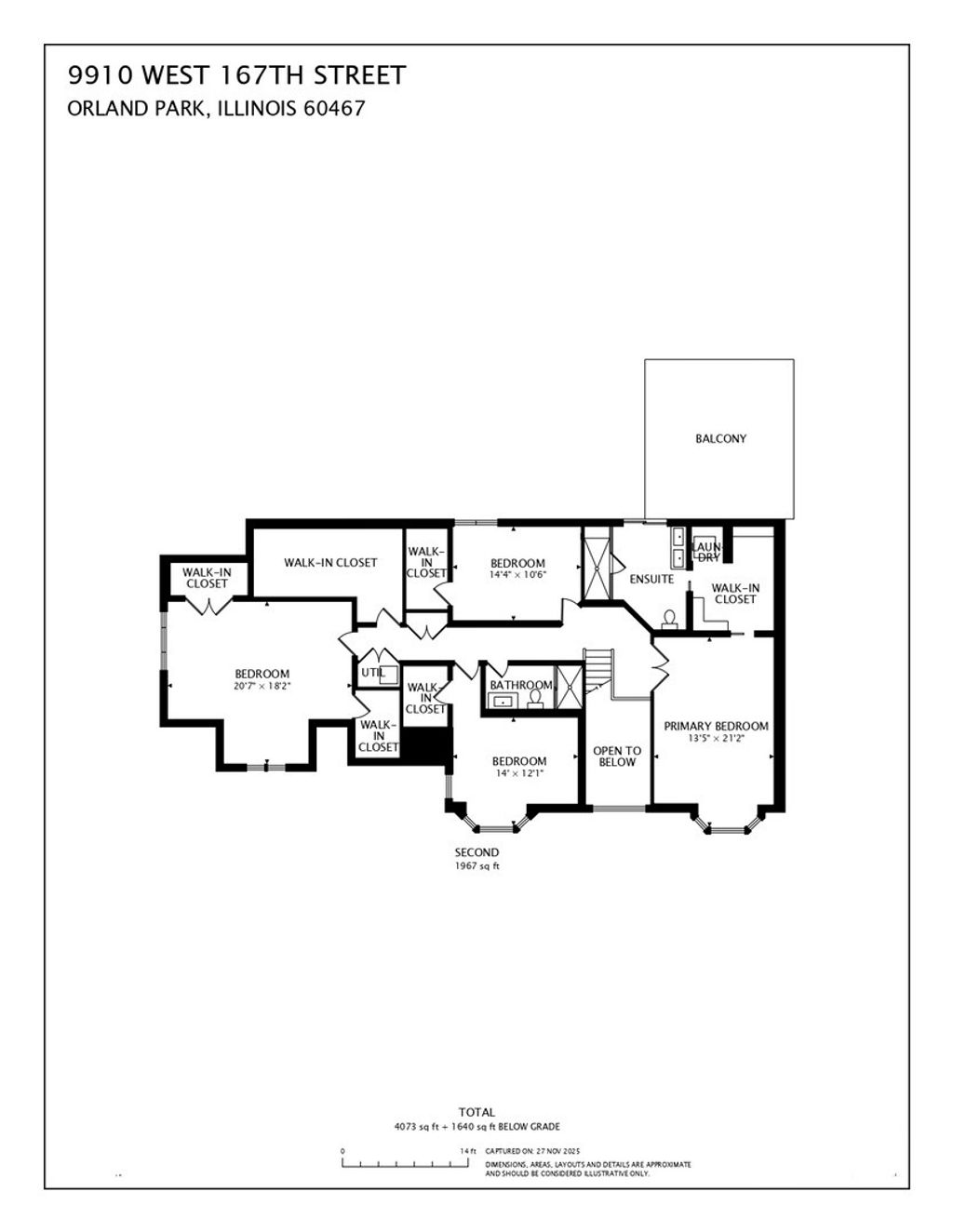
A rare opportunity in South Orland Park-11.2 acres of RT4 zoned land paired with a wellmaintained, oneowner 4bedroom home and multiple highquality outbuildings. The residence offers a traditional, functional layout with formal living and dining rooms, a comfortable family room with fireplace, and a spacious eatin kitchen opening to a deck and gazebo-ideal for everyday living and warmweather entertaining. The upper level includes three generous bedrooms plus a private primary suite, and the full finished basement with concrete safe room adds valuable flexibility. The property includes three substantial auxiliary buildings: * Heated 4080 Morton building with office, bathroom, loft storage, concrete floors with drains, and two 1212 overhead doors * 3149 pole barn with concrete floors and 1212 overhead door * Freestanding office building with heat and electric * Additional steel barn accommodating up to 8 vehicles Located minutes from highway access, west of La Grange Road, and close to Orland Park's shopping, dining, and conveniences. With RT4 zoning, expansive acreage, and strong surrounding demand, this property presents exceptional potential-whether for townhome development, agetargeted or seniorliving concepts, contractor or storageoriented use, or simply enjoying the home as a private retreat while exploring future possibilities. A truly unique offering with outstanding versatility.
| DAYS ON MARKET | 6 | LAST UPDATED | 3/27/2026 |
|---|---|---|---|
| YEAR BUILT | 1996 | COMMUNITY | Orland Park |
| GARAGE SPACES | 2.5 | COUNTY | Cook |
| STATUS | Active | PROPERTY TYPE(S) | Single Family |
| School District | Victor J Andrew High School |
|---|---|
| High School | Victor J Andrew High School |
| ADDITIONAL DETAILS | |
| AIR | Central Air |
|---|---|
| AIR CONDITIONING | Yes |
| APPLIANCES | Dishwasher, Range, Refrigerator |
| AREA | Orland Park |
| BARN/EQUESTRIAN | Yes |
| BASEMENT | Finished, Full, Yes |
| CONSTRUCTION | Brick |
| GARAGE | Attached Garage, Yes |
| HEAT | Electric, Natural Gas |
| INTERIOR | Pantry |
| LOT | 11.2 acre(s) |
| LOT DESCRIPTION | Landscaped |
| LOT DIMENSIONS | 165x986X165X987 |
| PARKING | Asphalt, Garage Door Opener, Garage, Attached |
| SEWER | Septic Tank |
| STYLE | Other |
| TAXES | 25856.32 |
| VIEW | Yes |
| VIEW DESCRIPTION | Water |
| WATER | Well |
| WATERFRONT | Yes |
| WATERFRONT DESCRIPTION | Creek |
MORTGAGE CALCULATOR
TOTAL MONTHLY PAYMENT
0
P
I
*Estimate only
| SATELLITE VIEW |
| / | |
We respect your online privacy and will never spam you. By submitting this form with your telephone number
you are consenting for Humderto
Garcia to contact you even if your name is on a Federal or State
"Do not call List".
Listed with Compass
The data relating to real estate for sale on this web site comes in part from the Broker ReciprocitySM Program of MRED. All real estate listings are marked with the Broker ReciprocitySM logo or the MRED Broker ReciprocitySM thumbnail logo (a little black house) and detailed information about them includes the name of the listing brokers.
The broker providing these data believes them to be correct, but advises interested parties to confirm them before relying on them in a purchase decision.
Copyright 2026 MRED. All rights reserved.

The broker providing these data believes them to be correct, but advises interested parties to confirm them before relying on them in a purchase decision.
Copyright 2026 MRED. All rights reserved.
This IDX solution is (c) Diverse Solutions 2026.