|
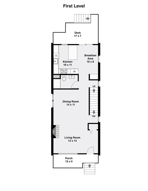
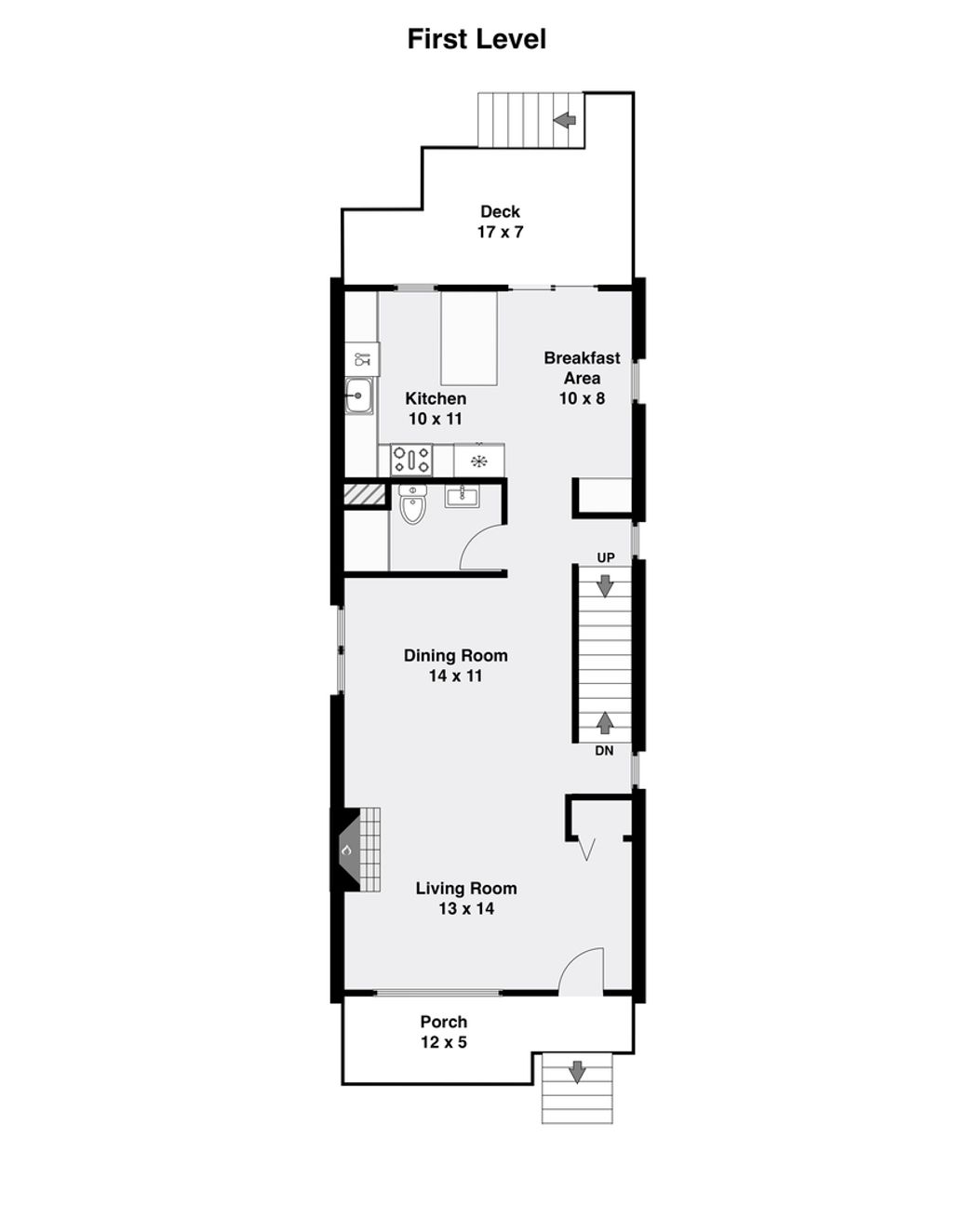
Beautifully updated 3 bed, 3.1 bath single-family home on charming, tree-lined Wilmot Street in the heart of Bucktown. Bright and spacious floor plan with modern updates, all just steps from top restaurants, shopping, nightlife, and the 606 Trail! A fenced yard and welcoming front porch extend the living space outdoors. Inside, the sun-filled living and dining area features a wood-burning fireplace, custom built-ins, and great natural light. The eat-in kitchen is thoughtfully designed with classic white shaker cabinetry, under-cabinet lighting, quartz countertops, a hexagon tile backsplash, farmhouse sink, stainless steel appliances including new fridge, peninsula with bar seating, and a greenhouse window. The adjacent breakfast nook adds personality with statement wallpaper and opens to the rear deck. The powder room is nicely updated with good storage. Upstairs, you'll find three bedrooms, including a spacious primary suite with all new bath, along with a Jack-and-Jill bath for the second and third bedrooms. The finished lower level offers a generous family room, full bath, laundry area with new washer/dryer, sink, storage, and access to the backyard. Enjoy outdoor living with a rear deck, turfed yard, and a detached two-car garage equipped with upgraded electric for EV charging. Turn-key home with numerous recent updates and thoughtful design touches throughout.
| DAYS ON MARKET | 32 | LAST UPDATED | 4/20/2026 |
|---|---|---|---|
| YEAR BUILT | 1995 | COMMUNITY | CHI - Logan Square |
| GARAGE SPACES | 2.0 | COUNTY | Cook |
| STATUS | Conditional | PROPERTY TYPE(S) | Single Family |
| Elementary School | Pulaski International |
|---|---|
| Jr. High School | Pulaski International |
| ADDITIONAL DETAILS | |
| AIR | Central Air |
|---|---|
| AIR CONDITIONING | Yes |
| APPLIANCES | Dishwasher, Disposal, Dryer, Microwave, Range, Refrigerator, Washer |
| AREA | CHI - Logan Square |
| BASEMENT | Daylight, Finished, Full, Yes |
| CONSTRUCTION | Brick, Vinyl Siding |
| FIREPLACE | Yes |
| GARAGE | Yes |
| HEAT | Forced Air, Natural Gas |
| INTERIOR | Built-in Features |
| LOT | 0 |
| LOT DIMENSIONS | 24 x 100 |
| PARKING | Garage Door Opener, Detached, Garage |
| SEWER | Public Sewer |
| TAXES | 17075.34 |
| WATER | Public |
MORTGAGE CALCULATOR
TOTAL MONTHLY PAYMENT
0
P
I
*Estimate only
| SATELLITE VIEW |
| / | |
We respect your online privacy and will never spam you. By submitting this form with your telephone number
you are consenting for Humderto
Garcia to contact you even if your name is on a Federal or State
"Do not call List".
Listed with Jameson Sotheby's Intl Realty
The data relating to real estate for sale on this web site comes in part from the Broker ReciprocitySM Program of MRED. All real estate listings are marked with the Broker ReciprocitySM logo or the MRED Broker ReciprocitySM thumbnail logo (a little black house) and detailed information about them includes the name of the listing brokers.
The broker providing these data believes them to be correct, but advises interested parties to confirm them before relying on them in a purchase decision.
Copyright 2026 MRED. All rights reserved.

The broker providing these data believes them to be correct, but advises interested parties to confirm them before relying on them in a purchase decision.
Copyright 2026 MRED. All rights reserved.
This IDX solution is (c) Diverse Solutions 2026.