|
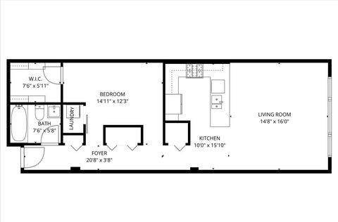
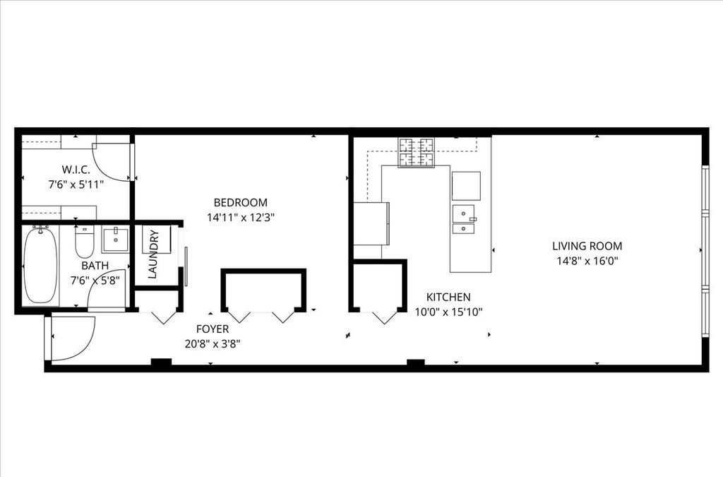
Live in the heart of Fulton Market in this sun-filled, south-facing loft featuring exposed brick and an open-concept layout. Hardwood floors run throughout, complemented by a cozy gas fireplace and a spacious kitchen with granite countertops, an oversized breakfast bar, and brand-new appliances (2025)-perfect for entertaining. The recently renovated bathroom showcases a new tub, shower, tile, vanity with quartz countertop, and updated lighting and fixtures. The bedroom offers a large walk-in closet, plus a massive floor-to-ceiling storage cage for added convenience. In-unit washer/dryer. Enjoy the charm of an intimate, well-maintained building with a fabulous shared roof deck featuring grills, tables, and seating-ideal for relaxing or hosting guests. Unbeatable location just steps from Fulton Market's top dining and nightlife, including Gibsons Tavern ( coming soon) and newly opened Equinox fitness club . Garage parking available.
| DAYS ON MARKET | 1 | LAST UPDATED | 4/1/2026 |
|---|---|---|---|
| YEAR BUILT | 1925 | COMMUNITY | CHI - Near West Side |
| GARAGE SPACES | 1.0 | COUNTY | Cook |
| STATUS | Active | PROPERTY TYPE(S) | Condo/Townhouse/Co-Op |
| School District | Wells Community Academy Senior H |
|---|---|
| Elementary School | Skinner Elementary School |
| High School | Wells Community Academy Senior H |
| ADDITIONAL DETAILS | |
| AIR | Central Air |
|---|---|
| AIR CONDITIONING | Yes |
| AMENITIES | Insurance, Internet, Water |
| APPLIANCES | Dishwasher, Disposal, Dryer, Humidifier, Microwave, Range, Refrigerator, Washer |
| AREA | CHI - Near West Side |
| BASEMENT | None |
| CONSTRUCTION | Brick |
| FIREPLACE | Yes |
| GARAGE | Attached Garage, Yes |
| HEAT | Forced Air, Natural Gas |
| HOA DUES | 305 |
| INTERIOR | Elevator |
| LOT | 0 |
| LOT DESCRIPTION | Corner Lot |
| LOT DIMENSIONS | COMMON |
| PARKING | Garage Door Opener, Deeded, Attached, Garage |
| SEWER | Public Sewer |
| STORIES | 5 |
| TAXES | 5895.97 |
| UTILITIES | Cable Available |
MORTGAGE CALCULATOR
TOTAL MONTHLY PAYMENT
0
P
I
*Estimate only
| SATELLITE VIEW |
| / | |
We respect your online privacy and will never spam you. By submitting this form with your telephone number
you are consenting for Humderto
Garcia to contact you even if your name is on a Federal or State
"Do not call List".
Listed with Fulton Grace Realty
The data relating to real estate for sale on this web site comes in part from the Broker ReciprocitySM Program of MRED. All real estate listings are marked with the Broker ReciprocitySM logo or the MRED Broker ReciprocitySM thumbnail logo (a little black house) and detailed information about them includes the name of the listing brokers.
The broker providing these data believes them to be correct, but advises interested parties to confirm them before relying on them in a purchase decision.
Copyright 2026 MRED. All rights reserved.

The broker providing these data believes them to be correct, but advises interested parties to confirm them before relying on them in a purchase decision.
Copyright 2026 MRED. All rights reserved.
This IDX solution is (c) Diverse Solutions 2026.