|
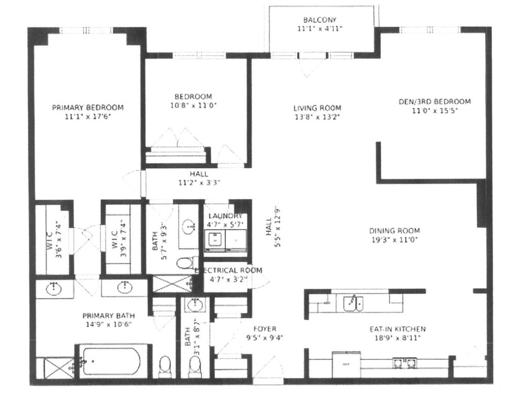
Just what you ordered: Easy luxury living at 2000 Green Bay Road Condominiums in the heart of Highland Park. Unit 405 is a dramatic top-floor residence with a soaring cathedral ceiling and wall of windows facing south. It is a spacious unit, over 2000 square feet, consisting of two bedrooms plus a den, 2.1 baths, eat-in kitchen, gallery foyer and laundry room. The gallery foyer, with two coat closets and a powder room, leads to the living room with its cathedral ceiling, wall of windows and French door to a stone balcony. The living room is adjacent to a large, sunny den. The dining room is very spacious and in an L-shaped configuration to the living room. The eat-in kitchen has table space, granite counters, wood cabinetry, stainless steel appliances and a pantry closet. All these rooms have oak floors, as does the hallway to the bedrooms, baths and laundry room. And, other than the cathedral ceiling of the living room, all rooms have 9 foot ceilings. The primary bedroom is carpeted, has two organized walk-in closets and a fully equipped primary bath with twin vanities, deep soaking tub, separate shower with a seat and a linen closet. The second bedroom also is carpeted and has an organized closet. The second full bath is across the hall and has a walk-in shower. The laundry room has a full-size washer and dryer and storage shelving. The garage space (#68) and storage locker (#14) are located in the heated garage. Enjoy maintenance-free luxury living with a cost-efficient monthly assessment which includes heat, water, gas, common area insurance and maintenance, exterior maintenance, landscaping, snow and trash removal and window repair! There are two exercise rooms, a furnished party room with a full kitchen and half bath and an on-site superintendent, Monday through Saturday. 2000 Green Bay Road Condominiums is pet-friendly and offers fully handicap-accessible residences. The architect, James March Goldberg, designed twin buildings of jumbo brick and lime stone on a 2 acre lushly landscaped campus. There are approximately two dozen distinct floor plans for the 60 units of the twin buildings.
| DAYS ON MARKET | 8 | LAST UPDATED | 3/30/2026 |
|---|---|---|---|
| YEAR BUILT | 2001 | COMMUNITY | Highland Park |
| GARAGE SPACES | 1.0 | COUNTY | Lake |
| STATUS | Active | PROPERTY TYPE(S) | Condo/Townhouse/Co-Op |
| School District | Highland Park High School |
|---|---|
| Elementary School | Indian Trail Elementary School |
| Jr. High School | Edgewood Middle School |
| High School | Highland Park High School |
| ADDITIONAL DETAILS | |
| AIR | Central Air |
|---|---|
| AIR CONDITIONING | Yes |
| AMENITIES | Gas, Insurance, Internet, Security, Snow Removal, Water |
| APPLIANCES | Cooktop, Dishwasher, Disposal, Double Oven, Dryer, Gas Cooktop, Microwave, Oven, Range Hood, Refrigerator, Washer |
| AREA | Highland Park |
| BASEMENT | None |
| CONSTRUCTION | Brick, Stone |
| EXTERIOR | Balcony, Lighting |
| GARAGE | Attached Garage, Yes |
| HEAT | Natural Gas, Radiant |
| HOA DUES | 922 |
| INTERIOR | Elevator, Entrance Foyer |
| LOT | 0 |
| LOT DESCRIPTION | Corner Lot, Landscaped, Level |
| LOT DIMENSIONS | Common |
| PARKING | Asphalt, Circular Driveway, Garage Door Opener, Heated Garage, Garage, Attached |
| SEWER | Public Sewer |
| STORIES | 4 |
| TAXES | 12017.38 |
| UTILITIES | Cable Available |
MORTGAGE CALCULATOR
TOTAL MONTHLY PAYMENT
0
P
I
*Estimate only
| SATELLITE VIEW |
| / | |
We respect your online privacy and will never spam you. By submitting this form with your telephone number
you are consenting for Humderto
Garcia to contact you even if your name is on a Federal or State
"Do not call List".
Listed with Coldwell Banker Realty
The data relating to real estate for sale on this web site comes in part from the Broker ReciprocitySM Program of MRED. All real estate listings are marked with the Broker ReciprocitySM logo or the MRED Broker ReciprocitySM thumbnail logo (a little black house) and detailed information about them includes the name of the listing brokers.
The broker providing these data believes them to be correct, but advises interested parties to confirm them before relying on them in a purchase decision.
Copyright 2026 MRED. All rights reserved.

The broker providing these data believes them to be correct, but advises interested parties to confirm them before relying on them in a purchase decision.
Copyright 2026 MRED. All rights reserved.
This IDX solution is (c) Diverse Solutions 2026.