|
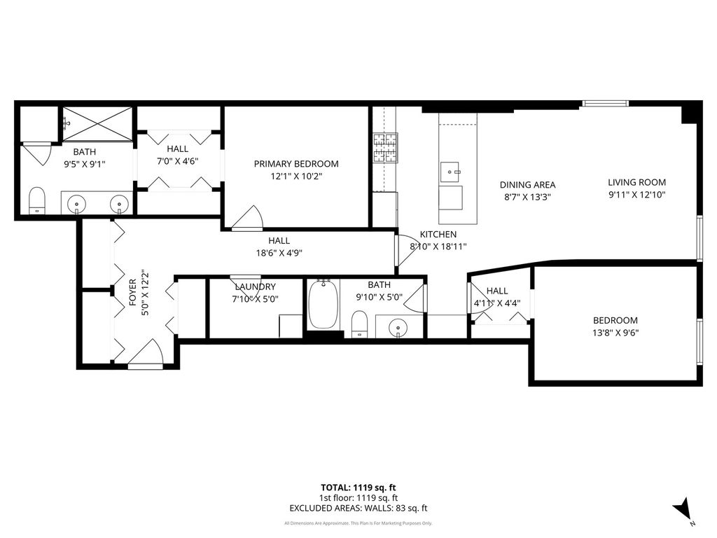
Welcome to this bright and spacious 2 bedroom, 2 bathroom corner unit in the iconic Metropolitan Tower - a historic 1924 landmark address on one of Chicago's most celebrated boulevards. Thoughtfully laid out, this unit welcomes you through a generous foyer that opens into a flowing floor plan. The heart of the home is an impressively long galley kitchen offering abundant cabinetry and counter space, which connects to a dining area and living room ideal for both relaxing and entertaining. The well-equipped kitchen features stainless steel appliances including a range, microwave, dishwasher, refrigerator, wine fridge, & disposal. The primary suite is privately situated and complemented by a full ensuite bath. The second bedroom is generously sized and conveniently located near the second full bathroom. A dedicated in-unit laundry room adds everyday convenience you'll truly appreciate. With a full-time doorman, fitness room, and lobby, plus steps-away access to Grant Park, Millennium Park, the Art Institute, and world-class dining, this is a rare opportunity to own a piece of Chicago history with all the comforts of modern living. 1 transferable parking space lease available, attached and heated garage.
| DAYS ON MARKET | 1 | LAST UPDATED | 4/1/2026 |
|---|---|---|---|
| YEAR BUILT | 1924 | COMMUNITY | CHI - Loop |
| GARAGE SPACES | 1.0 | COUNTY | Cook |
| STATUS | Active | PROPERTY TYPE(S) | Condo/Townhouse/Co-Op |
| ADDITIONAL DETAILS | |
| AIR | Central Air |
|---|---|
| AIR CONDITIONING | Yes |
| AMENITIES | Gas, Insurance, Internet, Snow Removal, Water |
| APPLIANCES | Dishwasher, Disposal, Dryer, Freezer, Microwave, Range, Refrigerator, Stainless Steel Appliance(s), Washer |
| AREA | CHI - Loop |
| BASEMENT | None |
| GARAGE | Attached Garage, Yes |
| HEAT | Natural Gas |
| HOA DUES | 756 |
| INTERIOR | Elevator, Entrance Foyer, Storage |
| LOT | 0 |
| LOT DIMENSIONS | COMMON |
| PARKING | Garage Door Opener, Heated Garage, Leased, Attached, Garage |
| SEWER | Public Sewer |
| STORIES | 27 |
| TAXES | 4872.78 |
| VIEW | Yes |
| VIEW DESCRIPTION | Water |
MORTGAGE CALCULATOR
TOTAL MONTHLY PAYMENT
0
P
I
*Estimate only
| SATELLITE VIEW |
| / | |
We respect your online privacy and will never spam you. By submitting this form with your telephone number
you are consenting for Humderto
Garcia to contact you even if your name is on a Federal or State
"Do not call List".
Listed with Baird & Warner
The data relating to real estate for sale on this web site comes in part from the Broker ReciprocitySM Program of MRED. All real estate listings are marked with the Broker ReciprocitySM logo or the MRED Broker ReciprocitySM thumbnail logo (a little black house) and detailed information about them includes the name of the listing brokers.
The broker providing these data believes them to be correct, but advises interested parties to confirm them before relying on them in a purchase decision.
Copyright 2026 MRED. All rights reserved.

The broker providing these data believes them to be correct, but advises interested parties to confirm them before relying on them in a purchase decision.
Copyright 2026 MRED. All rights reserved.
This IDX solution is (c) Diverse Solutions 2026.