|
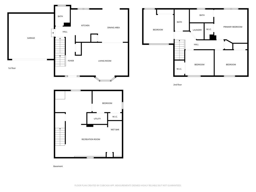
Welcome to sought-after Fox Hill Subdivision in Yorkville, IL! This spacious 5-bedroom, 2.5-bath home offers the perfect blend of comfort, functionality, and value with no HOA FEES. Featuring a finished basement with a large family room, wet bar, refrigerator, and a versatile 5th bedroom or home office with egress window ideal for today's flexible living needs. The main level boasts hardwood flooring and a bright, open kitchen with eat-at counter, stainless steel appliances, and plenty of space for gathering. Upstairs you'll find a convenient second-floor laundry room, a generous primary suite with private bath, and brand-new carpeting throughout. Step outside to enjoy a concrete patio with natural gas line perfect for grilling overlooking a spacious backyard with 10x12 storage shed. Concrete side apron provides extra parking for boats, trailers, or recreational vehicles. Heated garage Located in a quiet neighborhood with low turnover, this home is just 1-2 miles from shopping, dining, and everyday conveniences, plus walking distance to local parks and bike paths! Solid bones, smart layout, and unbeatable location, this Yorkville home checks all the boxes!
| DAYS ON MARKET | 28 | LAST UPDATED | 4/13/2026 |
|---|---|---|---|
| TRACT | Fox Hill | YEAR BUILT | 2003 |
| COMMUNITY | Yorkville / Bristol | GARAGE SPACES | 2.0 |
| COUNTY | Kendall | STATUS | Conditional |
| PROPERTY TYPE(S) | Single Family |
| ADDITIONAL DETAILS | |
| AIR | Ceiling Fan(s), Central Air, Whole House Fan |
|---|---|
| AIR CONDITIONING | Yes |
| APPLIANCES | Bar Fridge, Dishwasher, Disposal, Dryer, Microwave, Range, Refrigerator, Stainless Steel Appliance(s), Washer |
| AREA | Yorkville / Bristol |
| BASEMENT | Finished, Full, Sump Pump, Yes |
| CONSTRUCTION | Vinyl Siding |
| GARAGE | Attached Garage, Yes |
| HEAT | Forced Air, Natural Gas |
| INTERIOR | Entrance Foyer, Walk-In Closet(s), Wet Bar |
| LOT | 0.26 acre(s) |
| LOT DIMENSIONS | 80x138x82x145 |
| PARKING | Concrete, Garage Door Opener, Heated Garage, Attached, Off Street, Driveway, Garage |
| SEWER | Public Sewer |
| STYLE | Traditional |
| SUBDIVISION | Fox Hill |
| TAXES | 7704 |
| WATER | Public |
MORTGAGE CALCULATOR
TOTAL MONTHLY PAYMENT
0
P
I
*Estimate only
| SATELLITE VIEW |
| / | |
We respect your online privacy and will never spam you. By submitting this form with your telephone number
you are consenting for Humderto
Garcia to contact you even if your name is on a Federal or State
"Do not call List".
Listed with Swanson Real Estate
The data relating to real estate for sale on this web site comes in part from the Broker ReciprocitySM Program of MRED. All real estate listings are marked with the Broker ReciprocitySM logo or the MRED Broker ReciprocitySM thumbnail logo (a little black house) and detailed information about them includes the name of the listing brokers.
The broker providing these data believes them to be correct, but advises interested parties to confirm them before relying on them in a purchase decision.
Copyright 2026 MRED. All rights reserved.

The broker providing these data believes them to be correct, but advises interested parties to confirm them before relying on them in a purchase decision.
Copyright 2026 MRED. All rights reserved.
This IDX solution is (c) Diverse Solutions 2026.