|
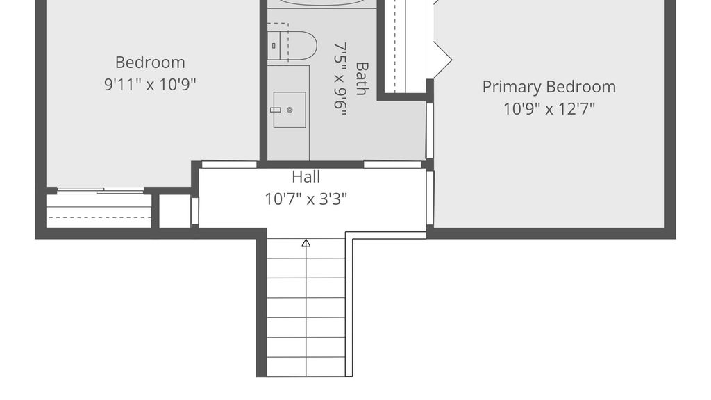
Welcome home to this beautifully maintained and recently renovated 3-bedroom, 2-bathroom residence, perfectly situated on a desirable corner lot. From the moment you arrive, you'll notice the pride of ownership and thoughtful updates throughout the house including an updated kitchen and bathrooms that make this home truly move-in ready. Step inside to find a bright and inviting interior with modern updates throughout, offering both comfort and functionality. The spacious layout provides the perfect balance of everyday living and entertainment. Enjoy peace of mind with major improvements already taken care of, including a new washer and water heater, along with a well-maintained HVAC system that has received regular service. Outside, the home truly shines. The maturely landscaped yard offers a private, serene setting, complete with a charming gazebo-perfect for relaxing evenings, morning coffee, or hosting guests. The extra-wide driveway provides ample parking and added convenience. Located on a corner lot, this property offers additional space, curb appeal, and a sense of openness that's hard to find. Highlights include: * 3 Bedrooms, 2 full Bathrooms * Recently renovated interior-kitchen and bathrooms * New washer (Insignia) and water heater (Rheem) * Custom Hunter Douglas blinds throughout the house (Remote controlled in family room) * Regularly maintained HVAC system * Mature landscaping including a11X11 Gazebo from the Great Escape * Corner lot with added space and well-developed trees for extra privacy * Extra-wide driveway for ample parking * Full cement crawlspace provides a lot of extra storage This home checks all the boxes-style, comfort, and convenience. Don't miss your opportunity to make it yours!
| DAYS ON MARKET | 1 | LAST UPDATED | 4/6/2026 |
|---|---|---|---|
| YEAR BUILT | 1986 | COMMUNITY | Crystal Lake / Lakewood / Prairie Grove |
| GARAGE SPACES | 2.0 | COUNTY | McHenry |
| STATUS | Active | PROPERTY TYPE(S) | Single Family |
| School District | Crystal Lake South High School |
|---|---|
| Elementary School | Woods Creek Elementary School |
| Jr. High School | Lundahl Middle School |
| High School | Crystal Lake South High School |
| ADDITIONAL DETAILS | |
| AIR | Ceiling Fan(s), Central Air, Whole House Fan |
|---|---|
| AIR CONDITIONING | Yes |
| APPLIANCES | Dishwasher, Disposal, Humidifier, Microwave, Range, Refrigerator, Stainless Steel Appliance(s), Trash Compactor |
| AREA | Crystal Lake / Lakewood / Prairie Grove |
| BASEMENT | None |
| CONSTRUCTION | Vinyl Siding |
| EXTERIOR | Barbecue, Outdoor Grill |
| FIREPLACE | Yes |
| GARAGE | Attached Garage, Yes |
| HEAT | Natural Gas |
| INTERIOR | Vaulted Ceiling(s) |
| LOT | 0.33 acre(s) |
| LOT DESCRIPTION | Corner Lot, Landscaped |
| LOT DIMENSIONS | 5044 |
| PARKING | Concrete, Garage Door Opener, Garage, Attached |
| SEWER | Public Sewer |
| TAXES | 7361 |
| UTILITIES | Cable Available |
| WATER | Public |
MORTGAGE CALCULATOR
TOTAL MONTHLY PAYMENT
0
P
I
*Estimate only
| SATELLITE VIEW |
| / | |
We respect your online privacy and will never spam you. By submitting this form with your telephone number
you are consenting for Humderto
Garcia to contact you even if your name is on a Federal or State
"Do not call List".
Listed with Berg Properties
The data relating to real estate for sale on this web site comes in part from the Broker ReciprocitySM Program of MRED. All real estate listings are marked with the Broker ReciprocitySM logo or the MRED Broker ReciprocitySM thumbnail logo (a little black house) and detailed information about them includes the name of the listing brokers.
The broker providing these data believes them to be correct, but advises interested parties to confirm them before relying on them in a purchase decision.
Copyright 2026 MRED. All rights reserved.

The broker providing these data believes them to be correct, but advises interested parties to confirm them before relying on them in a purchase decision.
Copyright 2026 MRED. All rights reserved.
This IDX solution is (c) Diverse Solutions 2026.