|
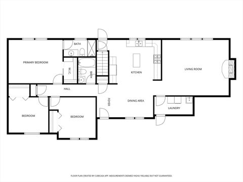
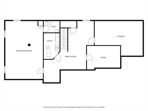
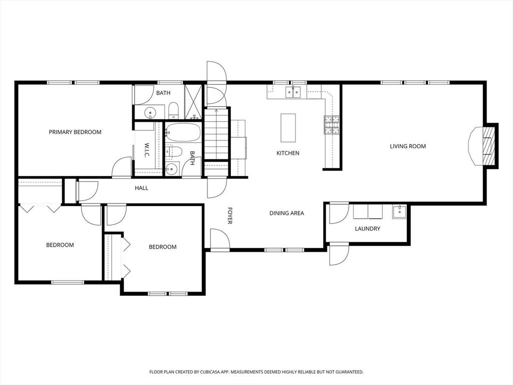
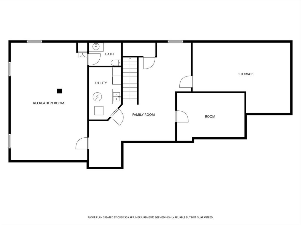
What a wonderful way to welcome spring! This inviting 3 bedroom, 2.5 bath ranch home in the desirable Thomas subdivision offers comfort, convenience, and timeless appeal. Ideally located just a few blocks from schools, shopping, medical facilities, the library, and more, the location truly can't be beat. Proudly offered by its original owner, this well-maintained home features a practical and functional floor plan with generously sized rooms and abundant storage throughout. The warm and inviting living room is highlighted by a classic brick fireplace, perfect for relaxing evenings while the spacious kitchen and adjoining breakfast area provide plenty of room for everyday living and entertaining. The bedrooms are comfortably sized, ideal for a home of this style, and the convenient mudroom/laundry area just off the attached 2 car garage adds everyday practicality. Downstairs, the partially finished basement offers incredible flexibility with space for a family room, recreation area, and even a separate finished room that could serve as a home office, hobby space, or workout room. A half bath and additional storage complete the lower level. Step outside to enjoy the backyard from the deck, with a partially fenced yard offering both privacy and potential. This solid, well-built home in a fantastic neighborhood is ready for its next chapter-just waiting for new owners to bring their personal touch and make it their own. Also included a backup generator system.
| DAYS ON MARKET | 9 | LAST UPDATED | 4/6/2026 |
|---|---|---|---|
| YEAR BUILT | 1997 | COMMUNITY | Sandwich |
| GARAGE SPACES | 2.0 | COUNTY | DeKalb |
| STATUS | Conditional | PROPERTY TYPE(S) | Single Family |
| School District | Sandwich Community High School |
|---|---|
| Elementary School | Lynn G Haskin Elementary School |
| Jr. High School | Sandwich Middle School |
| High School | Sandwich Community High School |
| ADDITIONAL DETAILS | |
| AIR | Central Air |
|---|---|
| AIR CONDITIONING | Yes |
| AREA | Sandwich |
| BASEMENT | Full, Partially Finished, Yes |
| CONSTRUCTION | Brick, Vinyl Siding |
| FIREPLACE | Yes |
| GARAGE | Attached Garage, Yes |
| HEAT | Forced Air, Natural Gas |
| INTERIOR | Vaulted Ceiling(s) |
| LOT | 0.32 acre(s) |
| LOT DIMENSIONS | 90x152.5 |
| PARKING | Concrete, Garage Door Opener, Attached, Garage |
| SEWER | Public Sewer |
| STYLE | Ranch |
| TAXES | 4061.3 |
| WATER | Public |
MORTGAGE CALCULATOR
TOTAL MONTHLY PAYMENT
0
P
I
*Estimate only
| SATELLITE VIEW |
| / | |
We respect your online privacy and will never spam you. By submitting this form with your telephone number
you are consenting for Humderto
Garcia to contact you even if your name is on a Federal or State
"Do not call List".
Listed with Swanson Real Estate
The data relating to real estate for sale on this web site comes in part from the Broker ReciprocitySM Program of MRED. All real estate listings are marked with the Broker ReciprocitySM logo or the MRED Broker ReciprocitySM thumbnail logo (a little black house) and detailed information about them includes the name of the listing brokers.
The broker providing these data believes them to be correct, but advises interested parties to confirm them before relying on them in a purchase decision.
Copyright 2026 MRED. All rights reserved.

The broker providing these data believes them to be correct, but advises interested parties to confirm them before relying on them in a purchase decision.
Copyright 2026 MRED. All rights reserved.
This IDX solution is (c) Diverse Solutions 2026.