|
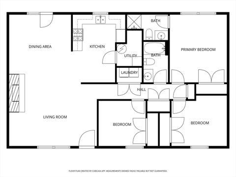
Spring is here, don't miss your chance to own this one owner, 3 bedroom, 2 bath all brick ranch in Lake Holiday. Designed with a practical, no nonsense floor plan, this home offers comfortable living with a spacious living room featuring a cozy brick fireplace that flows seamlessly into the well-planned kitchen and large breakfast area. All three bedrooms offer generous closet space, and the convenient laundry area adds ease to everyday living. With its neutral decor, this solidly built home provides the perfect canvas for the next owner to make it their own .Outside, a large concrete driveway leads to an oversized two plus car garage, offering plenty of space for vehicles and storage. Enjoy everything Lake Holiday has to offer just in time for summer, fishing, boating, swimming, clubs, and more. Well cared for, ideally located, and affordably priced, this is one you'll want to see right away.
| DAYS ON MARKET | 23 | LAST UPDATED | 4/23/2026 |
|---|---|---|---|
| YEAR BUILT | 1991 | COMMUNITY | Lake Holiday |
| GARAGE SPACES | 2.0 | COUNTY | LaSalle |
| STATUS | Conditional | PROPERTY TYPE(S) | Single Family |
| School District | Sandwich Community High School |
|---|---|
| Elementary School | Lynn G Haskin Elementary School |
| Jr. High School | Sandwich Middle School |
| High School | Sandwich Community High School |
| PRICE HISTORY | |
| Prior to Apr 13, '26 | $309,900 |
|---|---|
| Apr 13, '26 - Today | $299,900 |
| ADDITIONAL DETAILS | |
| AIR | None |
|---|---|
| APPLIANCES | Dishwasher, Dryer, Range, Refrigerator, Washer |
| AREA | Lake Holiday |
| BASEMENT | Crawl Space |
| CONSTRUCTION | Brick, Vinyl Siding |
| GARAGE | Yes |
| HEAT | Forced Air, Natural Gas |
| HOA DUES | 1029 |
| LOT | 0.34 acre(s) |
| LOT DIMENSIONS | 75x200 |
| PARKING | Concrete, Garage Door Opener, Garage, Detached |
| SEWER | Septic Tank |
| STYLE | Ranch |
| TAXES | 4272.64 |
| WATER | Private |
MORTGAGE CALCULATOR
TOTAL MONTHLY PAYMENT
0
P
I
*Estimate only
| SATELLITE VIEW |
| / | |
We respect your online privacy and will never spam you. By submitting this form with your telephone number
you are consenting for Humderto
Garcia to contact you even if your name is on a Federal or State
"Do not call List".
Listed with Swanson Real Estate
The data relating to real estate for sale on this web site comes in part from the Broker ReciprocitySM Program of MRED. All real estate listings are marked with the Broker ReciprocitySM logo or the MRED Broker ReciprocitySM thumbnail logo (a little black house) and detailed information about them includes the name of the listing brokers.
The broker providing these data believes them to be correct, but advises interested parties to confirm them before relying on them in a purchase decision.
Copyright 2026 MRED. All rights reserved.

The broker providing these data believes them to be correct, but advises interested parties to confirm them before relying on them in a purchase decision.
Copyright 2026 MRED. All rights reserved.
This IDX solution is (c) Diverse Solutions 2026.