|
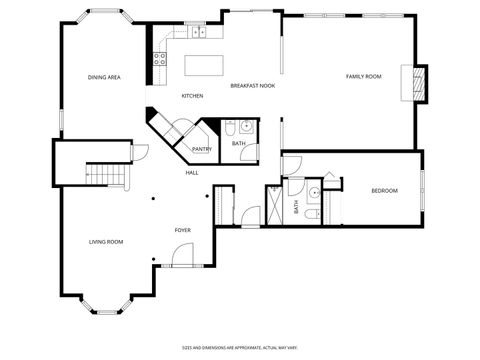
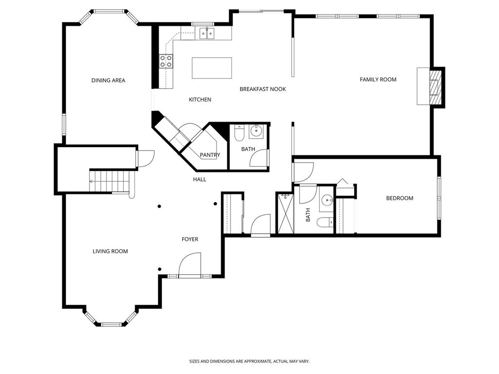
Welcome to this spacious Georgian Place "Alleghany" model, ideally situated on a premium corner lot with peaceful nature views and beautiful sunset exposure. This 5-bedroom, 3.1-bath home offers a functional open-concept layout perfect for everyday living and entertaining. Step into the impressive 2-story foyer and enjoy the bright and airy 2-story great room with fireplace and abundant natural light. The large kitchen features 42" cabinetry, Corian countertops, stainless steel appliances, and a generous breakfast area. The main level also includes vinyl flooring, transom windows, a formal dining room, and a convenient first-floor bedroom with a full bath - ideal for guests or multi-generational living. Upstairs, the expansive primary suite offers a private bath and a spacious walk-in closet. Three additional bedrooms and a second-floor laundry room complete the upper level. The full basement provides approximately 1,776 sq ft with rough-in plumbing, offering endless potential for future living space such as a recreation room, home gym, or media area. Major updates include, newer furnace, AC, and water heater (2022), and a brand new sump pump installed in March 2026 - providing peace of mind with key mechanical systems already addressed. Additional highlights include a 3-car garage and a prime location just steps from walking paths, parks, and the library. Offered AS-IS and priced to sell - a great opportunity in a desirable neighborhood with strong value compared to updated homes nearby.
| DAYS ON MARKET | 0 | LAST UPDATED | 4/2/2026 |
|---|---|---|---|
| TRACT | Georgian Place | YEAR BUILT | 2003 |
| COMMUNITY | Huntley | GARAGE SPACES | 3.0 |
| COUNTY | McHenry | STATUS | Active |
| PROPERTY TYPE(S) | Single Family |
| School District | Huntley High School |
|---|---|
| High School | Huntley High School |
| ADDITIONAL DETAILS | |
| AIR | Ceiling Fan(s), Central Air |
|---|---|
| AIR CONDITIONING | Yes |
| APPLIANCES | Dishwasher, Disposal, Dryer, Humidifier, Microwave, Range, Refrigerator, Stainless Steel Appliance(s), Washer |
| AREA | Huntley |
| BASEMENT | Full, Sump Pump, Unfinished, Yes |
| CONSTRUCTION | Brick, Vinyl Siding |
| FIREPLACE | Yes |
| GARAGE | Attached Garage, Yes |
| HEAT | Natural Gas |
| HOA DUES | 425 |
| INTERIOR | Cathedral Ceiling(s), Entrance Foyer |
| LOT | 0.2931 acre(s) |
| LOT DESCRIPTION | Corner Lot |
| LOT DIMENSIONS | 12766 |
| PARKING | Asphalt, Garage Door Opener, Garage, Attached, Driveway |
| SEWER | Public Sewer |
| STYLE | Contemporary |
| SUBDIVISION | Georgian Place |
| TAXES | 11395 |
| WATER | Public |
MORTGAGE CALCULATOR
TOTAL MONTHLY PAYMENT
0
P
I
*Estimate only
| SATELLITE VIEW |
| / | |
We respect your online privacy and will never spam you. By submitting this form with your telephone number
you are consenting for Humderto
Garcia to contact you even if your name is on a Federal or State
"Do not call List".
Listed with HomeSmart Connect LLC
The data relating to real estate for sale on this web site comes in part from the Broker ReciprocitySM Program of MRED. All real estate listings are marked with the Broker ReciprocitySM logo or the MRED Broker ReciprocitySM thumbnail logo (a little black house) and detailed information about them includes the name of the listing brokers.
The broker providing these data believes them to be correct, but advises interested parties to confirm them before relying on them in a purchase decision.
Copyright 2026 MRED. All rights reserved.

The broker providing these data believes them to be correct, but advises interested parties to confirm them before relying on them in a purchase decision.
Copyright 2026 MRED. All rights reserved.
This IDX solution is (c) Diverse Solutions 2026.