|
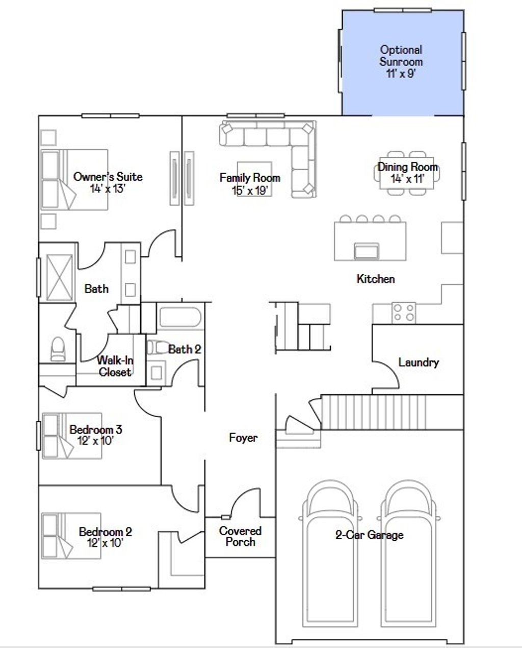
SPECIAL FINANCING AVAILABLE! AVAILABLE NOW!!! Homesite #0044 Step into the Siena, a thoughtfully designed single-story home that blends comfort, efficiency, and modern style. This layout features three bedrooms and two bathrooms in an open-concept design that creates a seamless flow between the family room, dining area, and kitchen. At the center of it all, the kitchen offers a spacious island, stainless steel appliances, and generous cabinetry-perfect for both daily living and casual entertaining. Luxury vinyl plank flooring extends throughout the main living areas, offering both durability and a refined look. The private owner's suite serves as a quiet retreat, complete with an expansive walk-in closet and a spa-like en-suite bathroom. Two additional bedrooms are situated near a shared hallway bath, providing flexibility for guests, family, or a home office. A two-car garage and a conveniently located laundry room add to the home's functional appeal. The Siena delivers modern living in a streamlined, practical layout designed to suit a variety of lifestyles. *Photos are not this actual home* Royal Estates is a brand-new community of single-family homes for sale in Hinckley, IL, offering residents a quiet, scenic setting with easy access to nature, recreation, and enriching experiences. Outdoor lovers will appreciate close proximity to Shabbona Lake State Park, a 105-acre haven for fishing, boating, hiking, and wildlife watching. Its scenic trails and serene landscapes make it an ideal destination for both adventure and relaxation. For even more outdoor enjoyment, the Great Western Trail offers an 18.5-mile path perfect for hiking, biking, or a peaceful walk surrounded by lush greenery and abundant wildlife-a refreshing escape from the everyday. Just a short drive away, Northern Illinois University (NIU) brings a vibrant energy to the region with its cultural events, athletic programs, art galleries, and concerts. As a hub of innovation and education, NIU also offers world-class academics and research opportunities. At Royal Estates, you'll find the perfect blend of quiet small-town charm, access to outdoor recreation, and connection to world-class resources-making it a community where you can truly thrive.
| DAYS ON MARKET | 42 | LAST UPDATED | 4/2/2026 |
|---|---|---|---|
| TRACT | Royal Estates | YEAR BUILT | 2025 |
| COMMUNITY | Hinckley | GARAGE SPACES | 2.0 |
| COUNTY | DeKalb | STATUS | Active |
| PROPERTY TYPE(S) | Single Family |
| School District | Hinckley-Big Rock High School |
|---|---|
| Elementary School | Hinckley Big Rock Elementary Sch |
| Jr. High School | Hinckley-Big Rock Middle School |
| High School | Hinckley-Big Rock High School |
| ADDITIONAL DETAILS | |
| AIR | Central Air |
|---|---|
| AIR CONDITIONING | Yes |
| AREA | Hinckley |
| BASEMENT | Full, Unfinished, Yes |
| CONSTRUCTION | Vinyl Siding |
| GARAGE | Yes |
| HEAT | Forced Air, Natural Gas |
| HOA DUES | 525 |
| LOT | 0 |
| LOT DIMENSIONS | 13375 |
| PARKING | Garage Door Opener, Detached, Garage |
| SEWER | Public Sewer |
| SUBDIVISION | Royal Estates |
| WATER | Public |
MORTGAGE CALCULATOR
TOTAL MONTHLY PAYMENT
0
P
I
*Estimate only
| SATELLITE VIEW |
| / | |
We respect your online privacy and will never spam you. By submitting this form with your telephone number
you are consenting for Humderto
Garcia to contact you even if your name is on a Federal or State
"Do not call List".
Listed with HomeSmart Connect LLC
The data relating to real estate for sale on this web site comes in part from the Broker ReciprocitySM Program of MRED. All real estate listings are marked with the Broker ReciprocitySM logo or the MRED Broker ReciprocitySM thumbnail logo (a little black house) and detailed information about them includes the name of the listing brokers.
The broker providing these data believes them to be correct, but advises interested parties to confirm them before relying on them in a purchase decision.
Copyright 2026 MRED. All rights reserved.

The broker providing these data believes them to be correct, but advises interested parties to confirm them before relying on them in a purchase decision.
Copyright 2026 MRED. All rights reserved.
This IDX solution is (c) Diverse Solutions 2026.