|
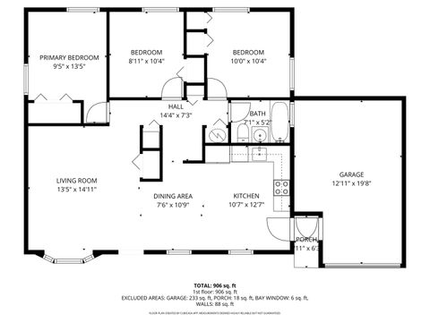
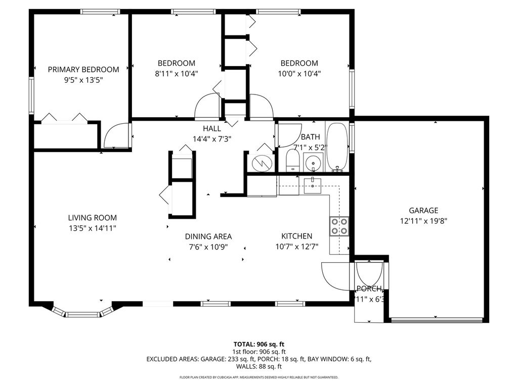
Situated on a spacious 8,971 sq ft lot, newly renovated, 3 bedroom, 1 bath home, features fresh paint throughout, new carpet, new luxury vinyl plank flooring, updated plumbing HVAC, electric service, and panel. The bathroom and kitchen have also been fully updated. In your bright kitchen, enjoy new stainless steel appliances, granite counter tops, white shaker style cabinets and a modern backsplash. A convenient breeze way leads to the garage for added convenience. Additional improvements include new bedroom windows, a new garage door, new concrete porch, and a new asphalt driveway. Ideal for homeowners or landlords seeking a solid, low maintenance property in a residential neighborhood.
| DAYS ON MARKET | 1 | LAST UPDATED | 4/2/2026 |
|---|---|---|---|
| TRACT | Southdale | YEAR BUILT | 1959 |
| COMMUNITY | Sauk Village | GARAGE SPACES | 1.0 |
| COUNTY | Cook | STATUS | Active |
| PROPERTY TYPE(S) | Single Family |
| ADDITIONAL DETAILS | |
| AIR | Central Air |
|---|---|
| AIR CONDITIONING | Yes |
| APPLIANCES | Dishwasher, Microwave, Range, Refrigerator, Stainless Steel Appliance(s) |
| AREA | Sauk Village |
| BASEMENT | None |
| CONSTRUCTION | Aluminum Siding, Brick Veneer, Frame |
| GARAGE | Attached Garage, Yes |
| HEAT | Natural Gas |
| INTERIOR | Granite Counters, Open Floorplan |
| LOT | 8712 sq ft |
| LOT DIMENSIONS | 8971 |
| PARKING | Asphalt, Attached, Garage |
| SEWER | Public Sewer |
| STYLE | Ranch |
| SUBDIVISION | Southdale |
| TAXES | 523.03 |
MORTGAGE CALCULATOR
TOTAL MONTHLY PAYMENT
0
P
I
*Estimate only
| SATELLITE VIEW |
| / | |
We respect your online privacy and will never spam you. By submitting this form with your telephone number
you are consenting for Humderto
Garcia to contact you even if your name is on a Federal or State
"Do not call List".
Listed with Coldwell Banker Realty
The data relating to real estate for sale on this web site comes in part from the Broker ReciprocitySM Program of MRED. All real estate listings are marked with the Broker ReciprocitySM logo or the MRED Broker ReciprocitySM thumbnail logo (a little black house) and detailed information about them includes the name of the listing brokers.
The broker providing these data believes them to be correct, but advises interested parties to confirm them before relying on them in a purchase decision.
Copyright 2026 MRED. All rights reserved.

The broker providing these data believes them to be correct, but advises interested parties to confirm them before relying on them in a purchase decision.
Copyright 2026 MRED. All rights reserved.
This IDX solution is (c) Diverse Solutions 2026.