|
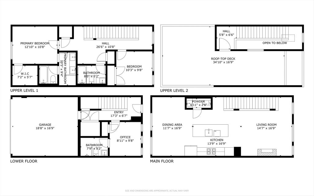
Welcome to AVNDL Estates, a modern residential enclave set within one of Chicago's most historic and dynamic neighborhoods-Avondale. Developed by the award-winning Noah Properties and thoughtfully designed by Lisek Interiors, this private, gated community offers 52 luxury townhomes ranging from 1,950 to 4,250 square feet, each curated for contemporary living. Every residence delivers the space, privacy, and security of single-family living, featuring a private gated front yard, expansive rooftop deck, attached two-car garage, and secure entry. This sun-filled 3-bedroom, 3.1-bath home showcases custom European cabinetry, a chef-inspired kitchen with oversized island and stainless-steel appliances, bespoke built-ins, a fireplace, spa-like bathrooms, and a private rooftop retreat. Just outside your door, residents enjoy an exceptional collection of amenities including outdoor grilling and dining areas, a fenced dog run, pet grooming station, and a state-of-the-art indoor fitness center complete with multiple 60" TVs, private changing rooms, and full weight and cardio equipment. Move-in ready and fully outfitted with custom closets and neutral window treatments throughout, this home offers an unparalleled opportunity to experience refined urban living. Explore the property in 3D-click the 3D button to take a virtual tour and experience every detail firsthand.
| DAYS ON MARKET | 3 | LAST UPDATED | 4/3/2026 |
|---|---|---|---|
| YEAR BUILT | 2021 | COMMUNITY | CHI - Irving Park |
| GARAGE SPACES | 2.0 | COUNTY | Cook |
| STATUS | Active | PROPERTY TYPE(S) | Condo/Townhouse/Co-Op |
| School District | Lincoln Park High School |
|---|---|
| Elementary School | Harriet Tubman Elementary School |
| Jr. High School | Harriet Tubman Elementary School |
| High School | Lincoln Park High School |
| ADDITIONAL DETAILS | |
| AIR | Central Air |
|---|---|
| AIR CONDITIONING | Yes |
| AMENITIES | Insurance, Internet, Security, Snow Removal, Water |
| APPLIANCES | Dishwasher, Dryer, Microwave, Range, Refrigerator, Washer |
| AREA | CHI - Irving Park |
| BASEMENT | None |
| CONSTRUCTION | Brick |
| GARAGE | Attached Garage, Yes |
| HEAT | Forced Air, Natural Gas |
| HOA DUES | 300 |
| INTERIOR | Walk-In Closet(s) |
| LOT | 0 |
| LOT DIMENSIONS | 0X0 |
| PARKING | Attached, Garage |
| SEWER | Public Sewer |
| STORIES | 3 |
MORTGAGE CALCULATOR
TOTAL MONTHLY PAYMENT
0
P
I
*Estimate only
| / | |
We respect your online privacy and will never spam you. By submitting this form with your telephone number
you are consenting for Humderto
Garcia to contact you even if your name is on a Federal or State
"Do not call List".
Listed with Americorp, Ltd
The data relating to real estate for sale on this web site comes in part from the Broker ReciprocitySM Program of MRED. All real estate listings are marked with the Broker ReciprocitySM logo or the MRED Broker ReciprocitySM thumbnail logo (a little black house) and detailed information about them includes the name of the listing brokers.
The broker providing these data believes them to be correct, but advises interested parties to confirm them before relying on them in a purchase decision.
Copyright 2026 MRED. All rights reserved.

The broker providing these data believes them to be correct, but advises interested parties to confirm them before relying on them in a purchase decision.
Copyright 2026 MRED. All rights reserved.
This IDX solution is (c) Diverse Solutions 2026.