|
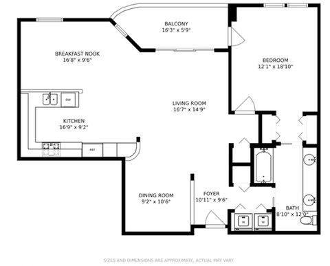
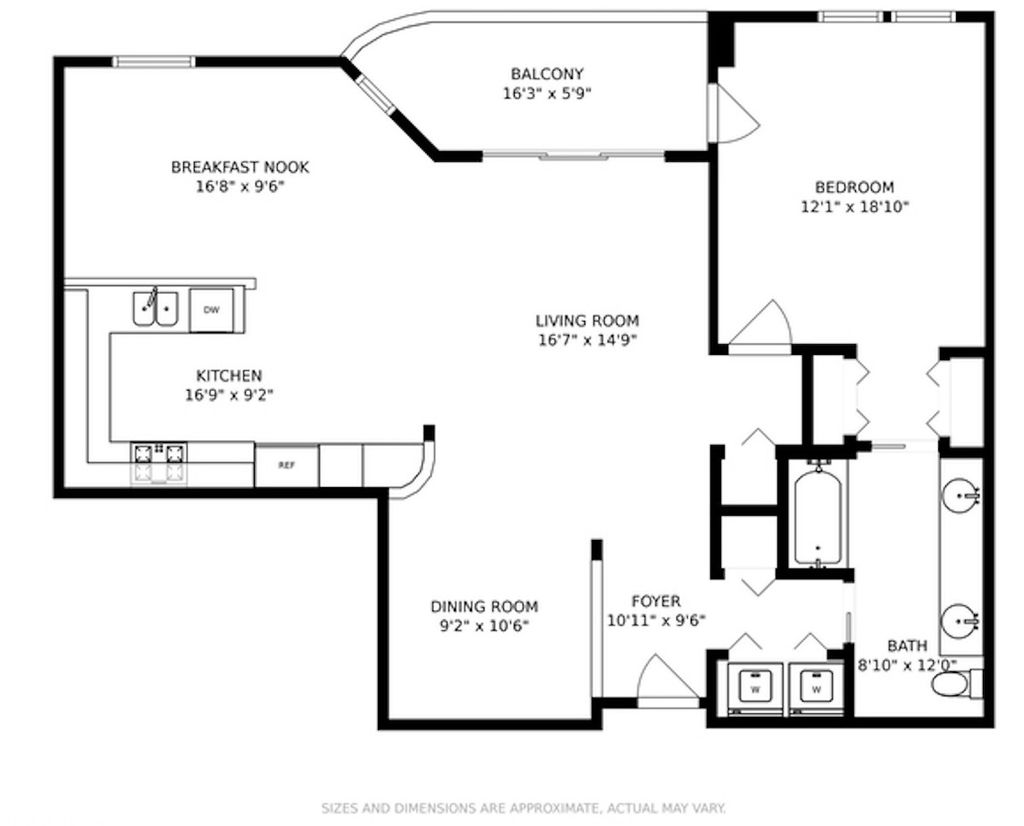
1,200+ Sq Ft 1BR + Flex Space - Larger Than Many 2BR Condos | Best Value in Kimball Square. One of only 8 oversized 1-bedroom residences (1,204 sq ft), this rarely available Ames model offers the space of a 2-bedroom without the added assessment cost or upkeep. While most 1-bed units in the area are 600-900 sq ft, this home features over 1,200 sq ft with a true living room, separate dining area, and dedicated office/den space (see floor plan in photos) - all in an open layout that comfortably fits full-size furniture. Highlights include 9 ft ceilings, granite countertops, stainless steel appliances, eat-in kitchen, spacious bedroom with oversized bath and double vanity, and in-unit full-size washer/dryer (2025). Additional updates include a new garbage disposal (2026) and well-maintained AC (2019). Enjoy a west-facing private balcony with sunset views and mature trees, plus heated garage parking, storage, and a secure, pet-friendly building. Walkable to shopping, dining, library, parks, and trails, with easy access to Arlington Park Train Station, Woodfield Mall, Algonquin Rd., Golf Rd., Northwest Highway, IL-53, I-90, I-290, and I-355. Recent building activity shows strong demand - making this a compelling value for the space. Compare the price per square foot - this unit stands out! HOA includes heat, gas, water, parking, exterior maintenance and more.
| DAYS ON MARKET | 11 | LAST UPDATED | 4/13/2026 |
|---|---|---|---|
| TRACT | Kimball Square | YEAR BUILT | 1999 |
| COMMUNITY | Rolling Meadows | GARAGE SPACES | 1.0 |
| COUNTY | Cook | STATUS | Active |
| PROPERTY TYPE(S) | Condo/Townhouse/Co-Op |
| School District | Rolling Meadows High School |
|---|---|
| Elementary School | Kimball Hill Elementary School |
| Jr. High School | Carl Sandburg Middle School |
| High School | Rolling Meadows High School |
| ADDITIONAL DETAILS | |
| AIR | Central Air |
|---|---|
| AIR CONDITIONING | Yes |
| AMENITIES | Gas, Insurance, Snow Removal, Water |
| APPLIANCES | Dishwasher, Disposal, Dryer, Microwave, Range, Refrigerator, Stainless Steel Appliance(s), Washer |
| AREA | Rolling Meadows |
| BASEMENT | None |
| CONSTRUCTION | Brick |
| EXTERIOR | Balcony |
| GARAGE | Attached Garage, Yes |
| HEAT | Forced Air, Radiant Floor |
| HOA DUES | 389 |
| INTERIOR | Elevator, Granite Counters, High Ceilings, Open Floorplan |
| LOT | 0 |
| LOT DESCRIPTION | Landscaped |
| LOT DIMENSIONS | COMMON |
| PARKING | Garage Door Opener, Heated Garage, Attached, Garage |
| SEWER | Public Sewer |
| STORIES | 4 |
| SUBDIVISION | Kimball Square |
| TAXES | 4371.92 |
MORTGAGE CALCULATOR
TOTAL MONTHLY PAYMENT
0
P
I
*Estimate only
| SATELLITE VIEW |
| / | |
We respect your online privacy and will never spam you. By submitting this form with your telephone number
you are consenting for Humderto
Garcia to contact you even if your name is on a Federal or State
"Do not call List".
Listed with H Allan
The data relating to real estate for sale on this web site comes in part from the Broker ReciprocitySM Program of MRED. All real estate listings are marked with the Broker ReciprocitySM logo or the MRED Broker ReciprocitySM thumbnail logo (a little black house) and detailed information about them includes the name of the listing brokers.
The broker providing these data believes them to be correct, but advises interested parties to confirm them before relying on them in a purchase decision.
Copyright 2026 MRED. All rights reserved.

The broker providing these data believes them to be correct, but advises interested parties to confirm them before relying on them in a purchase decision.
Copyright 2026 MRED. All rights reserved.
This IDX solution is (c) Diverse Solutions 2026.