|
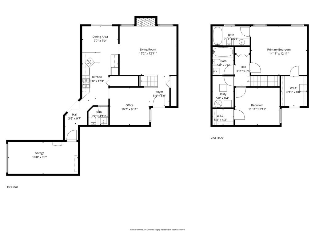
Your search ends here! Beautifully maintained 2-story townhome in Lakewood Village offering 2 bedrooms, 2.5 bathrooms, and serene pond views that create a peaceful, private setting. Lovingly cared for and thoughtfully updated by the original owner. Step inside to find new vinyl flooring throughout the first floor and a spacious layout perfect for everyday living and entertaining. The cozy family room features a gas fireplace with windows on both sides, filling the space with natural light and showcasing stunning views of the pond. The kitchen offers plenty of cabinet and countertop space, backsplash, and a convenient eating area, all overlooking the tranquil backyard. Just off the family room, enjoy the concrete patio-an ideal spot to relax and take in the beautiful, green surroundings. The separate dining room, currently used as an office, provides great flexibility. A fully updated first-floor half bathroom includes a new vanity, toilet, mirror, and light fixture. Upstairs, you'll find a highly desirable second-floor laundry along with two bedrooms and two full bathrooms. The spacious primary suite features a walk-in closet, private ensuite bathroom, and more picturesque pond views. The shared full bathroom has been updated with a new countertop, faucets, mirror, light fixture, and toilet. Major updates include new furnace, A/C, and Ecobee thermostat (2025), along with new flooring and carpet (2025). Additional highlights include a 1-car heated garage. Conveniently located close to shopping, restaurants, and the Metra, this home offers both comfort and convenience. Schedule a showing today! Make sure to check out the floor plans in photos.
| DAYS ON MARKET | 24 | LAST UPDATED | 4/15/2026 |
|---|---|---|---|
| YEAR BUILT | 1994 | COMMUNITY | Ivanhoe / Mundelein |
| GARAGE SPACES | 1.0 | COUNTY | Lake |
| STATUS | Conditional | PROPERTY TYPE(S) | Condo/Townhouse/Co-Op |
| School District | Mundelein Cons High School |
|---|---|
| High School | Mundelein Cons High School |
| ADDITIONAL DETAILS | |
| AIR | Central Air |
|---|---|
| AIR CONDITIONING | Yes |
| AMENITIES | Snow Removal |
| APPLIANCES | Dishwasher, Dryer, Microwave, Range, Refrigerator, Washer |
| AREA | Ivanhoe / Mundelein |
| BASEMENT | None |
| CONSTRUCTION | Aluminum Siding |
| FIREPLACE | Yes |
| GARAGE | Attached Garage, Yes |
| HEAT | Forced Air, Natural Gas |
| HOA DUES | 250 |
| INTERIOR | Entrance Foyer, Walk-In Closet(s) |
| LOT | 0 |
| LOT DIMENSIONS | COMMON |
| PARKING | Asphalt, Garage Door Opener, Attached, Garage |
| SEWER | Public Sewer |
| STORIES | 2 |
| TAXES | 5710.1 |
| WATER | Public |
MORTGAGE CALCULATOR
TOTAL MONTHLY PAYMENT
0
P
I
*Estimate only
| SATELLITE VIEW |
| / | |
We respect your online privacy and will never spam you. By submitting this form with your telephone number
you are consenting for Humderto
Garcia to contact you even if your name is on a Federal or State
"Do not call List".
Listed with RE/MAX Plaza
The data relating to real estate for sale on this web site comes in part from the Broker ReciprocitySM Program of MRED. All real estate listings are marked with the Broker ReciprocitySM logo or the MRED Broker ReciprocitySM thumbnail logo (a little black house) and detailed information about them includes the name of the listing brokers.
The broker providing these data believes them to be correct, but advises interested parties to confirm them before relying on them in a purchase decision.
Copyright 2026 MRED. All rights reserved.

The broker providing these data believes them to be correct, but advises interested parties to confirm them before relying on them in a purchase decision.
Copyright 2026 MRED. All rights reserved.
This IDX solution is (c) Diverse Solutions 2026.