|
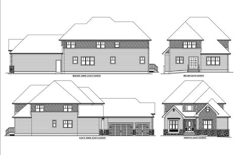
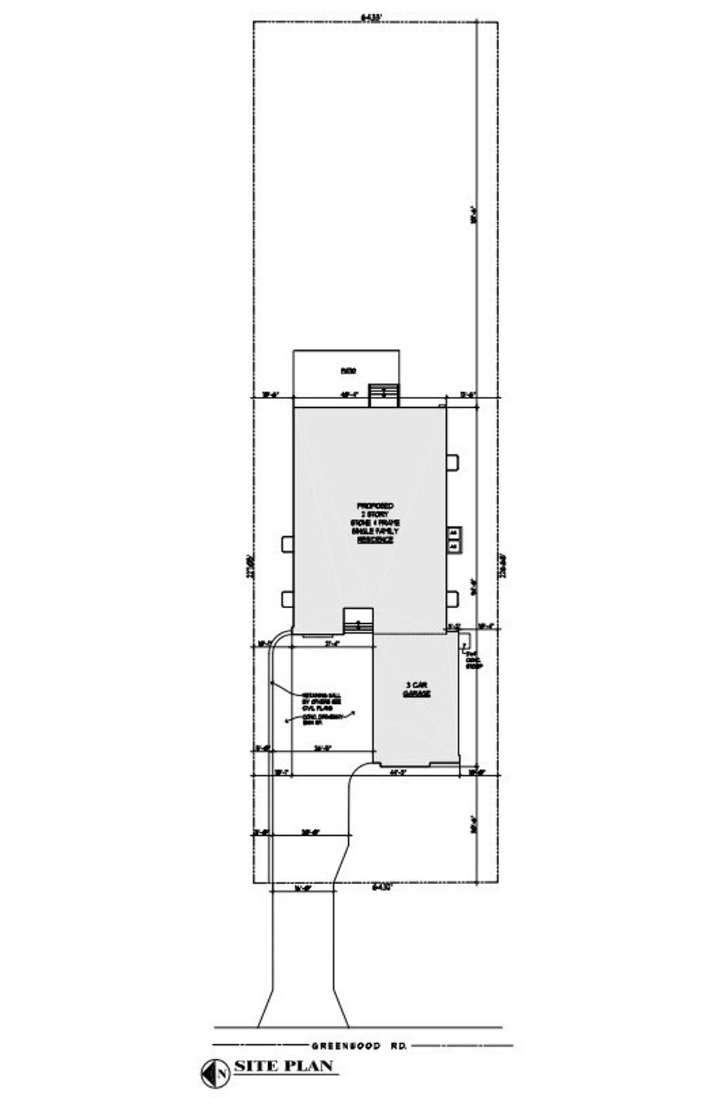
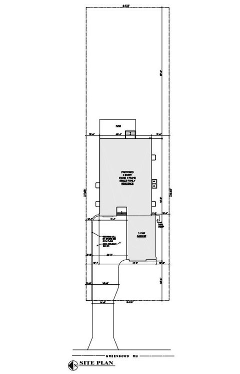
Proposed New Construction - Rare New Construction Offering in Glenview! 6-bedroom, 4.5-bathroom home with approximately 4,350 square feet plus an additional 1,200 sq feet in basement. Enjoy well-designed living space on an extra deep lot in a sought after Glenview. 10-foot ceilings, 8-foot interior doors, and strong natural light throughout create a clean, open layout. The kitchen is built for both daily use and entertaining, featuring Sub-Zero and Wolf appliances, including a 6-burner range, custom cabinetry, and a 10-foot island with seating. It opens directly to the family room with a gas fireplace and accent wall, along with access to a private patio. Dining room includes coffered ceilings and detailed millwork. White oak hardwood floors run throughout the main level and up through the 2nd level. The first floor includes an in-law suite with a full bathroom. Mudroom with sink and storage connects to the attached 3-car garage with EV-ready electric, plus additional driveway parking. Second floor includes four bedrooms PLUS LOFT ROOM and three full bathrooms, The primary suite has dual walk-in closets and a bathroom with soaking tub, glass shower, and bidet-ready outlets. The lofted living room/library provides additional flexible space and a place for a home office. Two HVAC systems. Basement with great ceiling height and window wells for natural light and designed to accommodate a 6th bedroom, additional full bathroom, and open flex space. Fully customizable. Easy access to Metra, Edens Expressway, parks, forest preserves, and shopping and more. Target Delivery June 2027.
| DAYS ON MARKET | 4 | LAST UPDATED | 4/15/2026 |
|---|---|---|---|
| YEAR BUILT | 2027 | COMMUNITY | Glenview / Golf |
| GARAGE SPACES | 3.0 | COUNTY | Cook |
| STATUS | Active | PROPERTY TYPE(S) | Single Family |
| School District | Maine East High School |
|---|---|
| High School | Maine East High School |
| ADDITIONAL DETAILS | |
| AIR | Central Air |
|---|---|
| AIR CONDITIONING | Yes |
| APPLIANCES | Dishwasher, Disposal, Dryer, Gas Oven, Microwave, Range, Range Hood, Refrigerator, Stainless Steel Appliance(s), Washer |
| AREA | Glenview / Golf |
| BASEMENT | Full, None, Unfinished, Yes |
| CONSTRUCTION | Fiber Cement |
| FIREPLACE | Yes |
| GARAGE | Attached Garage, Yes |
| HEAT | Natural Gas |
| INTERIOR | Entrance Foyer |
| LOT | 0.33 acre(s) |
| LOT DIMENSIONS | 64X226 |
| PARKING | Gravel, Garage Door Opener, Attached, Garage |
| SEWER | Public Sewer |
| WATER | Public |
MORTGAGE CALCULATOR
TOTAL MONTHLY PAYMENT
0
P
I
*Estimate only
| SATELLITE VIEW |
| / | |
We respect your online privacy and will never spam you. By submitting this form with your telephone number
you are consenting for Humderto
Garcia to contact you even if your name is on a Federal or State
"Do not call List".
Listed with @properties Christie's International Real Estate
The data relating to real estate for sale on this web site comes in part from the Broker ReciprocitySM Program of MRED. All real estate listings are marked with the Broker ReciprocitySM logo or the MRED Broker ReciprocitySM thumbnail logo (a little black house) and detailed information about them includes the name of the listing brokers.
The broker providing these data believes them to be correct, but advises interested parties to confirm them before relying on them in a purchase decision.
Copyright 2026 MRED. All rights reserved.

The broker providing these data believes them to be correct, but advises interested parties to confirm them before relying on them in a purchase decision.
Copyright 2026 MRED. All rights reserved.
This IDX solution is (c) Diverse Solutions 2026.