|
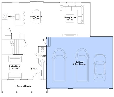
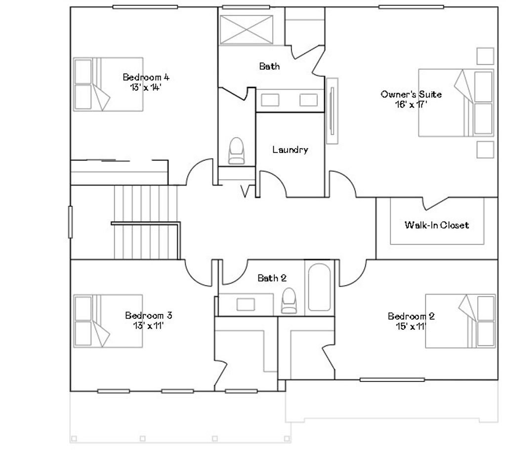
SPECIAL FINANCING OFFERS ARE AVAILABLE! READY FOR DELIVERY! Homesite# 0076. Take in the beauty of the Townsend, a home where sophisticated design and everyday comfort come together seamlessly. This thoughtfully crafted residence features four bedrooms, two full bathrooms, a powder room, and a spacious living room, providing ample space for both relaxation and entertainment. The first floor boasts an airy, open-concept layout, with luxury vinyl plank flooring unifying the kitchen, dining area, and family room. At the heart of the home, the chef-inspired kitchen impresses with sleek quartz countertops, premium stainless-steel appliances, 42"" cabinetry , and a large center island perfect for meal prep and gatherings. Upstairs, the owner's suite is a paradise, offering a spacious walk-in closet and a spa-like en-suite bathroom with double sinks and a deluxe shower, creating the perfect space for unwinding. Three additional bedrooms and a full bathroom are located nearby, while a second-floor laundry room adds convenience to everyday living. With its smart design and premium finishes, the Townsend offers a lifestyle that blends comfort, style, and functionality, perfectly suited for the way you live today. Exterior will be Greystone color siding with Graystone color brick. (pic for reference ONLY) *Photos are not this actual home* Whispering Meadows is a vibrant community offering new single-family homes in Yorkville, IL, ideally located west of Route 47 and north of Cannonball Trail. This amenity-rich neighborhood is designed for active, family-friendly living, featuring a clubhouse with a party room, a fitness center, and a swimming pool for year-round enjoyment. Outdoor enthusiasts will love the two parks with playgrounds, a tot lot, a picnic pavilion, and a baseball field, all connected by scenic walking trails that weave throughout the community, making it easy to stay active and engaged with neighbors. Yorkville combines quaint suburban charm with natural beauty and offers a central location close to major routes. Residents enjoy convenient access to downtown Yorkville and a bustling commercial corridor along US-34, where shopping, dining, and entertainment options abound. At Whispering Meadows, you'll find the perfect balance of comfort, community, and convenience-all wrapped in the beauty of Yorkville living.
| DAYS ON MARKET | 1 | LAST UPDATED | 4/7/2026 |
|---|---|---|---|
| TRACT | Whispering Meadows | YEAR BUILT | 2025 |
| COMMUNITY | Yorkville / Bristol | GARAGE SPACES | 3.0 |
| COUNTY | Kendall | STATUS | Active |
| PROPERTY TYPE(S) | Single Family |
| School District | Yorkville High School |
|---|---|
| Elementary School | Bristol Bay Elementary School |
| Jr. High School | Yorkville Middle School |
| High School | Yorkville High School |
| ADDITIONAL DETAILS | |
| AIR | Central Air |
|---|---|
| AIR CONDITIONING | Yes |
| APPLIANCES | Dishwasher, Disposal, Microwave, Range, Stainless Steel Appliance(s) |
| AREA | Yorkville / Bristol |
| BASEMENT | Full, Unfinished, Yes |
| CONSTRUCTION | Brick, Vinyl Siding |
| GARAGE | Attached Garage, Yes |
| HEAT | Forced Air, Natural Gas |
| HOA DUES | 68 |
| LOT | 0 |
| LOT DIMENSIONS | 12285 |
| PARKING | Asphalt, Garage Door Opener, Attached, Garage |
| SEWER | Public Sewer |
| SUBDIVISION | Whispering Meadows |
| WATER | Public |
MORTGAGE CALCULATOR
TOTAL MONTHLY PAYMENT
0
P
I
*Estimate only
| SATELLITE VIEW |
| / | |
We respect your online privacy and will never spam you. By submitting this form with your telephone number
you are consenting for Humderto
Garcia to contact you even if your name is on a Federal or State
"Do not call List".
Listed with HomeSmart Connect LLC
The data relating to real estate for sale on this web site comes in part from the Broker ReciprocitySM Program of MRED. All real estate listings are marked with the Broker ReciprocitySM logo or the MRED Broker ReciprocitySM thumbnail logo (a little black house) and detailed information about them includes the name of the listing brokers.
The broker providing these data believes them to be correct, but advises interested parties to confirm them before relying on them in a purchase decision.
Copyright 2026 MRED. All rights reserved.

The broker providing these data believes them to be correct, but advises interested parties to confirm them before relying on them in a purchase decision.
Copyright 2026 MRED. All rights reserved.
This IDX solution is (c) Diverse Solutions 2026.