|
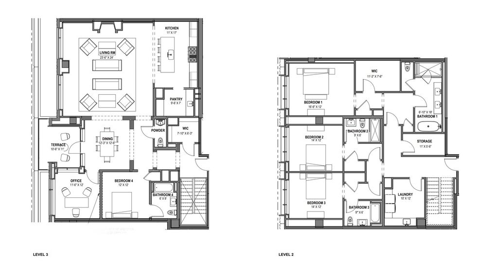
Introducing the first duplex resale at the Embry! Welcome to Unit 305, an exceptionally rare four-bedroom, four-and-a-half-bath duplex residence in the heart of the West Loop. One of only four duplex homes built in this celebrated luxury development, this home at almost 3,700 sq ft offers impeccable features including elegant herringbone hardwood floor in the foyer and living room along with arched entryways and fireplace surrounds. The dramatic ceiling heights and striking grand staircase create a sense of arrival from the moment you step inside. The main level is anchored by an expansive great room and an upgraded Atelier Jouvence Fireplace with floor-to-ceiling windows that fill the space with natural light. A stunning chef's kitchen is outfitted with Bovelli cabinetry, Wolf, Sub-Zero, and Miele appliances, upgraded 2' quartzite countertops, and a large butler's pantry. The open flow between the kitchen, dining area, and living room makes the home ideal for both entertaining and daily living. A private terrace off the dining room offers charming city tree lined views and creates the perfect indoor-outdoor connection. Thoughtful design continues with multiple flexible spaces rarely found in a condominium, including a separate den/office, a fully built-out lower-level office with custom desk and shelving, and an oversized laundry room with dual washers and dryers and a second office area complete with built-in desk and cabinetry. Each of the four bedrooms is ensuite, providing privacy and comfort for family and guests alike. The primary suite is a serene retreat featuring a custom walk-in closet and spa-caliber bath with dual vanities, freestanding soaking tub, radiant heated floors, Lefroy Brooks fixtures and a glass-enclosed walk-in shower. Additional details include designer lighting, multi-zoned HVAC, prewiring for smart home integration, automated shades, abundant storage, and a heated tandem parking space accommodating two vehicles. Embry is a boutique fifteen-story building that has quickly become the West Loop's most sought-after address. Residents enjoy a full suite of amenities including 24-hour door staff, a dramatic double-height lobby, an open-air firepit oasis, outdoor kitchen with grill and dining, an indoor/outdoor fitness center with putting green, a private luxe owner's lounge, and dog run. With its premier location just steps from world-class dining, boutique shopping, vibrant nightlife, and neighborhood parks, Embry offers a lifestyle of sophistication and convenience. With its rare duplex layout, extensive customizations, and unmatched location, this residence represents a truly special opportunity in one of Chicago's most architecturally significant developments. Broker owned.
| DAYS ON MARKET | 1 | LAST UPDATED | 4/7/2026 |
|---|---|---|---|
| YEAR BUILT | 2023 | COMMUNITY | CHI - Near West Side |
| GARAGE SPACES | 2.0 | COUNTY | Cook |
| STATUS | Active | PROPERTY TYPE(S) | Condo/Townhouse/Co-Op |
| Elementary School | Skinner Elementary School |
|---|
| ADDITIONAL DETAILS | |
| AIR | Central Air |
|---|---|
| AIR CONDITIONING | Yes |
| AMENITIES | Gas, Insurance, Internet, Snow Removal, Water |
| APPLIANCES | Bar Fridge, Dishwasher, Disposal, Dryer, Gas Cooktop, Microwave, Range, Range Hood, Refrigerator, Stainless Steel Appliance(s), Washer, Wine Refrigerator |
| AREA | CHI - Near West Side |
| BASEMENT | None |
| CONSTRUCTION | Glass, Steel Siding |
| EXTERIOR | Balcony, Barbecue, Dog Run, Fire Pit, Outdoor Grill |
| FIREPLACE | Yes |
| GARAGE | Attached Garage, Yes |
| HEAT | Forced Air, Radiant Floor |
| HOA DUES | 1675 |
| INTERIOR | Built-in Features, Elevator, Storage, Walk-In Closet(s) |
| LOT | 0 |
| LOT DIMENSIONS | CONDO |
| PARKING | Heated Garage, Tandem, Attached, Garage |
| SEWER | Public Sewer |
| STORIES | 15 |
| TAXES | 46784 |
MORTGAGE CALCULATOR
TOTAL MONTHLY PAYMENT
0
P
I
*Estimate only
| SATELLITE VIEW |
| / | |
We respect your online privacy and will never spam you. By submitting this form with your telephone number
you are consenting for Humderto
Garcia to contact you even if your name is on a Federal or State
"Do not call List".
Listed with @properties Christie's International Real Estate
The data relating to real estate for sale on this web site comes in part from the Broker ReciprocitySM Program of MRED. All real estate listings are marked with the Broker ReciprocitySM logo or the MRED Broker ReciprocitySM thumbnail logo (a little black house) and detailed information about them includes the name of the listing brokers.
The broker providing these data believes them to be correct, but advises interested parties to confirm them before relying on them in a purchase decision.
Copyright 2026 MRED. All rights reserved.

The broker providing these data believes them to be correct, but advises interested parties to confirm them before relying on them in a purchase decision.
Copyright 2026 MRED. All rights reserved.
This IDX solution is (c) Diverse Solutions 2026.