|
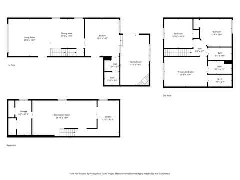
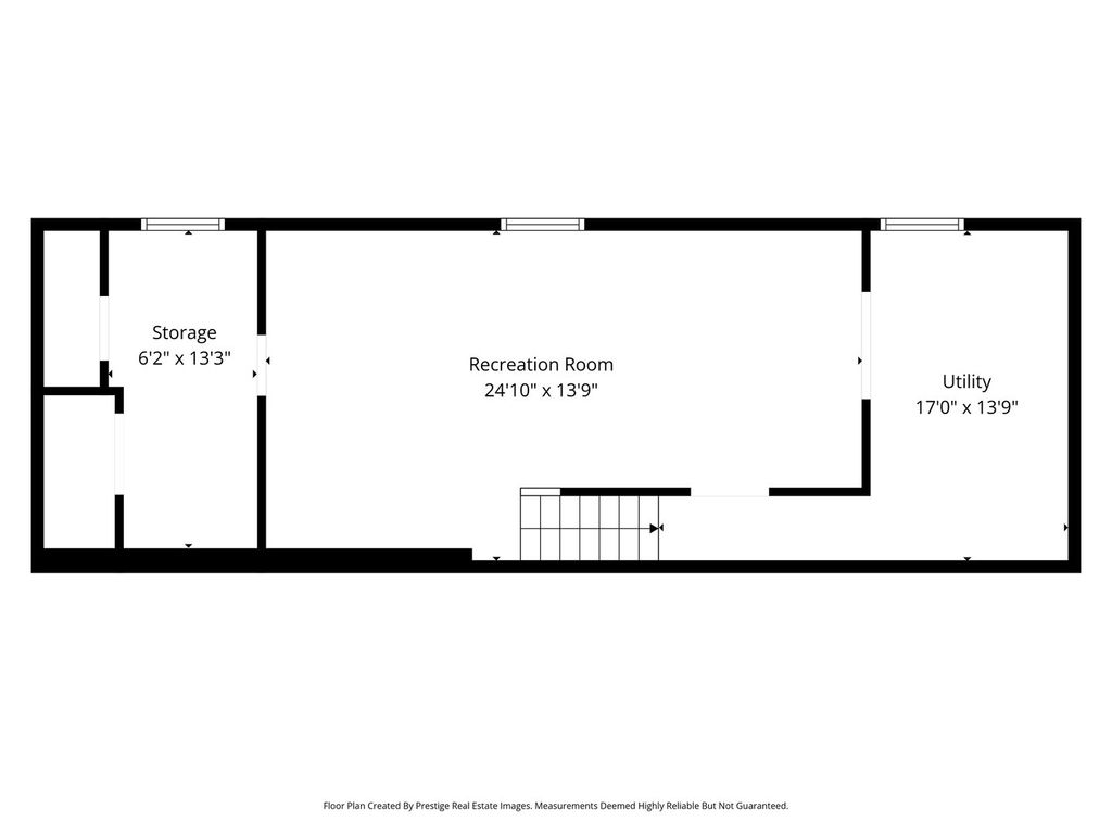
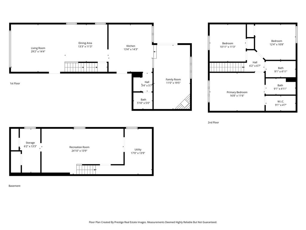
Welcome to 312 Brookdale #A in highly sought-after Bloomingdale! This beautifully maintained 3-bedroom, 2.5-bath townhouse offers with the perfect combination of comfort, space,location and NO HOA. Step inside to find gleaming hardwood floors throughout the main living areas and a bright, inviting layout ideal for both everyday living and entertaining. The home has been meticulously cared for, with all mechanicals well maintained and regularly serviced, providing peace of mind for the next owner. Upstairs features three generously sized bedrooms, including a spacious primary suite. Both full bathrooms are enhanced with skylights, filling the space with natural light and creating a warm, airy atmosphere. What truly sets this home apart from others in the subdivision is the fully finished basement-offering valuable additional living space perfect for another family room, home office, gym, or entertainment area. Step outside to your private backyard retreat, where you'll enjoy a serene setting backing to mature woods-providing a tranquil, nature-filled backdrop rarely found in townhome living. Conveniently located near beautiful outdoor spaces like Meacham Grove Forest Preserve and Springbrook Nature Center, as well as shopping and dining at Stratford Square Mall area. With its desirable location, private wooded views, and additional finished basement space, this home truly stands out. Don't miss your opportunity to own in one of Bloomingdale's most desirable communities! Schedule your showing today.
| DAYS ON MARKET | 4 | LAST UPDATED | 4/7/2026 |
|---|---|---|---|
| YEAR BUILT | 1987 | COMMUNITY | Bloomingdale |
| GARAGE SPACES | 1.0 | COUNTY | DuPage |
| STATUS | Active | PROPERTY TYPE(S) | Condo/Townhouse/Co-Op |
| School District | Glenbard East High School |
|---|---|
| Elementary School | Winnebago Elementary School |
| Jr. High School | Marquardt Middle School |
| High School | Glenbard East High School |
| ADDITIONAL DETAILS | |
| AIR | Ceiling Fan(s), Central Air |
|---|---|
| AIR CONDITIONING | Yes |
| APPLIANCES | Humidifier |
| AREA | Bloomingdale |
| BASEMENT | Full, Partially Finished, Yes |
| CONSTRUCTION | Brick, Cedar |
| FIREPLACE | Yes |
| GARAGE | Attached Garage, Yes |
| HEAT | Forced Air, Natural Gas |
| INTERIOR | Storage, Vaulted Ceiling(s), Walk-In Closet(s) |
| LOT | 0 |
| LOT DIMENSIONS | 5663 |
| PARKING | Concrete, Garage Door Opener, Attached, Garage |
| SEWER | Public Sewer |
| STORIES | 2 |
| TAXES | 7522 |
| WATER | Public |
MORTGAGE CALCULATOR
TOTAL MONTHLY PAYMENT
0
P
I
*Estimate only
| SATELLITE VIEW |
| / | |
We respect your online privacy and will never spam you. By submitting this form with your telephone number
you are consenting for Humderto
Garcia to contact you even if your name is on a Federal or State
"Do not call List".
Listed with eXp Realty
The data relating to real estate for sale on this web site comes in part from the Broker ReciprocitySM Program of MRED. All real estate listings are marked with the Broker ReciprocitySM logo or the MRED Broker ReciprocitySM thumbnail logo (a little black house) and detailed information about them includes the name of the listing brokers.
The broker providing these data believes them to be correct, but advises interested parties to confirm them before relying on them in a purchase decision.
Copyright 2026 MRED. All rights reserved.

The broker providing these data believes them to be correct, but advises interested parties to confirm them before relying on them in a purchase decision.
Copyright 2026 MRED. All rights reserved.
This IDX solution is (c) Diverse Solutions 2026.