|
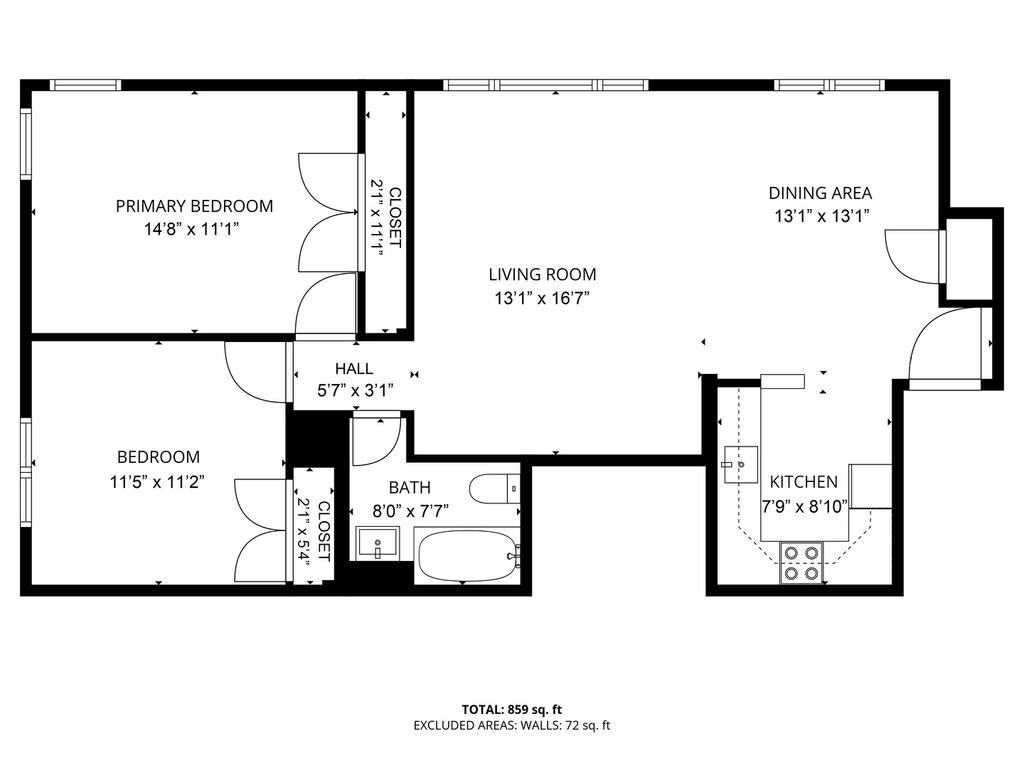
Sun-filled and spacious corner 2-bedroom condo in desirable West Ridge, ideally located walking distance to the new Peterson/Ridge Metra station. Enjoy the peace and privacy of a top floor unit with with no neighbors above. The bright living and dining areas feature beautiful parquet flooring that extends into the second bedroom. The primary bedroom has been updated with new carpeting. Both bedrooms boast excellent closet space. Located in an elevator building, the updated common laundry on the first floor is easily accessible. On-site parking is offered, subject to a waitlist. Low monthly assessments cover heat, water, common insurance, snow removal, and lawn care, providing exceptional value. A fantastic opportunity for buyers seeking an alternative to renting while building equity. Perfectly positioned near shopping (including Target), with quick access to parks, beaches, Lake Michigan, and the lively Devon Avenue corridor, known for its unique mix of international markets, specialty shops, and dining options. This home combines a prime location with everyday comfort.
| DAYS ON MARKET | 23 | LAST UPDATED | 4/14/2026 |
|---|---|---|---|
| YEAR BUILT | 1959 | COMMUNITY | CHI - West Ridge |
| COUNTY | Cook | STATUS | Conditional |
| PROPERTY TYPE(S) | Condo/Townhouse/Co-Op |
| ADDITIONAL DETAILS | |
| AIR | Wall Unit(s) |
|---|---|
| AIR CONDITIONING | Yes |
| AMENITIES | Insurance, Snow Removal, Water |
| AREA | CHI - West Ridge |
| BASEMENT | None |
| CONSTRUCTION | Brick |
| HEAT | Baseboard, Radiant |
| HOA DUES | 259 |
| INTERIOR | Elevator |
| LOT | 0 |
| LOT DIMENSIONS | COMMON |
| PARKING | Off Street |
| SEWER | Public Sewer |
| STORIES | 5 |
| TAXES | 2562.17 |
| WATER | Public |
MORTGAGE CALCULATOR
TOTAL MONTHLY PAYMENT
0
P
I
*Estimate only
| SATELLITE VIEW |
| / | |
We respect your online privacy and will never spam you. By submitting this form with your telephone number
you are consenting for Humderto
Garcia to contact you even if your name is on a Federal or State
"Do not call List".
Listed with Apartment and Home Seekers
The data relating to real estate for sale on this web site comes in part from the Broker ReciprocitySM Program of MRED. All real estate listings are marked with the Broker ReciprocitySM logo or the MRED Broker ReciprocitySM thumbnail logo (a little black house) and detailed information about them includes the name of the listing brokers.
The broker providing these data believes them to be correct, but advises interested parties to confirm them before relying on them in a purchase decision.
Copyright 2026 MRED. All rights reserved.

The broker providing these data believes them to be correct, but advises interested parties to confirm them before relying on them in a purchase decision.
Copyright 2026 MRED. All rights reserved.
This IDX solution is (c) Diverse Solutions 2026.