|
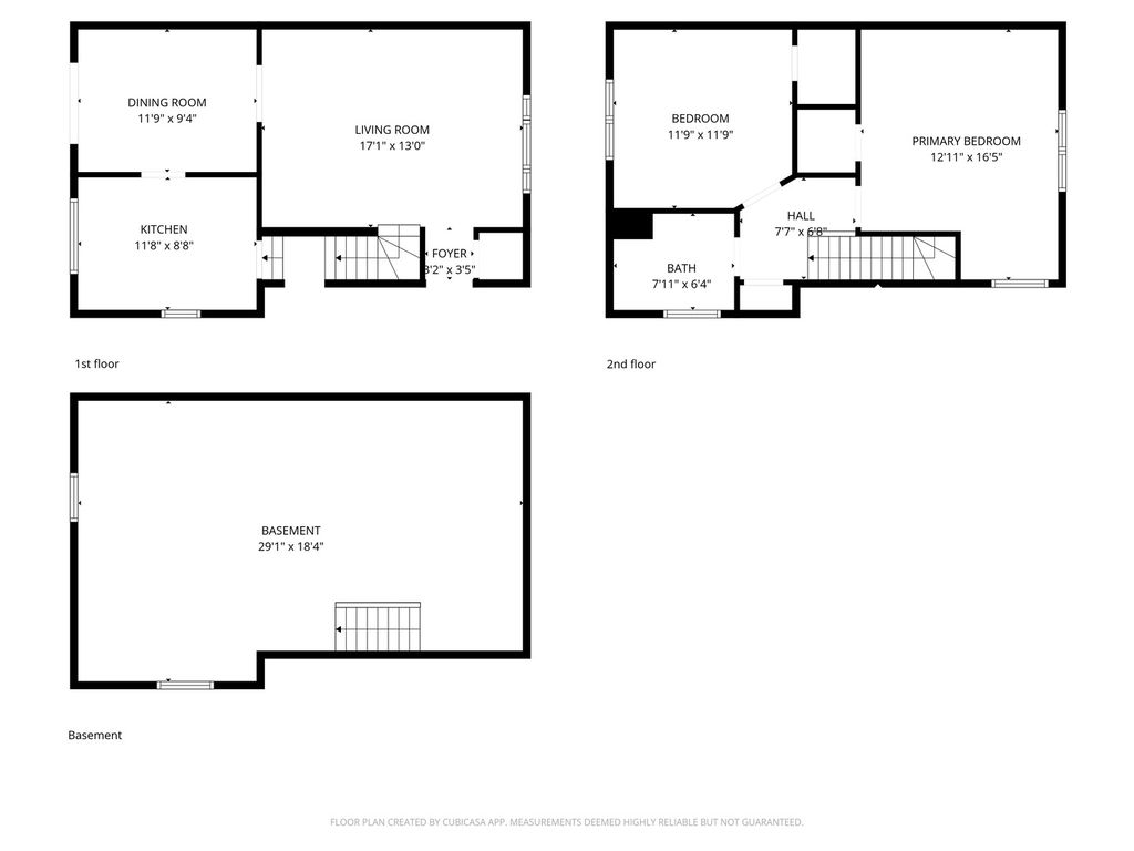
Stunning 2-Story Duplex Townhome with exceptional natural light! Beautifully maintained 2-story offering a bright, open layout and timeless finishes throughout. The welcoming entry leads into a spacious living room featuring a gorgeous bay window and gleaming hardwood floors. The dining room, also with hardwood flooring, flows seamlessly into the updated kitchen complete with ceramic tile, granite countertops, and modern plumbing fixtures. Enjoy views of the expansive backyard right from your dining space-perfect for everyday living and entertaining. On the second floor, you'll find generously sized bedrooms including a Master Bedroom and the second bedroom, both with hardwood flooring and ample closet space. The full basement offers excellent potential for additional living space, with mechanicals conveniently positioned to allow for an easy finish-ideal for a future family room or recreation area. This home features updated mechanicals, a solid brick exterior, and a classic hip roof. The fenced yard provides privacy and outdoor enjoyment, all just steps from a nearby park. Prime location with quick access to downtown La Grange, the Metra, and Brookfield's vibrant 8 Corners district. Minutes to shopping, dining, and more. Located in highly sought-after school districts including La Grange School District 102 (Forest Road Elementary & Park Junior High) and Lyons Township High School District 204. This home has it all and is a must-see that will not last!
| DAYS ON MARKET | 18 | LAST UPDATED | 4/10/2026 |
|---|---|---|---|
| YEAR BUILT | 0 | COMMUNITY | La Grange Park |
| COUNTY | Cook | STATUS | Conditional |
| PROPERTY TYPE(S) | Condo/Townhouse/Co-Op |
| School District | Lyons Twp High School |
|---|---|
| Elementary School | Forest Road Elementary School |
| Jr. High School | Park Junior High School |
| High School | Lyons Twp High School |
| ADDITIONAL DETAILS | |
| AIR | Central Air |
|---|---|
| AIR CONDITIONING | Yes |
| AREA | La Grange Park |
| BASEMENT | Full, Unfinished, Yes |
| CONSTRUCTION | Brick |
| HEAT | Forced Air, Natural Gas |
| LOT | 0 |
| LOT DIMENSIONS | 30x200 |
| PARKING | Concrete |
| SEWER | Public Sewer |
| STORIES | 2 |
| TAXES | 6607.53 |
| WATER | Public |
MORTGAGE CALCULATOR
TOTAL MONTHLY PAYMENT
0
P
I
*Estimate only
| SATELLITE VIEW |
| / | |
We respect your online privacy and will never spam you. By submitting this form with your telephone number
you are consenting for Humderto
Garcia to contact you even if your name is on a Federal or State
"Do not call List".
Listed with Westmont Realty, LLC
The data relating to real estate for sale on this web site comes in part from the Broker ReciprocitySM Program of MRED. All real estate listings are marked with the Broker ReciprocitySM logo or the MRED Broker ReciprocitySM thumbnail logo (a little black house) and detailed information about them includes the name of the listing brokers.
The broker providing these data believes them to be correct, but advises interested parties to confirm them before relying on them in a purchase decision.
Copyright 2026 MRED. All rights reserved.

The broker providing these data believes them to be correct, but advises interested parties to confirm them before relying on them in a purchase decision.
Copyright 2026 MRED. All rights reserved.
This IDX solution is (c) Diverse Solutions 2026.